1976July
34,900,000 yen, 4LDK, 112.08 sq m
Used Homes » Kanto » Chiba Prefecture » Nagareyama
 
| | Chiba Prefecture Nagareyama 千葉県流山市 |
| Tsukuba Express "Nagareyama Central Park" walk 8 minutes つくばエクスプレス「流山セントラルパーク」歩8分 |
Price 価格 | | 34,900,000 yen 3490万円 | Floor plan 間取り | | 4LDK 4LDK | Units sold 販売戸数 | | 1 units 1戸 | Land area 土地面積 | | 249 sq m (registration) 249m2(登記) | Building area 建物面積 | | 112.08 sq m (registration) 112.08m2(登記) | Driveway burden-road 私道負担・道路 | | Nothing, North 5m width 無、北5m幅 | Completion date 完成時期(築年月) | | July 1976 1976年7月 | Address 住所 | | Chiba Prefecture Nagareyama Heiwadai 5 千葉県流山市平和台5 | Traffic 交通 | | Tsukuba Express "Nagareyama Central Park" walk 8 minutes つくばエクスプレス「流山セントラルパーク」歩8分
| Contact お問い合せ先 | | TEL: 0800-603-0218 [Toll free] mobile phone ・ Also available from PHS Caller ID is not notified Please contact the "saw SUUMO (Sumo)" If it does not lead, If the real estate company TEL:0800-603-0218【通話料無料】携帯電話・PHSからもご利用いただけます 発信者番号は通知されません 「SUUMO(スーモ)を見た」と問い合わせください つながらない方、不動産会社の方は
| Building coverage, floor area ratio 建ぺい率・容積率 | | 60% ・ 150% 60%・150% | Time residents 入居時期 | | Consultation 相談 | Land of the right form 土地の権利形態 | | Ownership 所有権 | Structure and method of construction 構造・工法 | | Wooden 2-story 木造2階建 | Use district 用途地域 | | One low-rise 1種低層 | Overview and notices その他概要・特記事項 | | Parking: No 駐車場:無 | Company profile 会社概要 | | <Mediation> Minister of Land, Infrastructure and Transport (8) No. 003,394 (one company) Real Estate Association (Corporation) metropolitan area real estate Fair Trade Council member Taisei the back Real Estate Sales Co., Ltd., Shin-Matsudo Matsudo, Chiba Prefecture office Yubinbango270-0034 Matsudo 4-6 NAOI third building second floor <仲介>国土交通大臣(8)第003394号(一社)不動産協会会員 (公社)首都圏不動産公正取引協議会加盟大成有楽不動産販売(株)新松戸営業所〒270-0034 千葉県松戸市新松戸4-6 直井第3ビル2階 |
Local appearance photo現地外観写真  Dignified building of major real estate companies and construction
大手不動産会社施工の堂々とした建物
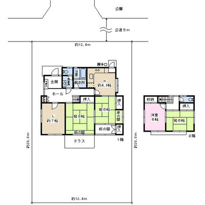
 Floor plan
間取り図
Location
|