|
|
Chiba Prefecture Nagareyama
千葉県流山市
|
|
JR Joban Line "Minamikashiwa" walk 13 minutes
JR常磐線「南柏」歩13分
|
|
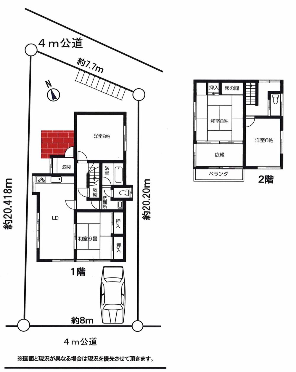
Minamikashiwa Station walk 13 minutes! Double-sided road, Per yang good 4LDK!
南柏駅徒歩13分!両面道路、陽当り良い4LDK!
|
|
■ Toilet 2 places ■ Parking available
■トイレ2ヶ所■駐車場あり
|
Features pickup 特徴ピックアップ | | Facing south / Yang per good / Japanese-style room / 2-story 南向き /陽当り良好 /和室 /2階建 |
Price 価格 | | 19,800,000 yen 1980万円 |
Floor plan 間取り | | 4LDK 4LDK |
Units sold 販売戸数 | | 1 units 1戸 |
Land area 土地面積 | | 168 sq m (registration) 168m2(登記) |
Building area 建物面積 | | 100.19 sq m (registration) 100.19m2(登記) |
Driveway burden-road 私道負担・道路 | | 16 sq m , North 4m width, South 4m width 16m2、北4m幅、南4m幅 |
Completion date 完成時期(築年月) | | September 1976 1976年9月 |
Address 住所 | | Chiba Prefecture Nagareyama Matsugaoka 4 千葉県流山市松ケ丘4 |
Traffic 交通 | | JR Joban Line "Minamikashiwa" walk 13 minutes JR Joban Line "Kitakogane" walk 29 minutes Tobu Noda line "Shinkashiwa" walk 34 minutes JR常磐線「南柏」歩13分JR常磐線「北小金」歩29分東武野田線「新柏」歩34分 |
Related links 関連リンク | | [Related Sites of this company] 【この会社の関連サイト】 |
Person in charge 担当者より | | Person in charge of real-estate and building Yamauchi Hitoshi Age: 40 Daigyokai Experience: 16 years the purchase of real estate that does not experience many times in a lifetime ・ We would like to sell to help hard. Business bidder, Rental owners, Store ・ The office, Purchase ・ If you think a sale, Come please feel free to contact us. 担当者宅建山内 仁年齢:40代業界経験:16年一生に何度も経験することのない不動産の購入・売却を一生けん命お手伝いしたいと思います。事業者様、賃貸オーナー様、店舗・事務所を、ご購入・売却をお考えの方、是非お気軽にご相談ください。 |
Contact お問い合せ先 | | TEL: 0800-603-0600 [Toll free] mobile phone ・ Also available from PHS Caller ID is not notified Please contact the "saw SUUMO (Sumo)" If it does not lead, If the real estate company TEL:0800-603-0600【通話料無料】携帯電話・PHSからもご利用いただけます 発信者番号は通知されません 「SUUMO(スーモ)を見た」と問い合わせください つながらない方、不動産会社の方は
|
Building coverage, floor area ratio 建ぺい率・容積率 | | 60% ・ 150% 60%・150% |
Time residents 入居時期 | | Consultation 相談 |
Land of the right form 土地の権利形態 | | Ownership 所有権 |
Structure and method of construction 構造・工法 | | Wooden 2-story 木造2階建 |
Use district 用途地域 | | One low-rise 1種低層 |
Overview and notices その他概要・特記事項 | | Contact: Yamauchi Nucleolus, Facilities: Public Water Supply, This sewage, City gas, Parking: car space 担当者:山内 仁、設備:公営水道、本下水、都市ガス、駐車場:カースペース |
Company profile 会社概要 | | <Mediation> Governor of Chiba Prefecture (10) Article 005283 No. Ye station Sanken Home Ltd. Yubinbango277-0843 Kashiwa City, Chiba Prefecture Akehara 1-8-11 <仲介>千葉県知事(10)第005283号イエステーション三建ホーム(株)〒277-0843 千葉県柏市明原1-8-11 |