Used Homes » Kanto » Chiba Prefecture » Nagareyama


Chiba Prefecture Nagareyama
Nagareyama line "Nagareyama" walk 6 minutes
2 line 2 Station Available! Nagareyama line "Nagareyama" Station 6-minute walk, Tsukuba Express "Nagareyama Central Park" station walk 21 minutes. With OM solar system. For indoor clean your.
■ Renovation completed (November 2005) ・ Flooring Chokawa ・ LD washroom installation ・ Kitchen tile replacement ※ Warranty disclaimer ※ Built-in garage: 15 sq m
Features pickup
Solar power system / 2 along the line more accessible / LDK20 tatami mats or more / Interior renovation / All room storage / Japanese-style room / Face-to-face kitchen / Toilet 2 places / 2-story / Flooring Chokawa / The window in the bathroom / All room 6 tatami mats or more / Storeroom
Price
15.4 million yen
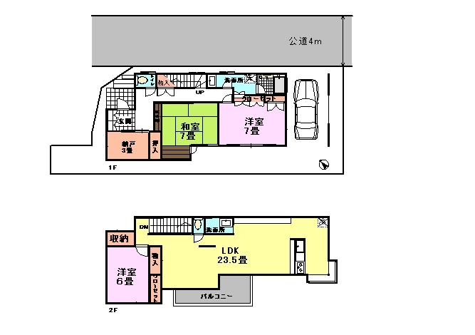
Floor plan
3LDK + S (storeroom)
Units sold
1 units
Total units
1 units
Land area
120.42 sq m
Building area
118.75 sq m
Driveway burden-road
Nothing, Northwest 4m width
Completion date
December 1991
Address
Chiba Prefecture Nagareyama Nagareyama 2
Traffic
Nagareyama line "Nagareyama" walk 6 minutes
Tsukuba Express "Nagareyama Central Park" walk 21 minutes
Nagareyama line "Heiwadai" walk 8 minutes
Related links
[Related Sites of this company]
Person in charge
Person in charge of real-estate and building Nagai Yoshiaki Age: 30 Daigyokai Experience: 10 years [Birthplace] Hitachinaka City, Ibaraki Prefecture [Graduating school] Nihon University (humanities) [hobby] Ruins Tour [holiday] We find the new house.
Contact
TEL: 0800-603-0705 [Toll free] mobile phone ・ Also available from PHS
Caller ID is not notified
Please contact the "saw SUUMO (Sumo)"
If it does not lead, If the real estate company
Building coverage, floor area ratio
80% ・ 270 percent
Time residents
Immediate available
Land of the right form
Ownership
Structure and method of construction
Wooden 2-story
Renovation
November 2005 interior renovation completed (floor ・ Washroom installation)
Use district
Commerce
Other limitations
Mid-to-high-rise building guidance required net
Overview and notices
Person in charge: Nagai Yoshiaki, Facilities: Public Water Supply, Parking: car space
Company profile
<Mediation> Minister of Land, Infrastructure and Transport (11) No. 002401 (Corporation) Prefecture Building Lots and Buildings Transaction Business Association (Corporation) metropolitan area real estate Fair Trade Council member (Ltd.) a central residential Porras residence of Information Center Soka office Yubinbango340-0016 Soka center 2-12-10


Local appearance photo

Local appearance photo. Local (September 2013) per shooting fees, You can preview any time! Renovation completed (November 2005) ・ Flooring Chokawa ・ LD washroom installation ・ Kitchen tile replacement
Local (September 2013) per shooting fees, You can preview any time! Renovation completed (November 2005) ・ Flooring Chokawa ・ LD washroom installation ・ Kitchen tile replacement

Living

Living. Indoor (September 2013) Shooting It is spacious and welcoming 23.5 tatami mats of LDK.
Indoor (September 2013) Shooting It is spacious and welcoming 23.5 tatami mats of LDK.

Kitchen

Kitchen. Indoor (September 2013) Shooting
Indoor (September 2013) Shooting

Floor plan

Floor plan. 15.4 million yen, 3LDK + S (storeroom), Land area 120.42 sq m , Building area 118.75 sq m 3LDK + storeroom
15.4 million yen, 3LDK + S (storeroom), Land area 120.42 sq m , Building area 118.75 sq m 3LDK + storeroom

Local appearance photo

Local appearance photo. Appearance (September 2013) Shooting
Appearance (September 2013) Shooting

Living

Living. Indoor (September 2013) Shooting
Indoor (September 2013) Shooting

Bathroom

Bathroom. Indoor (September 2013) Shooting
Indoor (September 2013) Shooting

Non-living room

Non-living room. Indoor (September 2013) Shooting
Indoor (September 2013) Shooting

Entrance

Entrance. Indoor (September 2013) Shooting
Indoor (September 2013) Shooting

Wash basin, toilet

Wash basin, toilet. Indoor (September 2013) Shooting
Indoor (September 2013) Shooting

Receipt

Receipt. Indoor (September 2013) Shooting
Indoor (September 2013) Shooting

Toilet

Toilet. Indoor (September 2013) Shooting
Indoor (September 2013) Shooting

Other introspection

Other introspection. Indoor (September 2013) Shooting
Indoor (September 2013) Shooting

Other

Other. Cycle port
Cycle port

Living

Living. Indoor (September 2013) Shooting
Indoor (September 2013) Shooting

Non-living room

Non-living room. Indoor (September 2013) Shooting
Indoor (September 2013) Shooting



Location