|
|
Chiba Prefecture Nagareyama
千葉県流山市
|
|
Tobu Noda line "Toyoshiki" walk 14 minutes
東武野田線「豊四季」歩14分
|
|
Toyoshiki a 14-minute walk from the train station, Green is rich and quiet residential area. Car space 3 cars possible, Facing the double-sided road, Yang per good!
豊四季駅より徒歩14分、緑豊かで閑静な住宅地です。カースペース3台分可能、両面道路に面し、陽当り良好!
|
|
● Toyoshiki Station use, Around the green is much livable living environment. ● facing on both sides road, Exposure to the sun ・ Good to draft both! ● car space There are three cars. ● is a floor plan of the living room stairs communication is nurtured with nature. ● 2012. November Built, The building is very clean your. ● First, the "look at the SUUMO" Please feel free to contact us.
●豊四季駅利用、周辺は緑も多く暮らしやすい住環境です。●両面道路に面し、陽当り・通風ともに良好!●カースペースは3台分あり。●コミュニケーションが自然と育まれるリビング階段の間取りです。●平成24年11月築で、建物大変きれいにお使いです。●まずは「SUUMOを見て」とお気軽にお問い合わせ下さい。
|
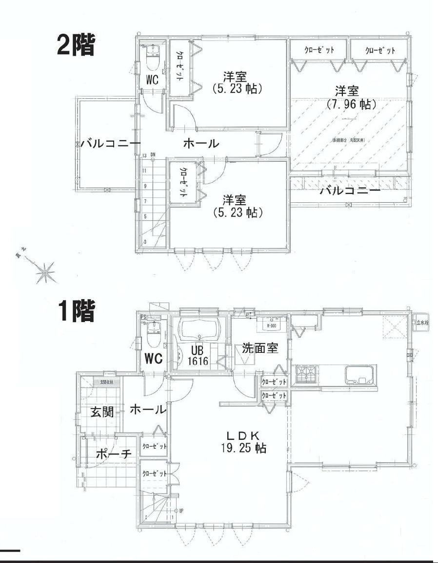
Features pickup 特徴ピックアップ | | Parking three or more possible / LDK18 tatami mats or more / Yang per good / Siemens south road / A quiet residential area / Or more before road 6m / Face-to-face kitchen / Toilet 2 places / 2-story / 2 or more sides balcony / Ventilation good / Southwestward / Living stairs 駐車3台以上可 /LDK18畳以上 /陽当り良好 /南側道路面す /閑静な住宅地 /前道6m以上 /対面式キッチン /トイレ2ヶ所 /2階建 /2面以上バルコニー /通風良好 /南西向き /リビング階段 |
Price 価格 | | 25,800,000 yen 2580万円 |
Floor plan 間取り | | 3LDK 3LDK |
Units sold 販売戸数 | | 1 units 1戸 |
Total units 総戸数 | | 1 units 1戸 |
Land area 土地面積 | | 170.39 sq m (51.54 tsubo) (Registration) 170.39m2(51.54坪)(登記) |
Building area 建物面積 | | 92.73 sq m (28.05 tsubo) (Registration) 92.73m2(28.05坪)(登記) |
Driveway burden-road 私道負担・道路 | | Nothing, South 6m width, North 4m width 無、南6m幅、北4m幅 |
Completion date 完成時期(築年月) | | November 2012 2012年11月 |
Address 住所 | | Chiba Prefecture Nagareyama Nonoshita 6 千葉県流山市野々下6 |
Traffic 交通 | | Tobu Noda Line "Toyoshiki" walk 14 minutes JR Joban Line "Minamikashiwa" walk 30 minutes Tsukuba Express "Nagareyama Otaka Forest" walk 33 minutes 東武野田線「豊四季」歩14分JR常磐線「南柏」歩30分つくばエクスプレス「流山おおたかの森」歩33分
|
Person in charge 担当者より | | Person in charge of real-estate and building Imada Naofumi Age: 30 Daigyokai experience: the fact that with a seven-year house is that a lot of fun. I also because the family often, Who Families with children also Please feel free to contact us. First of all I think that if you can be happy to help from your tour. For the family of smile, I'll do my best. 担当者宅建今田 直文年齢:30代業界経験:7年家を持つということはとても楽しい事です。私も家族が多いので、お子様連れの方もお気軽にご相談下さい。まずはご見学からお手伝いさせて頂ければと思います。ご家族の笑顔の為、がんばります。 |
Contact お問い合せ先 | | TEL: 0800-603-0711 [Toll free] mobile phone ・ Also available from PHS Caller ID is not notified Please contact the "saw SUUMO (Sumo)" If it does not lead, If the real estate company TEL:0800-603-0711【通話料無料】携帯電話・PHSからもご利用いただけます 発信者番号は通知されません 「SUUMO(スーモ)を見た」と問い合わせください つながらない方、不動産会社の方は
|
Building coverage, floor area ratio 建ぺい率・容積率 | | 60% ・ 150% 60%・150% |
Time residents 入居時期 | | Consultation 相談 |
Land of the right form 土地の権利形態 | | Ownership 所有権 |
Structure and method of construction 構造・工法 | | Wooden 2-story 木造2階建 |
Use district 用途地域 | | One low-rise 1種低層 |
Other limitations その他制限事項 | | Set-back: already セットバック:済 |
Overview and notices その他概要・特記事項 | | Contact: Imada Naofumi, Facilities: Public Water Supply, This sewage, City gas, Parking: car space 担当者:今田 直文、設備:公営水道、本下水、都市ガス、駐車場:カースペース |
Company profile 会社概要 | | <Mediation> Minister of Land, Infrastructure and Transport (11) No. 002401 (the company), Chiba Prefecture Building Lots and Buildings Transaction Business Association (Corporation) metropolitan area real estate Fair Trade Council member (Ltd.) a central residential Porras residence of Information Center Edogawadai office Yubinbango270-0103 Chiba Prefecture Nagareyama Mihara 1-155-27 <仲介>国土交通大臣(11)第002401号(社)千葉県宅地建物取引業協会会員 (公社)首都圏不動産公正取引協議会加盟(株)中央住宅ポラス住まいの情報館 江戸川台営業所〒270-0103 千葉県流山市美原1-155-27 |