Used Homes » Kanto » Chiba Prefecture » Nagareyama
 
| | Chiba Prefecture Nagareyama 千葉県流山市 |
| Tsukuba Express "Minami Nagareyama" walk 3 minutes つくばエクスプレス「南流山」歩3分 |
| And the distance of the Tsukuba Express "Minami Nagareyama Station walk 3 minutes.", South road (public road 12m ・ Is the environment of the sidewalk). Because there is a front store and workshop space, It is the perfect property for those who are opening. つくばエクスプレス「南流山駅 徒歩3分」の距離と、南道路(公道12m・歩道)の環境です。前面店舗と作業場スペースがあるので、開業される方には最適の物件です。 |
| 2 along the line more accessible, Facing south, System kitchen, All room storage, Flat to the station, Siemens south road, Around traffic fewer, Or more before road 6m, Shaping land, Toilet 2 places, 2-story, Otobasu, All rooms are two-sided lighting, Maintained sidewalk, Fireworks viewing, roof balcony, Flat terrain, Readjustment land within 2沿線以上利用可、南向き、システムキッチン、全居室収納、駅まで平坦、南側道路面す、周辺交通量少なめ、前道6m以上、整形地、トイレ2ヶ所、2階建、オートバス、全室2面採光、整備された歩道、花火大会鑑賞、ルーフバルコニー、平坦地、区画整理地内 |
Features pickup 特徴ピックアップ | | 2 along the line more accessible / Facing south / System kitchen / All room storage / Flat to the station / Siemens south road / Around traffic fewer / Or more before road 6m / Shaping land / Toilet 2 places / 2-story / Otobasu / All rooms are two-sided lighting / Maintained sidewalk / Fireworks viewing / roof balcony / Flat terrain / Readjustment land within 2沿線以上利用可 /南向き /システムキッチン /全居室収納 /駅まで平坦 /南側道路面す /周辺交通量少なめ /前道6m以上 /整形地 /トイレ2ヶ所 /2階建 /オートバス /全室2面採光 /整備された歩道 /花火大会鑑賞 /ルーフバルコニー /平坦地 /区画整理地内 | Price 価格 | | 39,900,000 yen 3990万円 | Floor plan 間取り | | 5LDK 5LDK | Units sold 販売戸数 | | 1 units 1戸 | Total units 総戸数 | | 1 units 1戸 | Land area 土地面積 | | 158.91 sq m (registration) 158.91m2(登記) | Building area 建物面積 | | 139.25 sq m (registration), Shop mortgage (store Partial 20.01 sq m) 139.25m2(登記)、店舗付住宅(店舗部分20.01m2) | Driveway burden-road 私道負担・道路 | | Nothing, South 12m width (contact the road width 9.3m) 無、南12m幅(接道幅9.3m) | Completion date 完成時期(築年月) | | April 1987 1987年4月 | Address 住所 | | Chiba Prefecture Nagareyama Minami Nagareyama 2-7 at number 14 千葉県流山市南流山2-7番地14 | Traffic 交通 | | Tsukuba Express "Minami Nagareyama" walk 3 minutes JR Musashino Line "Minami Nagareyama" walk 3 minutes つくばエクスプレス「南流山」歩3分 JR武蔵野線「南流山」歩3分 | Related links 関連リンク | | [Related Sites of this company] 【この会社の関連サイト】 | Person in charge 担当者より | | [Regarding this property.] Tsukuba Express "Minami Nagareyama Station" a 3-minute walk Readjustment land within ・ South road 【この物件について】つくばエクスプレス「南流山駅」徒歩3分 区画整理地内・南道路 | Contact お問い合せ先 | | (Ltd.) Arch TEL: 0800-603-9974 [Toll free] mobile phone ・ Also available from PHS Caller ID is not notified Please contact the "saw SUUMO (Sumo)" If it does not lead, If the real estate company (株)アーチTEL:0800-603-9974【通話料無料】携帯電話・PHSからもご利用いただけます 発信者番号は通知されません 「SUUMO(スーモ)を見た」と問い合わせください つながらない方、不動産会社の方は
| Building coverage, floor area ratio 建ぺい率・容積率 | | 60% ・ 200% 60%・200% | Time residents 入居時期 | | March 2014 schedule 2014年3月予定 | Land of the right form 土地の権利形態 | | Ownership 所有権 | Structure and method of construction 構造・工法 | | Steel 2-story part PC 鉄骨2階建一部PC | Use district 用途地域 | | One middle and high 1種中高 | Other limitations その他制限事項 | | Regulations have by the Landscape Act 景観法による規制有 | Overview and notices その他概要・特記事項 | | Facilities: Public Water Supply, This sewage, City gas, Parking: car space 設備:公営水道、本下水、都市ガス、駐車場:カースペース | Company profile 会社概要 | | <Mediation> Governor of Chiba Prefecture (1) No. 015950 (Ltd.) arch Yubinbango270-0163 Chiba Prefecture Nagareyama Minami Nagareyama 1-10-4 <仲介>千葉県知事(1)第015950号(株)アーチ〒270-0163 千葉県流山市南流山1-10-4 |
Local appearance photo現地外観写真  Local (12 May 2013) Shooting
現地(2013年12月)撮影
Local photos, including front road前面道路含む現地写真  Local (12 May 2013) Shooting East side, The other owner of the rental parking
現地(2013年12月)撮影 東側、他所有者の貸駐車場
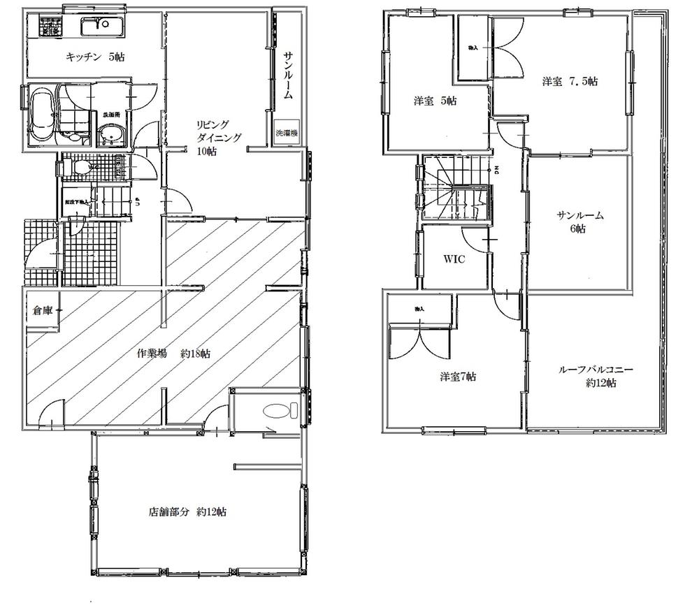
Floor plan間取り図  39,900,000 yen, 5LDK, Land area 158.91 sq m , It is a building area of 139.25 sq m easy-to-use floor plan
3990万円、5LDK、土地面積158.91m2、建物面積139.25m2 使いやすい間取りです
Livingリビング  Local (12 May 2013) Shooting Solarium attractive
現地(2013年12月)撮影 サンルームが魅力
Bathroom浴室  Local (12 May 2013) Shooting
現地(2013年12月)撮影
Kitchenキッチン  Local (12 May 2013) Shooting
現地(2013年12月)撮影
Non-living roomリビング以外の居室  Local (12 May 2013) Shooting
現地(2013年12月)撮影
Entrance玄関  Local (12 May 2013) Shooting
現地(2013年12月)撮影
Wash basin, toilet洗面台・洗面所  Local (12 May 2013) Shooting
現地(2013年12月)撮影
Receipt収納  Local (12 May 2013) Shooting
現地(2013年12月)撮影
Toiletトイレ  Local (12 May 2013) Shooting
現地(2013年12月)撮影
Balconyバルコニー  Local (12 May 2013) Shooting
現地(2013年12月)撮影
Station駅  Tsukuba Express Minami Nagareyama 290m to the south exit
つくばエクスプレス南流山 南口まで290m
Other introspectionその他内観  Local (12 May 2013) Shooting
現地(2013年12月)撮影
 Local guide map
現地案内図
Other localその他現地  Local (12 May 2013) Shooting
現地(2013年12月)撮影
Non-living roomリビング以外の居室  South Western-style
南側洋室
Shopping centreショッピングセンター  Jason 45m to Minami Nagareyama
ジェーソン 南流山まで45m
Other introspectionその他内観  Local (12 May 2013) Shooting
現地(2013年12月)撮影
Shopping centreショッピングセンター  Supermarket Until Maruya 140m
スーパー マルヤまで140m
Other introspectionその他内観  Local (12 May 2013) Shooting
現地(2013年12月)撮影
Location
|