2014April
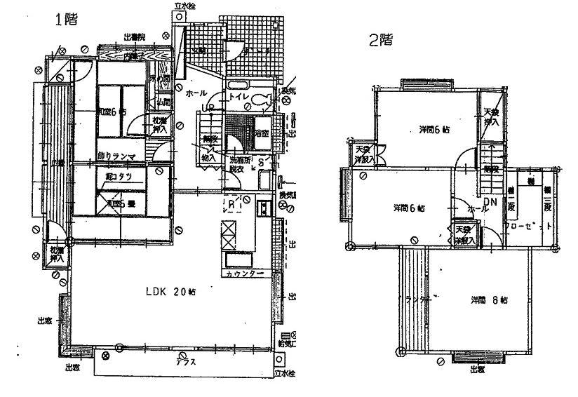
14.8 million yen, 5LDK, 126.95 sq m
Used Homes » Chugoku » Hiroshima » Higashi-ku

| | Hiroshima, Hiroshima Prefecture, Higashi-ku, 広島県広島市東区 |
| Hiroshima bus "Kaminukushina elementary school entrance bus stop" walk 5 minutes 広島バス「上温品小学校入口バス停」歩5分 |
| A quiet residential area 閑静な住宅地 |
| A quiet residential area 閑静な住宅地 |
Features pickup 特徴ピックアップ | | LDK20 tatami mats or more / Land 50 square meters or more / A quiet residential area / 2-story LDK20畳以上 /土地50坪以上 /閑静な住宅地 /2階建 | Price 価格 | | 14.8 million yen 1480万円 | Floor plan 間取り | | 5LDK 5LDK | Units sold 販売戸数 | | 1 units 1戸 | Land area 土地面積 | | 205.46 sq m 205.46m2 | Building area 建物面積 | | 126.95 sq m 126.95m2 | Driveway burden-road 私道負担・道路 | | Nothing, Northwest 4m width 無、北西4m幅 | Completion date 完成時期(築年月) | | March 1991 1991年3月 | Address 住所 | | Hiroshima, Hiroshima Prefecture, Higashi-ku, Kaminukushina 4 広島県広島市東区上温品4 | Traffic 交通 | | Hiroshima bus "Kaminukushina elementary school entrance bus stop" walk 5 minutes 広島バス「上温品小学校入口バス停」歩5分 | Contact お問い合せ先 | | TEL: 0800-809-8835 [Toll free] mobile phone ・ Also available from PHS Caller ID is not notified Please contact the "saw SUUMO (Sumo)" If it does not lead, If the real estate company TEL:0800-809-8835【通話料無料】携帯電話・PHSからもご利用いただけます 発信者番号は通知されません 「SUUMO(スーモ)を見た」と問い合わせください つながらない方、不動産会社の方は
| Building coverage, floor area ratio 建ぺい率・容積率 | | Fifty percent ・ Hundred percent 50%・100% | Time residents 入居時期 | | April 2014 schedule 2014年4月予定 | Land of the right form 土地の権利形態 | | Ownership 所有権 | Structure and method of construction 構造・工法 | | Wooden 2-story 木造2階建 | Use district 用途地域 | | One low-rise 1種低層 | Overview and notices その他概要・特記事項 | | Facilities: Public Water Supply, This sewage, Individual LPG 設備:公営水道、本下水、個別LPG | Company profile 会社概要 | | <Mediation> Governor of Hiroshima Prefecture (3) The 008,962 No. Royal Home Co., Ltd. Yubinbango732-0055 Hiroshima, Hiroshima Prefecture Higashi-ku, Higashikaniya cho 10-33 <仲介>広島県知事(3)第008962号ロイヤルホーム(株)〒732-0055 広島県広島市東区東蟹屋町10-33 |
Floor plan間取り図  14.8 million yen, 5LDK, Land area 205.46 sq m , Building area 126.95 sq m floor plan
1480万円、5LDK、土地面積205.46m2、建物面積126.95m2 間取り図
Location
|