|
|
Hiroshima Prefecture Kure
広島県呉市
|
|
Kurahashi traffic "Sakioku" walk 2 minutes
倉橋交通「先奥」歩2分
|
|
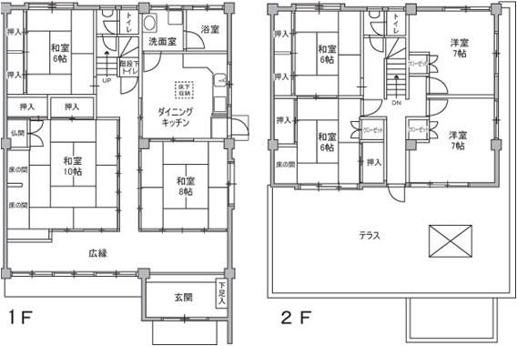
Heisei for renovated in 20 years in February, Indoor beautiful! A quiet residential area! Sunny ☆ 2 households possible floor plan (Bathroom 2 places, There toilet 3 places), There is a full-fledged garden!
平成20年2月にリフォーム済みのため、室内美麗!閑静な住宅街!日当たり良好☆2世帯可能な間取り(浴室2ヶ所、トイレ3ヶ所あり)、本格的な庭園あり!
|
|
● Fuzokuya (outhouse) Yes ● durable reinforced concrete ● IH cooking heater
●附属屋(離れ家)あり●丈夫な鉄筋コンクリート造●IHクッキングヒーター
|
Features pickup 特徴ピックアップ | | Yang per good / 2-story / City gas 陽当り良好 /2階建 /都市ガス |
Price 価格 | | 11.8 million yen 1180万円 |
Floor plan 間取り | | 7DK 7DK |
Units sold 販売戸数 | | 1 units 1戸 |
Land area 土地面積 | | 355.63 sq m (registration) 355.63m2(登記) |
Building area 建物面積 | | 175.54 sq m (registration) 175.54m2(登記) |
Driveway burden-road 私道負担・道路 | | Nothing 無 |
Completion date 完成時期(築年月) | | 1980 February 1980年2月 |
Address 住所 | | Kure City, Ondo-cho, destination back 3 広島県呉市音戸町先奥3 |
Traffic 交通 | | Kurahashi traffic "Sakioku" walk 2 minutes 倉橋交通「先奥」歩2分 |
Person in charge 担当者より | | Rep Fukumoto light 担当者福元 光 |
Contact お問い合せ先 | | TEL: 0120-208211 [Toll free] Please contact the "saw SUUMO (Sumo)" TEL:0120-208211【通話料無料】「SUUMO(スーモ)を見た」と問い合わせください |
Building coverage, floor area ratio 建ぺい率・容積率 | | 70% ・ 400% 70%・400% |
Time residents 入居時期 | | Consultation 相談 |
Land of the right form 土地の権利形態 | | Ownership 所有権 |
Structure and method of construction 構造・工法 | | RC2 story RC2階建 |
Overview and notices その他概要・特記事項 | | Contact: Fukumoto light, Facilities: individual LPG 担当者:福元 光、設備:個別LPG |
Company profile 会社概要 | | <Mediation> Minister of Land, Infrastructure and Transport (2) No. 007492 (Corporation) Hiroshima Prefecture Building Lots and Buildings Transaction Business Association China district Real Estate Fair Trade Council member Co., Ltd. Aidi Oh Yubinbango730-0011 Hiroshima, Hiroshima Prefecture, Naka-ku Motomachi 13-13 Hiroshima Motomachi NS building the third floor <仲介>国土交通大臣(2)第007492号(公社)広島県宅地建物取引業協会会員 中国地区不動産公正取引協議会加盟(株)アイディオー〒730-0011 広島県広島市中区基町13-13 広島基町NSビル3階 |