|
|
Hiroshima Prefecture Kure
広島県呉市
|
|
JR Kure Line "after" walk 9 minutes
JR呉線「安登」歩9分
|
|
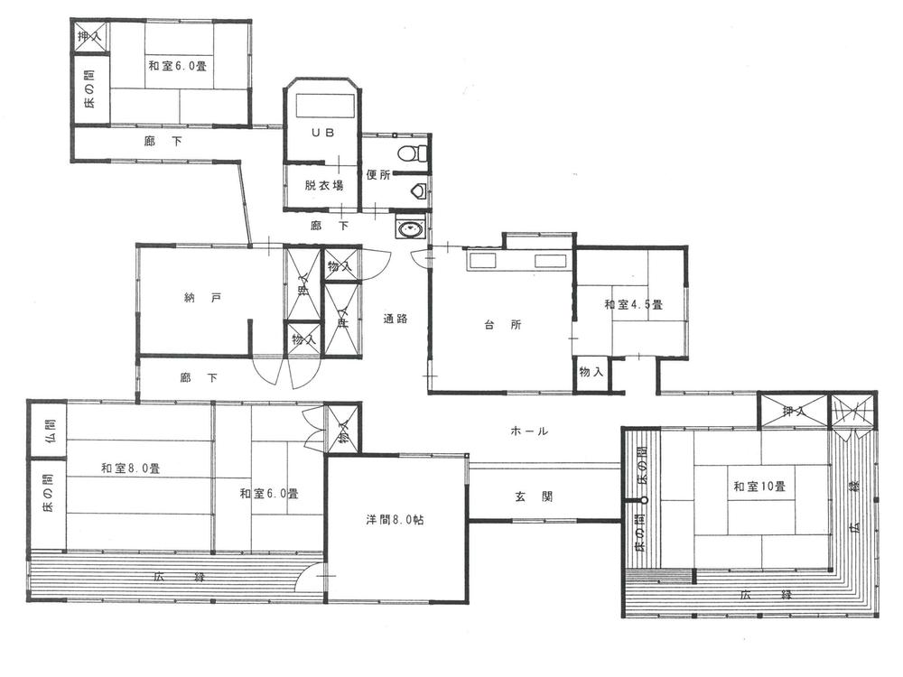
Good wide of per yang facing south ~ One-story to have on-site 151 square meters Spacious floor plan 6SDK 2 households OK luxurious Ken Heike
南向きの陽当たりの良い広 ~ い敷地151坪に平屋 ゆったり間取り6SDK 2世帯もOK 豪華な平家建
|
|
◆ JR [After Station] 9-minute walk away in order In 1 minute bus stop Commute ・ School convenient location ◆ I Lawson is also safe in 2 minutes
◆JR[安登駅]めで徒歩9分 バス停1分で 通勤・通学便利な立地◆ローソンも2分であんしんですね
|
Features pickup 特徴ピックアップ | | Parking two Allowed / Immediate Available / 2 along the line more accessible / Land more than 100 square meters / Facing south / Yang per good / Flat to the station / Siemens south road / A quiet residential area / Or more before road 6m / Japanese-style room / Shaping land / Garden more than 10 square meters / Nantei / The window in the bathroom / Leafy residential area / Mu front building / Ventilation good / Storeroom / A large gap between the neighboring house / Flat terrain 駐車2台可 /即入居可 /2沿線以上利用可 /土地100坪以上 /南向き /陽当り良好 /駅まで平坦 /南側道路面す /閑静な住宅地 /前道6m以上 /和室 /整形地 /庭10坪以上 /南庭 /浴室に窓 /緑豊かな住宅地 /前面棟無 /通風良好 /納戸 /隣家との間隔が大きい /平坦地 |
Price 価格 | | 16 million yen 1600万円 |
Floor plan 間取り | | 6DK + S (storeroom) 6DK+S(納戸) |
Units sold 販売戸数 | | 1 units 1戸 |
Total units 総戸数 | | 1 units 1戸 |
Land area 土地面積 | | 502.07 sq m (registration) 502.07m2(登記) |
Building area 建物面積 | | 206.75 sq m (registration) 206.75m2(登記) |
Driveway burden-road 私道負担・道路 | | Nothing, South 9m width 無、南9m幅 |
Completion date 完成時期(築年月) | | April 1967 1967年4月 |
Address 住所 | | Hiroshima Prefecture Kure yasuura after west 6-6- 広島県呉市安浦町安登西6-6- |
Traffic 交通 | | JR Kure Line "after" walk 9 minutes Bus "towards field" walk 1 minute JR呉線「安登」歩9分 バス「向野原」歩1分 |
Related links 関連リンク | | [Related Sites of this company] 【この会社の関連サイト】 |
Contact お問い合せ先 | | TEL: 0800-603-2334 [Toll free] mobile phone ・ Also available from PHS Caller ID is not notified Please contact the "saw SUUMO (Sumo)" If it does not lead, If the real estate company TEL:0800-603-2334【通話料無料】携帯電話・PHSからもご利用いただけます 発信者番号は通知されません 「SUUMO(スーモ)を見た」と問い合わせください つながらない方、不動産会社の方は
|
Building coverage, floor area ratio 建ぺい率・容積率 | | 60% ・ 200% 60%・200% |
Time residents 入居時期 | | Immediate available 即入居可 |
Land of the right form 土地の権利形態 | | Ownership 所有権 |
Structure and method of construction 構造・工法 | | Wooden 1 story 木造1階建 |
Use district 用途地域 | | One dwelling 1種住居 |
Overview and notices その他概要・特記事項 | | Facilities: Public Water Supply, This sewage, Parking: car space 設備:公営水道、本下水、駐車場:カースペース |
Company profile 会社概要 | | <Mediation> Governor of Hiroshima Prefecture (10) No. 003694 (Corporation) Hiroshima Prefecture Building Lots and Buildings Transaction Business Association China district Real Estate Fair Trade Council member Marken House Co., Ltd. Yubinbango734-0027 Hiroshima, Hiroshima Prefecture, Minami-ku, Nihominami 1-17-21 <仲介>広島県知事(10)第003694号(公社)広島県宅地建物取引業協会会員 中国地区不動産公正取引協議会加盟丸建ハウス(株)〒734-0027 広島県広島市南区仁保南1-17-21 |