1978July
6.8 million yen, 4LDK, 104.68 sq m
Used Homes » Hokkaido » Ebetsu
 
| | Hokkaido Ebetsu 北海道江別市 |
| JR Hakodate Line "Nopporo" walk 15 minutes JR函館本線「野幌」歩15分 |
Features pickup 特徴ピックアップ | | Immediate Available / Yang per good / Shaping land / Exterior renovation / 2-story / IH cooking heater / Southwestward 即入居可 /陽当り良好 /整形地 /外装リフォーム /2階建 /IHクッキングヒーター /南西向き | Price 価格 | | 6.8 million yen 680万円 | Floor plan 間取り | | 4LDK 4LDK | Units sold 販売戸数 | | 1 units 1戸 | Land area 土地面積 | | 176.52 sq m (registration) 176.52m2(登記) | Building area 建物面積 | | 104.68 sq m (registration) 104.68m2(登記) | Driveway burden-road 私道負担・道路 | | Nothing, Southwest 8m width (contact the road width 11.8m) 無、南西8m幅(接道幅11.8m) | Completion date 完成時期(築年月) | | July 1978 1978年7月 | Address 住所 | | Hokkaido Ebetsu Nopporosuehiro cho 北海道江別市野幌末広町 | Traffic 交通 | | JR Hakodate Line "Nopporo" walk 15 minutes JR函館本線「野幌」歩15分
| Person in charge 担当者より | | Person in charge of real-estate and building Komatsu Kazuya Age: 40 Daigyokai Experience: 24 years 担当者宅建小松 和哉年齢:40代業界経験:24年 | Contact お問い合せ先 | | TEL: 0800-603-8831 [Toll free] mobile phone ・ Also available from PHS Caller ID is not notified Please contact the "saw SUUMO (Sumo)" If it does not lead, If the real estate company TEL:0800-603-8831【通話料無料】携帯電話・PHSからもご利用いただけます 発信者番号は通知されません 「SUUMO(スーモ)を見た」と問い合わせください つながらない方、不動産会社の方は
| Building coverage, floor area ratio 建ぺい率・容積率 | | 40% ・ 60% 40%・60% | Time residents 入居時期 | | Immediate available 即入居可 | Land of the right form 土地の権利形態 | | Ownership 所有権 | Structure and method of construction 構造・工法 | | Wooden 2-story 木造2階建 | Renovation リフォーム | | 2012 September exterior renovation completed (outer wall ・ roof) 2012年9月外装リフォーム済(外壁・屋根) | Use district 用途地域 | | One low-rise 1種低層 | Overview and notices その他概要・特記事項 | | Contact: Komatsu Kazuya, Facilities: Public Water Supply, This sewage, Parking: car space 担当者:小松 和哉、設備:公営水道、本下水、駐車場:カースペース | Company profile 会社概要 | | <Mediation> Minister of Land, Infrastructure and Transport (2) No. 007766 (Ltd.) Tsuchiya Home Co., Ltd. distribution Sapporo Toyohira branch Yubinbango062-0903 Sapporo, Hokkaido Toyohira-ku Toyohira Article 3 9-2-3 <仲介>国土交通大臣(2)第007766号(株)土屋ホーム流通札幌豊平支店〒062-0903 北海道札幌市豊平区豊平3条9-2-3 |
 Local appearance photo
現地外観写真
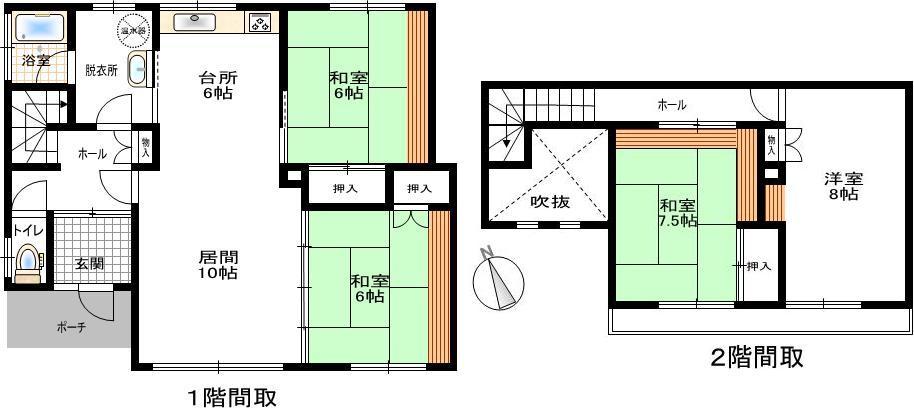
Floor plan間取り図  6.8 million yen, 4LDK, Land area 176.52 sq m , Building area 104.68 sq m
680万円、4LDK、土地面積176.52m2、建物面積104.68m2
Location
|