|
|
Hokkaido Ishikari-gun Tobetsu
北海道石狩郡当別町
|
|
JR Sasshō Line "Ishikari Futomi" bus 7 minutes Hills V2-1-13 step 3 minutes
JR札沼線「石狩太美」バス7分ヒルズV2-1-13歩3分
|
|
* Nature of moisture, Tranquility of the forest, View ... Living ** Sweden Hills, Every day is a new discovery * * Reflect the country Sweden in the values of the welfare *
*自然の潤い、森の静けさ、眺望…**スウェーデンヒルズの暮らしは、毎日が新しい発見です* *福祉の国スウェーデンの価値観を反映*
|
|
■ Lush Sweden Hills can feel the season of four seasons ■ Telephone pole is neither one, Underground with an emphasis on landscape ■ Place the park that decorate the city to the rich walking paths and each district to feel the four seasons ■ 25km from central Sapporo. Lightly accessible JR by car ■ Educational institutions ・ There is around the medical facility, School by school bus to elementary school
■四季折々の季節を感じられる緑豊かなスウェーデンヒルズ■電柱は一本もなく、景観を重視した地下埋設■四季を感じる豊かな散策路や各地区には街を彩る公園を配置■札幌中心部から25km。車でもJRでも軽快にアクセス■教育施設・医療施設も周辺にあり、小学校へはスクールバスで通学
|
Features pickup 特徴ピックアップ | | Immediate Available / Land more than 100 square meters / See the mountain / A quiet residential area / Or more before road 6m / Idyll / Leafy residential area / Good view / Located on a hill / Maintained sidewalk 即入居可 /土地100坪以上 /山が見える /閑静な住宅地 /前道6m以上 /田園風景 /緑豊かな住宅地 /眺望良好 /高台に立地 /整備された歩道 |
Price 価格 | | 35 million yen 3500万円 |
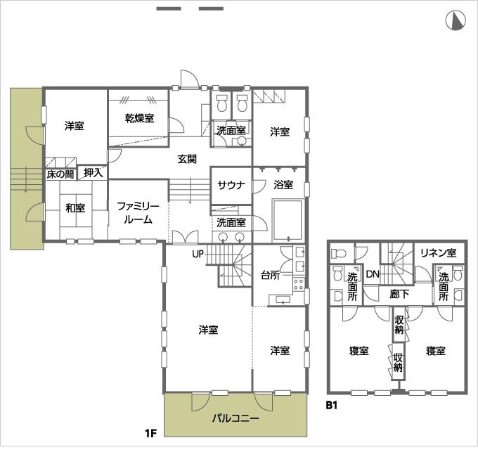
Floor plan 間取り | | 5LDK 5LDK |
Units sold 販売戸数 | | 1 units 1戸 |
Land area 土地面積 | | 1046.83 sq m (registration) 1046.83m2(登記) |
Building area 建物面積 | | 261.87 sq m (registration) 261.87m2(登記) |
Driveway burden-road 私道負担・道路 | | Nothing, North 8m width, West 8m width 無、北8m幅、西8m幅 |
Completion date 完成時期(築年月) | | April 1990 1990年4月 |
Address 住所 | | Hokkaido Ishikari-gun Tobetsu Sweden Hills 北海道石狩郡当別町スウェーデンヒルズ |
Traffic 交通 | | JR Sasshō Line "Ishikari Futomi" bus 7 minutes Hills V2-1-13 step 3 minutes JR Sasshō Line "Ainosato Kyoikudai" bus 25 minutes Hills V2-1-13 step 3 minutes JR Sasshō Line "Ishikari Tobetsu" bus 12 minutes Hills V2-1-13 step 3 minutes JR札沼線「石狩太美」バス7分ヒルズV2-1-13歩3分 JR札沼線「あいの里教育大」バス25分ヒルズV2-1-13歩3分 JR札沼線「石狩当別」バス12分ヒルズV2-1-13歩3分
|
Related links 関連リンク | | [Related Sites of this company] 【この会社の関連サイト】 |
Contact お問い合せ先 | | Sweden House (Ltd.) TEL: 03-5430-7653 Please contact as "saw SUUMO (Sumo)" スウェーデンハウス(株)TEL:03-5430-7653「SUUMO(スーモ)を見た」と問い合わせください |
Expenses 諸費用 | | Sweden Hills neighborhood fee (maintenance costs): 5000 yen / Month スウェーデンヒルズ町内会費(維持管理費):5000円/月 |
Building coverage, floor area ratio 建ぺい率・容積率 | | 40% ・ 60% 40%・60% |
Time residents 入居時期 | | Immediate available 即入居可 |
Land of the right form 土地の権利形態 | | Ownership 所有権 |
Structure and method of construction 構造・工法 | | Wooden first floor underground 1 story 木造1階地下1階建 |
Use district 用途地域 | | City planning area outside 都市計画区域外 |
Overview and notices その他概要・特記事項 | | Facilities: Public Water Supply, This sewage, Centralized LPG 設備:公営水道、本下水、集中LPG |
Company profile 会社概要 | | <Mediation> Minister of Land, Infrastructure and Transport (6) No. 004255 (Corporation) Tokyo Metropolitan Government Building Lots and Buildings Transaction Business Association (Corporation) metropolitan area real estate Fair Trade Council member Sweden House Co., Ltd. Yubinbango154-0004 Setagaya-ku, Tokyo Taishido 4-1-1 Carrot Tower 23 floor <仲介>国土交通大臣(6)第004255号(公社)東京都宅地建物取引業協会会員 (公社)首都圏不動産公正取引協議会加盟スウェーデンハウス(株)〒154-0004 東京都世田谷区太子堂4-1-1 キャロットタワー23階 |