1981December
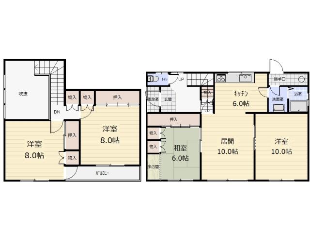
4.5 million yen, 4LDK, 113.8 sq m
Used Homes » Hokkaido » Hadong County
 
| | Hokkaido Katō District kamishihoro 北海道河東郡上士幌町 |
| Takushoku bus "traffic Koenmae" walk 3 minutes 拓殖バス「交通公園前」歩3分 |
| ※ There five or more of the car space! Sunny in the corner lot! ※5台以上のカースペース有り!角地で日当り良好! |
| 2224 2224 |
Features pickup 特徴ピックアップ | | Parking three or more possible / Immediate Available / Super close / Facing south / Yang per good / LDK15 tatami mats or more / Around traffic fewer / Corner lot / Garden more than 10 square meters / 2-story / A large gap between the neighboring house / Maintained sidewalk 駐車3台以上可 /即入居可 /スーパーが近い /南向き /陽当り良好 /LDK15畳以上 /周辺交通量少なめ /角地 /庭10坪以上 /2階建 /隣家との間隔が大きい /整備された歩道 | Price 価格 | | 4.5 million yen 450万円 | Floor plan 間取り | | 4LDK 4LDK | Units sold 販売戸数 | | 1 units 1戸 | Land area 土地面積 | | 330.55 sq m (registration) 330.55m2(登記) | Building area 建物面積 | | 113.8 sq m (registration) 113.8m2(登記) | Driveway burden-road 私道負担・道路 | | Nothing, North 15.5m width (contact the road width 24.5m), West 10.2m width (contact the road width 13.4m) 無、北15.5m幅(接道幅24.5m)、西10.2m幅(接道幅13.4m) | Completion date 完成時期(築年月) | | December 1981 1981年12月 | Address 住所 | | Hokkaido Kato-gun Kamishihoro-cho Kamishihoro-East 2-wire 北海道河東郡上士幌町字上士幌東2線 | Traffic 交通 | | Takushoku bus "traffic Koenmae" walk 3 minutes 拓殖バス「交通公園前」歩3分 | Contact お問い合せ先 | | TEL: 0800-603-9501 [Toll free] mobile phone ・ Also available from PHS Caller ID is not notified Please contact the "saw SUUMO (Sumo)" If it does not lead, If the real estate company TEL:0800-603-9501【通話料無料】携帯電話・PHSからもご利用いただけます 発信者番号は通知されません 「SUUMO(スーモ)を見た」と問い合わせください つながらない方、不動産会社の方は
| Time residents 入居時期 | | Immediate available 即入居可 | Land of the right form 土地の権利形態 | | Ownership 所有権 | Structure and method of construction 構造・工法 | | Wooden 2-story 木造2階建 | Use district 用途地域 | | City planning area outside 都市計画区域外 | Company profile 会社概要 | | <Mediation> Governor of Hokkaido Tokachi (8) No. 000422 (Ltd.) delay Yubinbango080-0025 Obihiro, Hokkaido Nishijugojominami 14-1-11 <仲介>北海道知事十勝(8)第000422号(株)ちえん〒080-0025 北海道帯広市西十五条南14-1-11 |
 Local appearance photo
現地外観写真
 Other local
その他現地
Floor plan間取り図  4.5 million yen, 4LDK, Land area 330.55 sq m , Building area 113.8 sq m
450万円、4LDK、土地面積330.55m2、建物面積113.8m2
Location
|