Used Homes » Hokkaido » Kitahiroshima
 
| | Hokkaido Kitahiroshima 北海道北広島市 |
| Central bus "Higashikyosakae 2-chome" walk 3 minutes 中央バス「東共栄2丁目」歩3分 |
| Parking three or more possible, Yang per good, 2-story, Nantei, Wood deck 駐車3台以上可、陽当り良好、2階建、南庭、ウッドデッキ |
| Parking three or more possible, Yang per good, 2-story, Nantei, Wood deck 駐車3台以上可、陽当り良好、2階建、南庭、ウッドデッキ |
Features pickup 特徴ピックアップ | | Parking three or more possible / Yang per good / 2-story / Nantei / Wood deck 駐車3台以上可 /陽当り良好 /2階建 /南庭 /ウッドデッキ | Price 価格 | | 21,800,000 yen 2180万円 | Floor plan 間取り | | 4LDK 4LDK | Units sold 販売戸数 | | 1 units 1戸 | Land area 土地面積 | | 440.65 sq m 440.65m2 | Building area 建物面積 | | 151.7 sq m 151.7m2 | Driveway burden-road 私道負担・道路 | | Nothing, Northwest 8m width (contact the road width 14.3m) 無、北西8m幅(接道幅14.3m) | Completion date 完成時期(築年月) | | December 2003 2003年12月 | Address 住所 | | Hokkaido Kitahiroshima Higashikyosakae 3 北海道北広島市東共栄3 | Traffic 交通 | | Central bus "Higashikyosakae 2-chome" walk 3 minutes 中央バス「東共栄2丁目」歩3分 | Contact お問い合せ先 | | TEL: 0800-603-1354 [Toll free] mobile phone ・ Also available from PHS Caller ID is not notified Please contact the "saw SUUMO (Sumo)" If it does not lead, If the real estate company TEL:0800-603-1354【通話料無料】携帯電話・PHSからもご利用いただけます 発信者番号は通知されません 「SUUMO(スーモ)を見た」と問い合わせください つながらない方、不動産会社の方は
| Building coverage, floor area ratio 建ぺい率・容積率 | | 40% ・ 60% 40%・60% | Time residents 入居時期 | | Consultation 相談 | Land of the right form 土地の権利形態 | | Ownership 所有権 | Structure and method of construction 構造・工法 | | Wooden zinc plated steel Itabuki 2 story 木造亜鉛メッキ鋼板葺2階建 | Use district 用途地域 | | One low-rise 1種低層 | Overview and notices その他概要・特記事項 | | Parking: car space 駐車場:カースペース | Company profile 会社概要 | | <Mediation> Governor of Hokkaido Ishikari (13) No. 001122 (Corporation) Hokkaido Building Lots and Buildings Transaction Business Association (One company) Hokkaido Real Estate Fair Trade Council member Sapporo home and Commerce Co., Ltd. Head Office Consulting Division Yubinbango062-0932 Sapporo, Hokkaido Toyohira-ku Hiragishi Article 2 13-22 <仲介>北海道知事石狩(13)第001122号(公社)北海道宅地建物取引業協会会員 (一社)北海道不動産公正取引協議会加盟札幌宅商(株)本社コンサルティング事業部〒062-0932 北海道札幌市豊平区平岸2条13-22 |
Local appearance photo現地外観写真  Local (11 May 2013) Shooting
現地(2013年11月)撮影
Compartment figure区画図  21,800,000 yen, 4LDK, Land area 440.65 sq m , Building area 151.7 sq m
2180万円、4LDK、土地面積440.65m2、建物面積151.7m2
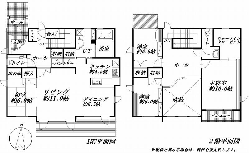
Floor plan間取り図  21,800,000 yen, 4LDK, Land area 440.65 sq m , Building area 151.7 sq m
2180万円、4LDK、土地面積440.65m2、建物面積151.7m2
Local appearance photo現地外観写真  Local (11 May 2013) Shooting
現地(2013年11月)撮影
Livingリビング  Local (11 May 2013) Shooting
現地(2013年11月)撮影
Bathroom浴室  Indoor (11 May 2013) Shooting
室内(2013年11月)撮影
Kitchenキッチン  Indoor (11 May 2013) Shooting
室内(2013年11月)撮影
Non-living roomリビング以外の居室  Indoor (11 May 2013) Shooting
室内(2013年11月)撮影
Entrance玄関  Local (11 May 2013) Shooting
現地(2013年11月)撮影
Wash basin, toilet洗面台・洗面所  Indoor (11 May 2013) Shooting
室内(2013年11月)撮影
Toiletトイレ  Indoor (11 May 2013) Shooting
室内(2013年11月)撮影
Other introspectionその他内観  Indoor (11 May 2013) Shooting
室内(2013年11月)撮影
Local appearance photo現地外観写真  Local (11 May 2013) Shooting
現地(2013年11月)撮影
Livingリビング  Local (11 May 2013) Shooting
現地(2013年11月)撮影
Kitchenキッチン  Indoor (11 May 2013) Shooting
室内(2013年11月)撮影
Non-living roomリビング以外の居室  Indoor (11 May 2013) Shooting
室内(2013年11月)撮影
Other introspectionその他内観  Indoor (11 May 2013) Shooting
室内(2013年11月)撮影
Non-living roomリビング以外の居室  Indoor (11 May 2013) Shooting
室内(2013年11月)撮影
Other introspectionその他内観  Indoor (11 May 2013) Shooting
室内(2013年11月)撮影
Non-living roomリビング以外の居室  Indoor (11 May 2013) Shooting
室内(2013年11月)撮影
Location
|