|
|
Hokkaido Kitahiroshima
北海道北広島市
|
|
Central bus "Satomi-cho 1-chome" walk 4 minutes
中央バス「里見町1丁目」歩4分
|
|
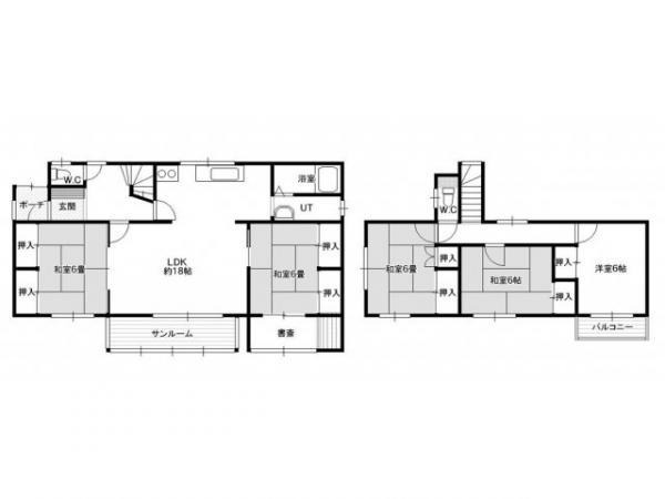
■ A quiet residential area ■ Yang per good! ■ Shutter garage Yes ■ 5LDK + 2 floor balcony
■閑静な住宅街 ■陽当り良好! ■シャッターガレージ有 ■5LDK+2階バルコニー
|
|
Those who wish to preview the, Please contact us to charge!
ご内覧を御希望の方は、是非担当までお問い合わせ下さい!
|
Price 価格 | | 6.8 million yen 680万円 |
Floor plan 間取り | | 5LDK 5LDK |
Units sold 販売戸数 | | 1 units 1戸 |
Land area 土地面積 | | 339.91 sq m (registration) 339.91m2(登記) |
Building area 建物面積 | | 118.26 sq m (registration) 118.26m2(登記) |
Driveway burden-road 私道負担・道路 | | Nothing, Northeast 17.1m width (contact the road width 8m) 無、北東17.1m幅(接道幅8m) |
Completion date 完成時期(築年月) | | July 1976 1976年7月 |
Address 住所 | | Hokkaido Kitahiroshima Satomi-cho 3 北海道北広島市里見町3 |
Traffic 交通 | | Central bus "Satomi-cho 1-chome" walk 4 minutes 中央バス「里見町1丁目」歩4分 |
Person in charge 担当者より | | Person in charge of real-estate and building Miyashita Masami Age: If you have property to be worried about in the 30's you are looking for areas of, First, Please feel free to contact us. 担当者宅建宮下 政美年齢:30代お探しの地域で気になる物件がございましたら、まずは、お気軽にご相談下さい。 |
Contact お問い合せ先 | | TEL: 0800-603-2119 [Toll free] mobile phone ・ Also available from PHS Caller ID is not notified Please contact the "saw SUUMO (Sumo)" If it does not lead, If the real estate company TEL:0800-603-2119【通話料無料】携帯電話・PHSからもご利用いただけます 発信者番号は通知されません 「SUUMO(スーモ)を見た」と問い合わせください つながらない方、不動産会社の方は
|
Building coverage, floor area ratio 建ぺい率・容積率 | | 40% ・ Fifty percent 40%・50% |
Time residents 入居時期 | | Immediate available 即入居可 |
Land of the right form 土地の権利形態 | | Ownership 所有権 |
Structure and method of construction 構造・工法 | | Wooden 2-story 木造2階建 |
Use district 用途地域 | | One low-rise 1種低層 |
Overview and notices その他概要・特記事項 | | Contact: Miyashita Masami, Facilities: Public Water Supply, This sewage, Parking: Garage 担当者:宮下 政美、設備:公営水道、本下水、駐車場:車庫 |
Company profile 会社概要 | | <Mediation> Governor of Hokkaido Ishikari (9) No. 003404 Ye station Kitahiroshima ・ Eniwa store (Ltd.) Masamoto Chiken Kitahiroshima store Yubinbango061-1121 Hokkaido Kitahiroshima center 6-6-3 <仲介>北海道知事石狩(9)第003404号イエステーション北広島・恵庭店(株)八城地建北広島店〒061-1121 北海道北広島市中央6-6-3 |