1979November
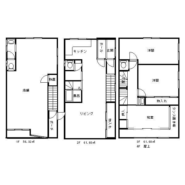
13.2 million yen, 4LDK, 187.1 sq m
Used Homes » Hokkaido » Otaru
 
| | Otaru, Hokkaido 北海道小樽市 |
| JR Hakodate Line "Otaru" walk 4 minutes JR函館本線「小樽」歩4分 |
| Otaru Station 4-minute walk, Facing the bus Michiri, Yes nothing industry 小樽駅徒歩4分、バス道りに面し、何業も可 |
Features pickup 特徴ピックアップ | | Immediate Available / LDK20 tatami mats or more / Or more before road 6m / Corner lot / Japanese-style room / All room 6 tatami mats or more / Three-story or more / City gas / Flat terrain 即入居可 /LDK20畳以上 /前道6m以上 /角地 /和室 /全居室6畳以上 /3階建以上 /都市ガス /平坦地 | Price 価格 | | 13.2 million yen 1320万円 | Floor plan 間取り | | 4LDK 4LDK | Units sold 販売戸数 | | 1 units 1戸 | Land area 土地面積 | | 75.73 sq m (registration) 75.73m2(登記) | Building area 建物面積 | | 187.1 sq m 187.1m2 | Driveway burden-road 私道負担・道路 | | Nothing, East 18m width (contact the road width 6.3m), North 4m width (contact the road width 12m) 無、東18m幅(接道幅6.3m)、北4m幅(接道幅12m) | Completion date 完成時期(築年月) | | November 1979 1979年11月 | Address 住所 | | Otaru, Hokkaido rice 3 北海道小樽市稲穂3 | Traffic 交通 | | JR Hakodate Line "Otaru" walk 4 minutes JR函館本線「小樽」歩4分
| Related links 関連リンク | | [Related Sites of this company] 【この会社の関連サイト】 | Person in charge 担当者より | | Rep Watanabe Yukihiro 担当者渡部 幸弘 | Contact お問い合せ先 | | TEL: 0800-809-8547 [Toll free] mobile phone ・ Also available from PHS Caller ID is not notified Please contact the "saw SUUMO (Sumo)" If it does not lead, If the real estate company TEL:0800-809-8547【通話料無料】携帯電話・PHSからもご利用いただけます 発信者番号は通知されません 「SUUMO(スーモ)を見た」と問い合わせください つながらない方、不動産会社の方は
| Building coverage, floor area ratio 建ぺい率・容積率 | | 80% ・ 600% 80%・600% | Time residents 入居時期 | | Immediate available 即入居可 | Land of the right form 土地の権利形態 | | Ownership 所有権 | Structure and method of construction 構造・工法 | | Steel frame three-story 鉄骨3階建 | Use district 用途地域 | | Commerce 商業 | Overview and notices その他概要・特記事項 | | Contact: Watanabe Yukihiro, Facilities: Public Water Supply, This sewage, City gas 担当者:渡部 幸弘、設備:公営水道、本下水、都市ガス | Company profile 会社概要 | | <Mediation> Governor of Hokkaido Shiribeshi (5) Article 000290 No. Century 21 (with) House bank Yubinbango047-0032 Otaru, Hokkaido rice 2-18-1 Kaohsiung building first floor <仲介>北海道知事後志(5)第000290号センチュリー21(有)ハウスバンク〒047-0032 北海道小樽市稲穂2-18-1 高雄ビル1階 |
 Local appearance photo
現地外観写真
Floor plan間取り図  13.2 million yen, 4LDK, Land area 75.73 sq m , Building area 187.1 sq m
1320万円、4LDK、土地面積75.73m2、建物面積187.1m2
Location
|