1991August
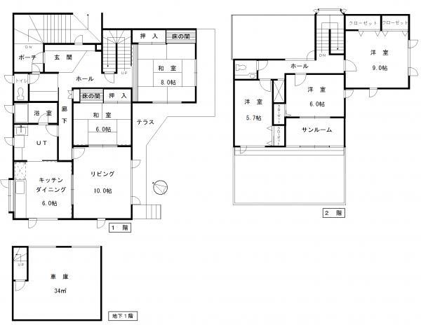
26,800,000 yen, 5LDK, 191.15 sq m
Used Homes » Hokkaido » Sapporo Atsubetsu District
 
| | Sapporo, Hokkaido Atsubetsu District 北海道札幌市厚別区 |
| JR Hakodate Line "Forest Park" walk 15 minutes JR函館本線「森林公園」歩15分 |
| 2007 exterior wall siding the entire Chokawa! TES boiler new! There are 2 car parking spaces in addition to the underground garage! 平成19年外壁サイディング全面張替!TESボイラー新品!地下車庫以外に駐車スペース2台分あります! |
| With road heating ロードヒーティング付き |
Price 価格 | | 26,800,000 yen 2680万円 | Floor plan 間取り | | 5LDK 5LDK | Units sold 販売戸数 | | 1 units 1戸 | Total units 総戸数 | | 1 units 1戸 | Land area 土地面積 | | 252.13 sq m (registration) 252.13m2(登記) | Building area 建物面積 | | 191.15 sq m (registration) 191.15m2(登記) | Driveway burden-road 私道負担・道路 | | Nothing, East 8m width (contact the road width 16.8m) 無、東8m幅(接道幅16.8m) | Completion date 完成時期(築年月) | | August 1991 1991年8月 | Address 住所 | | Sapporo, Hokkaido Atsubetsu District Atsubetsuhigashisanjo 7-13-7 北海道札幌市厚別区厚別東三条7-13-7 | Traffic 交通 | | JR Hakodate Line "Forest Park" walk 15 minutes JR函館本線「森林公園」歩15分
| Contact お問い合せ先 | | TEL: 0800-603-3119 [Toll free] mobile phone ・ Also available from PHS Caller ID is not notified Please contact the "saw SUUMO (Sumo)" If it does not lead, If the real estate company TEL:0800-603-3119【通話料無料】携帯電話・PHSからもご利用いただけます 発信者番号は通知されません 「SUUMO(スーモ)を見た」と問い合わせください つながらない方、不動産会社の方は
| Building coverage, floor area ratio 建ぺい率・容積率 | | 40% ・ 80% 40%・80% | Time residents 入居時期 | | Immediate available 即入居可 | Land of the right form 土地の権利形態 | | Ownership 所有権 | Structure and method of construction 構造・工法 | | Wooden second floor underground 1 story 木造2階地下1階建 | Renovation リフォーム | | December 2013 interior renovation completed (kitchen ・ bathroom ・ toilet ・ wall ・ floor ・ all rooms) 2013年12月内装リフォーム済(キッチン・浴室・トイレ・壁・床・全室) | Use district 用途地域 | | One low-rise 1種低層 | Overview and notices その他概要・特記事項 | | Facilities: Public Water Supply, This sewage, City gas, Parking: underground garage 設備:公営水道、本下水、都市ガス、駐車場:地下車庫 | Company profile 会社概要 | | <Mediation> Governor of Hokkaido Ishikari (3) No. 006733 (Ltd.) Yuki ・ Planning Yubinbango060-0009 Sapporo, Hokkaido Chuo Kitakujonishi 24-3-14 Aramatabiru second floor <仲介>北海道知事石狩(3)第006733号(株)ユーキ・プランニング〒060-0009 北海道札幌市中央区北九条西24-3-14アラマタビル2階 |
 Local appearance photo
現地外観写真
 Local appearance photo
現地外観写真
Floor plan間取り図  26,800,000 yen, 5LDK, Land area 252.13 sq m , Building area 191.15 sq m
2680万円、5LDK、土地面積252.13m2、建物面積191.15m2
 Living
リビング
 Entrance
玄関
 Parking lot
駐車場
 Balcony
バルコニー
 View photos from the dwelling unit
住戸からの眺望写真
 Living
リビング
Location
|