|
|
Hokkaido, Sapporo Higashi-ku
北海道札幌市東区
|
|
JR Sasshō Line "Taiping" walk 6 minutes
JR札沼線「太平」歩6分
|
|
JR "Taiping" Station 6-minute walk ・ Spacious 5LDK housing ・ Interior already ・ Two and two blue sky garage
JR「太平」駅徒歩6分・広々5LDK住宅・内装済・車庫2台と青空2台
|
|
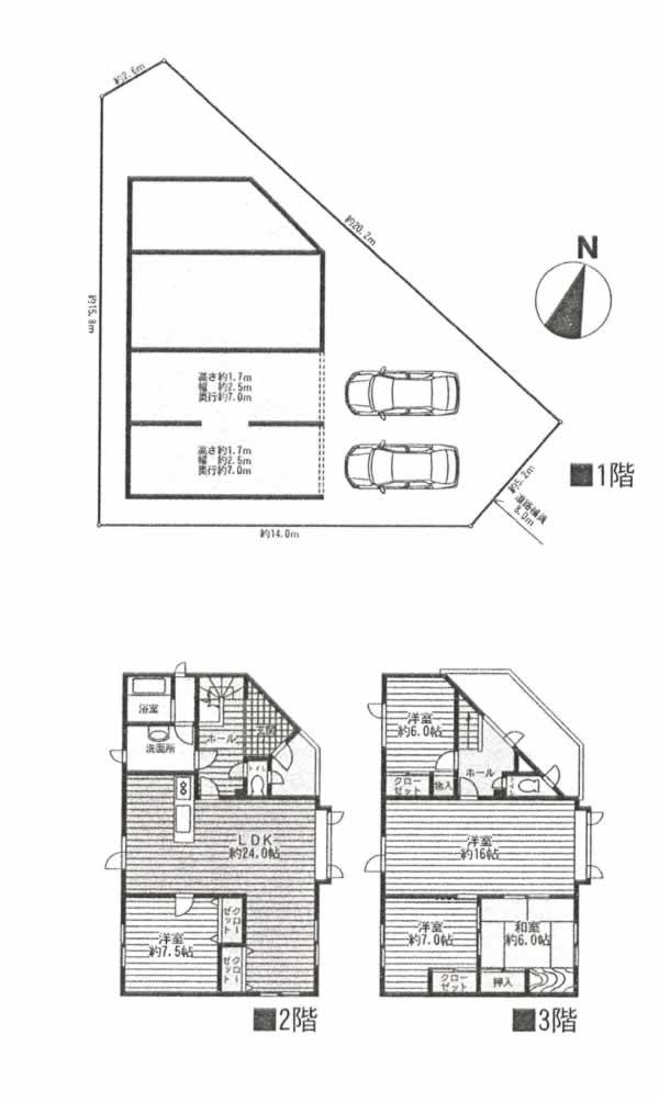
Parking three or more possible, LDK20 tatami mats or more, Interior renovation, All room storageese-style room, Flooring Chokawa, IH cooking heater, Three-story or more
駐車3台以上可、LDK20畳以上、内装リフォーム、全居室収納、和室、フローリング張替、IHクッキングヒーター、3階建以上
|
Features pickup 特徴ピックアップ | | Parking three or more possible / LDK20 tatami mats or more / Interior renovation / All room storage / Japanese-style room / Flooring Chokawa / IH cooking heater / Three-story or more 駐車3台以上可 /LDK20畳以上 /内装リフォーム /全居室収納 /和室 /フローリング張替 /IHクッキングヒーター /3階建以上 |
Price 価格 | | 22,800,000 yen 2280万円 |
Floor plan 間取り | | 5LDK 5LDK |
Units sold 販売戸数 | | 1 units 1戸 |
Land area 土地面積 | | 191.47 sq m 191.47m2 |
Building area 建物面積 | | 187.97 sq m 187.97m2 |
Driveway burden-road 私道負担・道路 | | Nothing, Southeast 8m width 無、南東8m幅 |
Completion date 完成時期(築年月) | | December 1990 1990年12月 |
Address 住所 | | Hokkaido, Sapporo Higashi-ku, Kitagojujohigashi 7 北海道札幌市東区北五十条東7 |
Traffic 交通 | | JR Sasshō Line "Taiping" walk 6 minutes JR札沼線「太平」歩6分
|
Related links 関連リンク | | [Related Sites of this company] 【この会社の関連サイト】 |
Contact お問い合せ先 | | TEL: 0800-603-3040 [Toll free] mobile phone ・ Also available from PHS Caller ID is not notified Please contact the "saw SUUMO (Sumo)" If it does not lead, If the real estate company TEL:0800-603-3040【通話料無料】携帯電話・PHSからもご利用いただけます 発信者番号は通知されません 「SUUMO(スーモ)を見た」と問い合わせください つながらない方、不動産会社の方は
|
Building coverage, floor area ratio 建ぺい率・容積率 | | Fifty percent ・ 80% 50%・80% |
Time residents 入居時期 | | Immediate available 即入居可 |
Land of the right form 土地の権利形態 | | Ownership 所有権 |
Structure and method of construction 構造・工法 | | Wooden three-story 木造3階建 |
Renovation リフォーム | | July 2013 interior renovation completed (kitchen ・ wall ・ floor) 2013年7月内装リフォーム済(キッチン・壁・床) |
Use district 用途地域 | | One low-rise 1種低層 |
Overview and notices その他概要・特記事項 | | Facilities: Public Water Supply, This sewage, Parking: Garage 設備:公営水道、本下水、駐車場:車庫 |
Company profile 会社概要 | | <Mediation> Governor of Hokkaido Ishikari (5) No. 006,137 (one company) Hokkaido Real Estate Fair Trade Council member Trust Home Ltd. Yubinbango062-0004 Sapporo, Hokkaido Toyohira-ku Misonoyonjo 3-2-17 <仲介>北海道知事石狩(5)第006137号(一社)北海道不動産公正取引協議会会員 トラストホーム(株)〒062-0004 北海道札幌市豊平区美園四条3-2-17 |