1980November
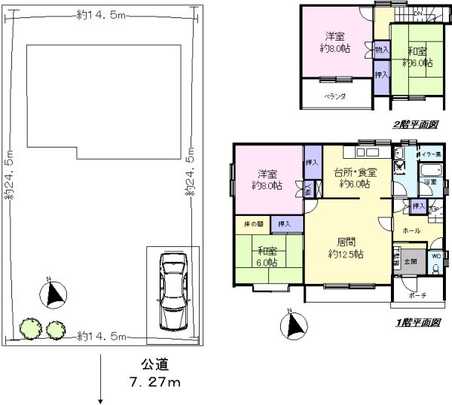
22,700,000 yen, 4LDK, 108.06 sq m
Used Homes » Hokkaido » Sapporo Higashi-ku
 
| | Hokkaido, Sapporo Higashi-ku 北海道札幌市東区 |
| Subway Toho "Motomachi" walk 10 minutes 地下鉄東豊線「元町」歩10分 |
Price 価格 | | 22,700,000 yen 2270万円 | Floor plan 間取り | | 4LDK 4LDK | Units sold 販売戸数 | | 1 units 1戸 | Land area 土地面積 | | 357.02 sq m (registration) 357.02m2(登記) | Building area 建物面積 | | 108.06 sq m (registration) 108.06m2(登記) | Driveway burden-road 私道負担・道路 | | Nothing, Southwest 7.2m width (contact the road width 14.5m) 無、南西7.2m幅(接道幅14.5m) | Completion date 完成時期(築年月) | | November 1980 1980年11月 | Address 住所 | | Hokkaido, Sapporo Higashi-ku, Kitaniju Nijohigashi 19 北海道札幌市東区北二十二条東19 | Traffic 交通 | | Subway Toho "Motomachi" walk 10 minutes 地下鉄東豊線「元町」歩10分
| Person in charge 担当者より | | Rep Kagami Yoshitaka 担当者各務 義隆 | Contact お問い合せ先 | | Sumitomo Real Estate Sales Co., Ltd. Sapporo central business center TEL: 011-232-5133 Please inquire as "saw SUUMO (Sumo)" 住友不動産販売(株)札幌中央営業センターTEL:011-232-5133「SUUMO(スーモ)を見た」と問い合わせください | Building coverage, floor area ratio 建ぺい率・容積率 | | 60% ・ 200% 60%・200% | Time residents 入居時期 | | Immediate available 即入居可 | Land of the right form 土地の権利形態 | | Ownership 所有権 | Structure and method of construction 構造・工法 | | Wooden 2-story 木造2階建 | Use district 用途地域 | | Two mid-high 2種中高 | Other limitations その他制限事項 | | / Terrain: flat /地勢:平坦 | Overview and notices その他概要・特記事項 | | Contact: Kagami Yoshitaka, Parking: car space 担当者:各務 義隆、駐車場:カースペース | Company profile 会社概要 | | <Mediation> Minister of Land, Infrastructure and Transport (11) No. 002077 (one company) Property distribution management Association (Corporation) metropolitan area real estate Fair Trade Council member Sumitomo Real Estate Sales Co., Ltd. Sapporo central business center Yubinbango060-0003 Hokkaido Chuo-ku, Sapporo Kita 3 Nishi 4-1-1 Nippon Life Insurance building the sixth floor <仲介>国土交通大臣(11)第002077号(一社)不動産流通経営協会会員 (公社)首都圏不動産公正取引協議会加盟住友不動産販売(株)札幌中央営業センター〒060-0003 北海道札幌市中央区北3条西4-1-1 日本生命ビル6階 |
Local appearance photo現地外観写真  It is East House construction. South-facing day is good
東日本ハウス施工です。南向き日当たり良好です
 Floor plan
間取り図
Location
|