|
|
Sapporo, Hokkaido, Kita-ku,
北海道札幌市北区
|
|
JR Sasshō Line "lily Hara" walk 8 minutes
JR札沼線「百合が原」歩8分
|
|
July 2007 Built in store with housing! Electrical ・ Since the water around is independent, Also used as a rental property OK!
平成19年7月築店舗付き住宅!電気・水廻りは独立しているので、賃貸物件としても活用OK!
|
|
■ Disabled & all-electric homes ■ Or it was electric heat radiation panel Individual heating ■ There is storage enhancement system Kitchen ■ There are LED color corresponding lightning signboard
■バリアフリー&オール電化住宅■電熱輻射パネル個別暖房であったか■収納充実システムキッチンあり■LEDカラー対応電光看板あります
|
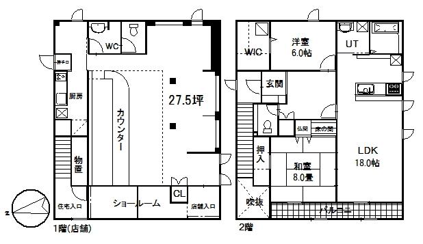
Features pickup 特徴ピックアップ | | Parking three or more possible / Land 50 square meters or more / LDK18 tatami mats or more / Super close / System kitchen / Yang per good / All room storage / Japanese-style room / Barrier-free / Bathroom 1 tsubo or more / 2-story / IH cooking heater / Walk-in closet / All room 6 tatami mats or more / All-electric 駐車3台以上可 /土地50坪以上 /LDK18畳以上 /スーパーが近い /システムキッチン /陽当り良好 /全居室収納 /和室 /バリアフリー /浴室1坪以上 /2階建 /IHクッキングヒーター /ウォークインクロゼット /全居室6畳以上 /オール電化 |
Property name 物件名 | | Taiping Article 9 5-chome store with housing 太平9条5丁目店舗付き住宅 |
Price 価格 | | 22,700,000 yen 2270万円 |
Floor plan 間取り | | 2LDK 2LDK |
Units sold 販売戸数 | | 1 units 1戸 |
Land area 土地面積 | | 195 sq m (registration) 195m2(登記) |
Building area 建物面積 | | 188.39 sq m (registration) 188.39m2(登記) |
Driveway burden-road 私道負担・道路 | | Nothing, West 20m width (contact the road width 11m) 無、西20m幅(接道幅11m) |
Completion date 完成時期(築年月) | | July 2007 2007年7月 |
Address 住所 | | Hokkaido Sapporo Kita Ward Taiheikujo 5 北海道札幌市北区太平九条5 |
Traffic 交通 | | JR Sasshō Line "lily Hara" walk 8 minutes Central bus "Taiping Article 8-chome, 4" walk 2 minutes JR札沼線「百合が原」歩8分 中央バス「太平8条4丁目」歩2分 |
Person in charge 担当者より | | Person in charge of real-estate and building Ogawa Akinori 担当者宅建小川 明徳 |
Contact お問い合せ先 | | TEL: 0800-603-1352 [Toll free] mobile phone ・ Also available from PHS Caller ID is not notified Please contact the "saw SUUMO (Sumo)" If it does not lead, If the real estate company TEL:0800-603-1352【通話料無料】携帯電話・PHSからもご利用いただけます 発信者番号は通知されません 「SUUMO(スーモ)を見た」と問い合わせください つながらない方、不動産会社の方は
|
Building coverage, floor area ratio 建ぺい率・容積率 | | 60% ・ 200% 60%・200% |
Time residents 入居時期 | | Consultation 相談 |
Land of the right form 土地の権利形態 | | Ownership 所有権 |
Structure and method of construction 構造・工法 | | Wooden 2-story 木造2階建 |
Use district 用途地域 | | Quasi-residence 準住居 |
Other limitations その他制限事項 | | 18m height district ・ Aviation progress zone (1 gradient of intrusion surface 50 minutes) 18m高度地区・航空進行区域(侵入表面50分の1勾配) |
Overview and notices その他概要・特記事項 | | Contact: Ogawa Akinori, Facilities: Public Water Supply, This sewage, All-electric, Parking: car space 担当者:小川 明徳、設備:公営水道、本下水、オール電化、駐車場:カースペース |
Company profile 会社概要 | | <Marketing alliance (mediated)> Governor of Hokkaido Ishikari (13) No. 001122 (Corporation) Hokkaido Building Lots and Buildings Transaction Business Association (One company) Hokkaido Real Estate Fair Trade Council member Sapporo home and Commerce Co., Ltd. headquarters Yubinbango062-0932 Sapporo, Hokkaido Toyohira-ku Hiragishi 2 Article 13-22 Chisun apartment second floor <販売提携(媒介)>北海道知事石狩(13)第001122号(公社)北海道宅地建物取引業協会会員 (一社)北海道不動産公正取引協議会加盟札幌宅商(株)本社〒062-0932 北海道札幌市豊平区平岸2条13-22チサンマンション2階 |