|
|
Sapporo, Hokkaido, Kita-ku,
北海道札幌市北区
|
|
Chuo Bus, "" colonization Article 4 3-chome "stop" walk 1 minute
中央バス「「屯田4条3丁目」停」歩1分
|
|
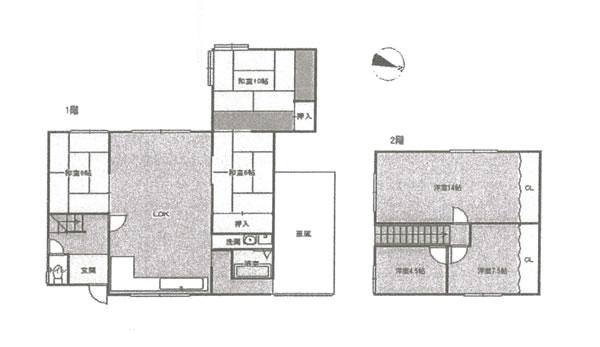
Corner lot ・ Spacious 6LDK housing ・ Land about 80 square meters ・ Super 3-minute walk ・ 1986 April extension completed
角地・広々6LDK住宅・土地約80坪・スーパー徒歩3分・昭和61年4月増築済
|
|
Land 50 square meters or more, Super close, A quiet residential area, Corner lot, 2-story
土地50坪以上、スーパーが近い、閑静な住宅地、角地、2階建
|
Features pickup 特徴ピックアップ | | Land 50 square meters or more / Super close / A quiet residential area / Corner lot / 2-story 土地50坪以上 /スーパーが近い /閑静な住宅地 /角地 /2階建 |
Price 価格 | | 12 million yen 1200万円 |
Floor plan 間取り | | 6LDK 6LDK |
Units sold 販売戸数 | | 1 units 1戸 |
Land area 土地面積 | | 267.58 sq m (registration) 267.58m2(登記) |
Building area 建物面積 | | 164.14 sq m (registration) 164.14m2(登記) |
Driveway burden-road 私道負担・道路 | | Nothing, East 20m width (contact the road width 16m), North 11m width (contact the road width 10.4m) 無、東20m幅(接道幅16m)、北11m幅(接道幅10.4m) |
Completion date 完成時期(築年月) | | October 1969 1969年10月 |
Address 住所 | | Hokkaido Sapporo Kita Ward Tonden'yonjo 4 北海道札幌市北区屯田四条4 |
Traffic 交通 | | Chuo Bus, "" colonization Article 4 3-chome "stop" walk 1 minute 中央バス「「屯田4条3丁目」停」歩1分 |
Related links 関連リンク | | [Related Sites of this company] 【この会社の関連サイト】 |
Contact お問い合せ先 | | TEL: 0800-603-3040 [Toll free] mobile phone ・ Also available from PHS Caller ID is not notified Please contact the "saw SUUMO (Sumo)" If it does not lead, If the real estate company TEL:0800-603-3040【通話料無料】携帯電話・PHSからもご利用いただけます 発信者番号は通知されません 「SUUMO(スーモ)を見た」と問い合わせください つながらない方、不動産会社の方は
|
Building coverage, floor area ratio 建ぺい率・容積率 | | 60% ・ 200% 60%・200% |
Time residents 入居時期 | | Consultation 相談 |
Land of the right form 土地の権利形態 | | Ownership 所有権 |
Structure and method of construction 構造・工法 | | Masonry 2-story ブロック造2階建 |
Use district 用途地域 | | Quasi-residence 準住居 |
Overview and notices その他概要・特記事項 | | Facilities: Public Water Supply, This sewage, Parking: car space 設備:公営水道、本下水、駐車場:カースペース |
Company profile 会社概要 | | <Mediation> Governor of Hokkaido Ishikari (5) No. 006,137 (one company) Hokkaido Real Estate Fair Trade Council member Trust Home Ltd. Yubinbango062-0004 Sapporo, Hokkaido Toyohira-ku Misonoyonjo 3-2-17 <仲介>北海道知事石狩(5)第006137号(一社)北海道不動産公正取引協議会会員 トラストホーム(株)〒062-0004 北海道札幌市豊平区美園四条3-2-17 |