1981September
12.8 million yen, 4LDK, 117.26 sq m
Used Homes » Hokkaido » Sapporo Kiyota Ward
 
| | Hokkaido Sapporo Kiyota Ward 北海道札幌市清田区 |
| Subway Tozai Line "Oyachi" 8 minutes Hiraoka Article 5 1-chome, walk 8 minutes by bus 地下鉄東西線「大谷地」バス8分平岡5条1丁目歩8分 |
Features pickup 特徴ピックアップ | | A quiet residential area / Or more before road 6m / garden 閑静な住宅地 /前道6m以上 /庭 | Price 価格 | | 12.8 million yen 1280万円 | Floor plan 間取り | | 4LDK 4LDK | Units sold 販売戸数 | | 1 units 1戸 | Land area 土地面積 | | 249.79 sq m (registration) 249.79m2(登記) | Building area 建物面積 | | 117.26 sq m (registration) 117.26m2(登記) | Driveway burden-road 私道負担・道路 | | Nothing, North 8m width (contact the road width 14m) 無、北8m幅(接道幅14m) | Completion date 完成時期(築年月) | | September 1981 1981年9月 | Address 住所 | | Hokkaido Sapporo city Kiyoshi Kitanoshijo 4-24-10 北海道札幌市清田区北野四条4-24-10 | Traffic 交通 | | Subway Tozai Line "Oyachi" 8 minutes Hiraoka Article 5 1-chome, walk 8 minutes by bus 地下鉄東西線「大谷地」バス8分平岡5条1丁目歩8分
| Contact お問い合せ先 | | (Yes) avail TEL: 0800-603-2740 [Toll free] mobile phone ・ Also available from PHS Caller ID is not notified Please contact the "saw SUUMO (Sumo)" If it does not lead, If the real estate company (有)アベイルTEL:0800-603-2740【通話料無料】携帯電話・PHSからもご利用いただけます 発信者番号は通知されません 「SUUMO(スーモ)を見た」と問い合わせください つながらない方、不動産会社の方は
| Building coverage, floor area ratio 建ぺい率・容積率 | | 40% ・ 80% 40%・80% | Land of the right form 土地の権利形態 | | Ownership 所有権 | Structure and method of construction 構造・工法 | | Wooden 2-story 木造2階建 | Company profile 会社概要 | | <Mediation> Governor of Hokkaido Ishikari (4) No. 006002 (Corporation) Hokkaido Building Lots and Buildings Transaction Business Association (One company) Hokkaido Real Estate Fair Trade Council member (with) avail Yubinbango004-0071 Sapporo, Hokkaido Atsubetsu District Atsubetsukitaichijo 2-8-1 <仲介>北海道知事石狩(4)第006002号(公社)北海道宅地建物取引業協会会員 (一社)北海道不動産公正取引協議会加盟(有)アベイル〒004-0071 北海道札幌市厚別区厚別北一条2-8-1 |
Local appearance photo現地外観写真  Local shooting
現地撮影
Kitchenキッチン  Indoor shooting
室内撮影
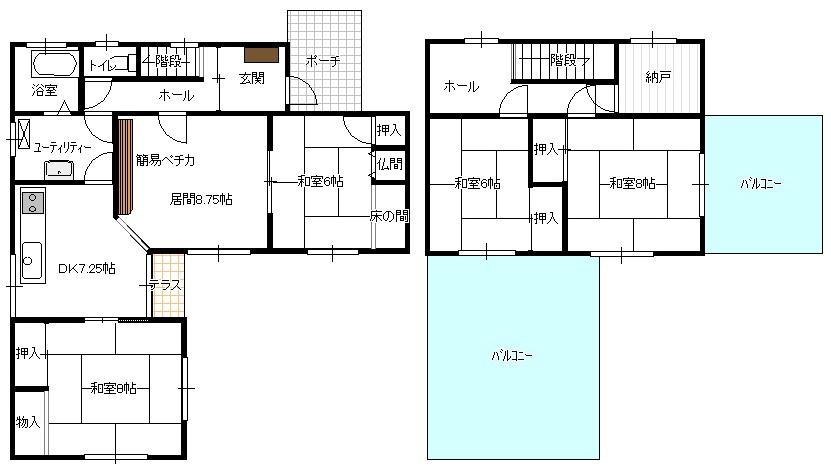
Floor plan間取り図  12.8 million yen, 4LDK, Land area 249.79 sq m , Building area 117.26 sq m
1280万円、4LDK、土地面積249.79m2、建物面積117.26m2
 12.8 million yen, 4LDK, Land area 249.79 sq m , Building area 117.26 sq m
1280万円、4LDK、土地面積249.79m2、建物面積117.26m2
Garden庭  local
現地
Other introspectionその他内観  Indoor shooting
室内撮影
 Other
その他
Location
|