1976November
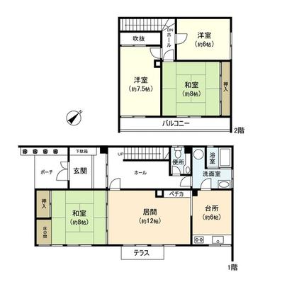
11.5 million yen, 4LDK, 116.76 sq m
Used Homes » Hokkaido » Sapporo Kiyota Ward
 
| | Hokkaido Sapporo Kiyota Ward 北海道札幌市清田区 |
| Subway Tozai Line "Nango 18 chome" 8 minutes Kitano 7 Article 4-chome Tomafu 8 minutes by bus 地下鉄東西線「南郷18丁目」バス8分北野7条4丁目停歩8分 |
Price 価格 | | 11.5 million yen 1150万円 | Floor plan 間取り | | 4LDK 4LDK | Units sold 販売戸数 | | 1 units 1戸 | Land area 土地面積 | | 219.82 sq m (registration) 219.82m2(登記) | Building area 建物面積 | | 116.76 sq m (registration) 116.76m2(登記) | Driveway burden-road 私道負担・道路 | | Nothing, Southwest 11m width (contact the road width 12.7m) 無、南西11m幅(接道幅12.7m) | Completion date 完成時期(築年月) | | November 1976 1976年11月 | Address 住所 | | Hokkaido Sapporo city Kiyoshi Kitanorokujo 4 北海道札幌市清田区北野六条4 | Traffic 交通 | | Subway Tozai Line "Nango 18 chome" 8 minutes Kitano 7 Article 4-chome Tomafu 8 minutes by bus Subway Tozai Line "Oyachi" walk 22 minutes 地下鉄東西線「南郷18丁目」バス8分北野7条4丁目停歩8分 地下鉄東西線「大谷地」歩22分
| Person in charge 担当者より | | Rep Tomokazu Ito 担当者伊藤友和 | Contact お問い合せ先 | | Rehouse Sapporo Mitsui Fudosan Realty Sapporo Mitsui (Ltd.) TEL: 0120-312440 [Toll free] Please contact the "saw SUUMO (Sumo)" 三井のリハウス札幌店三井不動産リアルティ札幌(株)TEL:0120-312440【通話料無料】「SUUMO(スーモ)を見た」と問い合わせください | Building coverage, floor area ratio 建ぺい率・容積率 | | 40% ・ 80% 40%・80% | Time residents 入居時期 | | Consultation 相談 | Land of the right form 土地の権利形態 | | Ownership 所有権 | Structure and method of construction 構造・工法 | | Wooden 2-story 木造2階建 | Use district 用途地域 | | One low-rise 1種低層 | Other limitations その他制限事項 | | The property in the parking space does not have a. 当該物件に駐車スペースはございません。 | Overview and notices その他概要・特記事項 | | Contact: Tomokazu Ito 担当者:伊藤友和 | Company profile 会社概要 | | <Mediation> Governor of Hokkaido Ishikari (5) Article 005813 No. Mitsui Rehouse Sapporo Mitsui Fudosan Realty Sapporo Co. Yubinbango060-0003 Hokkaido Chuo-ku, Sapporo Kita 3 Nishi 3-1 Sapporo Kita Sanjo building first floor <仲介>北海道知事石狩(5)第005813号三井のリハウス札幌店三井不動産リアルティ札幌(株)〒060-0003 北海道札幌市中央区北3条西3-1札幌北三条ビル1階 |
 Local appearance photo
現地外観写真
 Floor plan
間取り図
Location
|