1993July
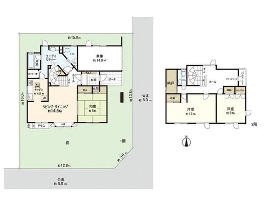
23.8 million yen, 3LDK + S (storeroom), 156.5 sq m
Used Homes » Hokkaido » Sapporo Kiyota Ward
 
| | Hokkaido Sapporo Kiyota Ward 北海道札幌市清田区 |
| Subway Tozai Line "Shin Sapporo" a 15-minute live Hills MinamiAyumi 2 minutes by bus 地下鉄東西線「新さっぽろ」バス15分ライブヒルズ南歩2分 |
Price 価格 | | 23.8 million yen 2380万円 | Floor plan 間取り | | 3LDK + S (storeroom) 3LDK+S(納戸) | Units sold 販売戸数 | | 1 units 1戸 | Land area 土地面積 | | 237.73 sq m (registration) 237.73m2(登記) | Building area 建物面積 | | 156.5 sq m (registration) 156.5m2(登記) | Driveway burden-road 私道負担・道路 | | Nothing, South 8m width (contact the road width 12.8m), East 8m width 無、南8m幅(接道幅12.8m)、東8m幅 | Completion date 完成時期(築年月) | | July 1993 1993年7月 | Address 住所 | | Hokkaido Sapporo city Kiyoshi Hiraokakoenhigashi 4 北海道札幌市清田区平岡公園東4 | Traffic 交通 | | Subway Tozai Line "Shin Sapporo" a 15-minute live Hills MinamiAyumi 2 minutes by bus Subway Tozai Line "Oyachi" bus 18 minutes live Hills MinamiAyumi 2 minutes 地下鉄東西線「新さっぽろ」バス15分ライブヒルズ南歩2分 地下鉄東西線「大谷地」バス18分ライブヒルズ南歩2分
| Person in charge 担当者より | | Rep Otomaru Homarebun 担当者乙丸誉文 | Contact お問い合せ先 | | Rehouse Shiraishi shop Mitsui Fudosan Realty Sapporo Sapporo Mitsui (Ltd.) TEL: 0120-074131 [Toll free] Please contact the "saw SUUMO (Sumo)" 三井のリハウス札幌白石店三井不動産リアルティ札幌(株)TEL:0120-074131【通話料無料】「SUUMO(スーモ)を見た」と問い合わせください | Building coverage, floor area ratio 建ぺい率・容積率 | | 40% ・ 80% 40%・80% | Time residents 入居時期 | | Immediate available 即入居可 | Land of the right form 土地の権利形態 | | Ownership 所有権 | Structure and method of construction 構造・工法 | | Wooden 2-story 木造2階建 | Use district 用途地域 | | One low-rise 1種低層 | Other limitations その他制限事項 | | Building area 156.5 square meters (including the garage area 14.9 square meters) 建物面積 156.5平米(車庫面積14.9平米含む) | Overview and notices その他概要・特記事項 | | Contact: Otomaru Homarebun, Parking: car space 担当者:乙丸誉文、駐車場:カースペース | Company profile 会社概要 | | <Mediation> Governor of Hokkaido Ishikari (5) Article 005813 No. Mitsui Rehouse Sapporo Shiroishi shop Mitsui Fudosan Realty Sapporo Co. Yubinbango003-0023 Hokkaido Sapporo Shiroishi-ku Nangodori 15-chome, Kita 1-41 <仲介>北海道知事石狩(5)第005813号三井のリハウス札幌白石店三井不動産リアルティ札幌(株)〒003-0023 北海道札幌市白石区南郷通15丁目北1-41 |
 Local appearance photo
現地外観写真
 Floor plan
間取り図
Location
|