|
|
Sapporo, Hokkaido, Minami-ku,
北海道札幌市南区
|
|
Jotetsu bus "Minaminosawa 4 Article 2-chome" walk 7 minutes
じょうてつバス「南の沢4条2丁目」歩7分
|
|
Parking of three possible 3LDK! Good day in the southeast direction, Snowmelt 漕有Ri!
駐車3台可の3LDK!東南向きで日当たり良好、融雪漕有り!
|
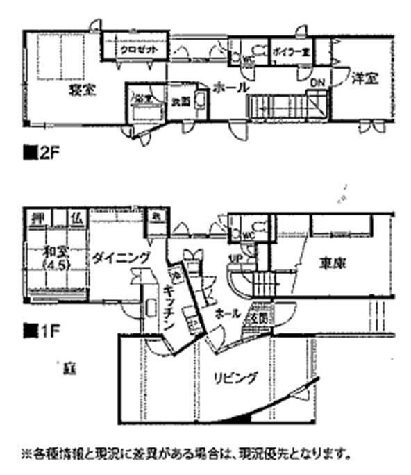
Features pickup 特徴ピックアップ | | Parking three or more possible / Immediate Available / Land 50 square meters or more / System kitchen / Yang per good / All room storage / Japanese-style room / Toilet 2 places / Bathroom 1 tsubo or more / 2-story / Southeast direction / All rooms are two-sided lighting / Located on a hill 駐車3台以上可 /即入居可 /土地50坪以上 /システムキッチン /陽当り良好 /全居室収納 /和室 /トイレ2ヶ所 /浴室1坪以上 /2階建 /東南向き /全室2面採光 /高台に立地 |
Price 価格 | | 17.5 million yen 1750万円 |
Floor plan 間取り | | 3LDK 3LDK |
Units sold 販売戸数 | | 1 units 1戸 |
Land area 土地面積 | | 248.02 sq m (75.02 tsubo) (Registration) 248.02m2(75.02坪)(登記) |
Building area 建物面積 | | 159.41 sq m (48.22 tsubo) (Registration) 159.41m2(48.22坪)(登記) |
Driveway burden-road 私道負担・道路 | | Nothing, Southeast 12m width (contact the road width 11.8m) 無、南東12m幅(接道幅11.8m) |
Completion date 完成時期(築年月) | | June 1994 1994年6月 |
Address 住所 | | Sapporo, Hokkaido, Minami-ku, Minamisawanijo 1 北海道札幌市南区南沢二条1 |
Traffic 交通 | | Jotetsu bus "Minaminosawa 4 Article 2-chome" walk 7 minutes じょうてつバス「南の沢4条2丁目」歩7分 |
Contact お問い合せ先 | | (Yes) MaruHiroshi Hokkaido Real Estate Trading TEL: 0800-603-2152 [Toll free] mobile phone ・ Also available from PHS Caller ID is not notified Please contact the "saw SUUMO (Sumo)" If it does not lead, If the real estate company (有)丸博 北海道不動産商事TEL:0800-603-2152【通話料無料】携帯電話・PHSからもご利用いただけます 発信者番号は通知されません 「SUUMO(スーモ)を見た」と問い合わせください つながらない方、不動産会社の方は
|
Building coverage, floor area ratio 建ぺい率・容積率 | | 40% ・ 80% 40%・80% |
Time residents 入居時期 | | Immediate available 即入居可 |
Land of the right form 土地の権利形態 | | Ownership 所有権 |
Structure and method of construction 構造・工法 | | Wooden 2-story 木造2階建 |
Overview and notices その他概要・特記事項 | | Facilities: Public Water Supply, This sewage, Parking: Garage 設備:公営水道、本下水、駐車場:車庫 |
Company profile 会社概要 | | <Mediation> Governor of Hokkaido Ishikari (5) No. 004786 (Corporation) Hokkaido Building Lots and Buildings Transaction Business Association (One company) Hokkaido Real Estate Fair Trade Council member (with) MaruHiroshi Hokkaido real estate Shoji Yubinbango064-0806 Sapporo, Hokkaido Chuo-ku Minami 6 Nishi 12-1301 <仲介>北海道知事石狩(5)第004786号(公社)北海道宅地建物取引業協会会員 (一社)北海道不動産公正取引協議会加盟(有)丸博 北海道不動産商事〒064-0806 北海道札幌市中央区南6条西12-1301 |