Used Homes » Hokkaido » Sapporo, Nishi-ku


Sapporo, Hokkaido, Nishi-ku,
Subway Tozai Line "Miyanosawa" bus 7 minutes Kotoni Technical High School before walking 4 minutes
South corner lot! Sunny!
Interior ・ Exterior renovation completed! Cross all rooms ・ Floor part ・ CF part Hakawa, Exchange tatami mat, Goby tighten coking, roof ・ Outer wall paint, Terrace waterproof paint other / Garage inside dimension: W4.80m, H7.20m / Garage shutter: W3.00m, D1.94m ※ Extension unregistered part Conditioning: underground 1F Garage, Barn (taxation area 44.15 sq m)
Features pickup
Year Available / LDK18 tatami mats or more / Interior and exterior renovation / Interior renovation / System kitchen / Yang per good / All room storage / Or more before road 6m / Corner lot / Japanese-style room / Shutter - garage / Toilet 2 places / Bathroom 1 tsubo or more / Exterior renovation / 2-story / Southeast direction / Flooring Chokawa / Double-glazing / Warm water washing toilet seat / The window in the bathroom / TV monitor interphone / Dish washing dryer / Walk-in closet / All room 6 tatami mats or more / Storeroom / terrace
Price
15.8 million yen
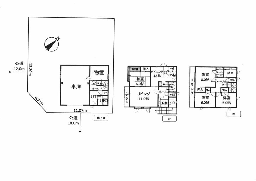
Floor plan
4LDK + S (storeroom)
Units sold
1 units
Total units
1 units
Land area
128.71 sq m (registration)
Building area
121.9 sq m (registration)
Driveway burden-road
Nothing, Southeast 18m width (contact the road width 11m), Southwest 12m width (contact the road width 10.7m)
Completion date
August 1985
Address
Sapporo, Hokkaido, Nishi-ku, Hatsusamujuyonjo 5-3-1
Traffic
Subway Tozai Line "Miyanosawa" bus 7 minutes Kotoni Technical High School before walking 4 minutes
Related links
[Related Sites of this company]
Contact
Fuji Corporation (Corporation) TEL: 0800-603-3344 [Toll free] mobile phone ・ Also available from PHS
Caller ID is not notified
Please contact the "saw SUUMO (Sumo)"
If it does not lead, If the real estate company
Building coverage, floor area ratio
70% ・ 200%
Time residents
Consultation
Land of the right form
Ownership
Structure and method of construction
Wooden second floor underground 1 story
Renovation
October 2013 interior renovation completed (wall ・ floor), October 2013 exterior renovation completed (outer wall ・ roof)
Use district
Semi-industrial
Other limitations
Regulations have by the Landscape Act, Height district, Corner-cutting Yes, 33m height district, The second kind staff living coexistence district
Overview and notices
Facilities: Public Water Supply, This sewage, Individual LPG, Parking: Garage
Company profile
<Mediation> Governor of Hokkaido Ishikari (2) Fuji Corporation (Corporation) Yubinbango060-0061 Hokkaido Chuo-ku, Sapporo No. 006950 Minamiichijonishi 7-20-1


Floor plan

Floor plan. South corner lot! Sunny!
South corner lot! Sunny!

Local appearance photo

Local appearance photo. Exterior Photos
Exterior Photos

Living

Living. Living 11.0 Pledge
Living 11.0 Pledge

Floor plan

Floor plan. 15.8 million yen, 4LDK + S (storeroom), Land area 128.71 sq m , Building area 121.9 sq m floor plan
15.8 million yen, 4LDK + S (storeroom), Land area 128.71 sq m , Building area 121.9 sq m floor plan

Local appearance photo

Local appearance photo. appearance
appearance

Living
Living

Bathroom

Bathroom. unit bus
unit bus

Kitchen

Kitchen. Kitchen 3.75 Pledge
Kitchen 3.75 Pledge

Non-living room

Non-living room. Japanese-style room 6.0 quires
Japanese-style room 6.0 quires

Entrance

Entrance. Entrance before
Entrance before

Wash basin, toilet

Wash basin, toilet. Wash basin
Wash basin

Parking lot

Parking lot. Garage before
Garage before

Balcony

Balcony. Veranda
Veranda

Other introspection

Other introspection. Dining 4.5 Pledge
Dining 4.5 Pledge

Living

Living. Southwest side: Terrace
Southwest side: Terrace

Kitchen

Kitchen. System kitchen
System kitchen

Non-living room

Non-living room. Western-style 8.0 Pledge
Western-style 8.0 Pledge

Entrance

Entrance. Entrance hall
Entrance hall

Parking lot

Parking lot. Garage
Garage

Non-living room

Non-living room. Western-style 6.0 Pledge
Western-style 6.0 Pledge

Non-living room. Western-style 6.0 Pledge
Western-style 6.0 Pledge

Local photos, including front road

Local photos, including front road. South corner lot!
South corner lot!

Local appearance photo

Local appearance photo. Sunny!
Sunny!



Location