|
|
Hokkaido Sapporo Teine-ku,
北海道札幌市手稲区
|
|
JR bus "Maeda Article 8 9-chome stop" walk 6 minutes
JRバス「前田8条9丁目停」歩6分
|
|
Large house of 8LDK, Two-family house is also available. Heisei 25 June large-scale renovated. Exterior wall siding Chokawa ・ Roof Coatings ・ Entrance replacement ・ Window part replaced other
8LDKの大型住宅、二世帯住宅も可能です。平成25年6月大規模リフォーム済みです。外壁サイディング張替・屋根塗装・玄関取替・窓一部取替他
|
Features pickup 特徴ピックアップ | | Parking three or more possible / Land more than 100 square meters / LDK18 tatami mats or more / A quiet residential area / Or more before road 6m / Shutter - garage / Toilet 2 places / 2-story / 2 family house 駐車3台以上可 /土地100坪以上 /LDK18畳以上 /閑静な住宅地 /前道6m以上 /シャッタ-車庫 /トイレ2ヶ所 /2階建 /2世帯住宅 |
Price 価格 | | 18.9 million yen 1890万円 |
Floor plan 間取り | | 8LDK 8LDK |
Units sold 販売戸数 | | 1 units 1戸 |
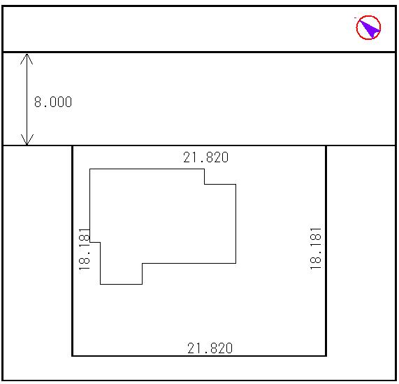
Land area 土地面積 | | 396 sq m (registration) 396m2(登記) |
Building area 建物面積 | | 175.86 sq m (registration) 175.86m2(登記) |
Driveway burden-road 私道負担・道路 | | Nothing, Northeast 8m width (contact the road width 21.8m) 無、北東8m幅(接道幅21.8m) |
Completion date 完成時期(築年月) | | August 1979 1979年8月 |
Address 住所 | | Sapporo, Hokkaido Teine-ku Maedahachijo 8 北海道札幌市手稲区前田八条8 |
Traffic 交通 | | JR bus "Maeda Article 8 9-chome stop" walk 6 minutes JRバス「前田8条9丁目停」歩6分 |
Contact お問い合せ先 | | (Yes) Yamada real estate office TEL: 0800-603-3020 [Toll free] mobile phone ・ Also available from PHS Caller ID is not notified Please contact the "saw SUUMO (Sumo)" If it does not lead, If the real estate company (有)山田不動産事務所TEL:0800-603-3020【通話料無料】携帯電話・PHSからもご利用いただけます 発信者番号は通知されません 「SUUMO(スーモ)を見た」と問い合わせください つながらない方、不動産会社の方は
|
Building coverage, floor area ratio 建ぺい率・容積率 | | 40% ・ 80% 40%・80% |
Time residents 入居時期 | | Consultation 相談 |
Land of the right form 土地の権利形態 | | Ownership 所有権 |
Structure and method of construction 構造・工法 | | Wooden 2-story 木造2階建 |
Use district 用途地域 | | One low-rise 1種低層 |
Overview and notices その他概要・特記事項 | | Facilities: Public Water Supply, This sewage, Individual LPG, Parking: Garage 設備:公営水道、本下水、個別LPG、駐車場:車庫 |
Company profile 会社概要 | | <Mediation> Governor of Hokkaido Ishikari (3) No. 006706 (Corporation) Hokkaido Building Lots and Buildings Transaction Business Association (One company) Hokkaido Real Estate Fair Trade Council member (with) Yamada real estate office Yubinbango065-0016 Hokkaido, Sapporo Higashi-ku, Kita 16 Johigashi 15-1-8 <仲介>北海道知事石狩(3)第006706号(公社)北海道宅地建物取引業協会会員 (一社)北海道不動産公正取引協議会加盟(有)山田不動産事務所〒065-0016 北海道札幌市東区北16条東15-1-8 |