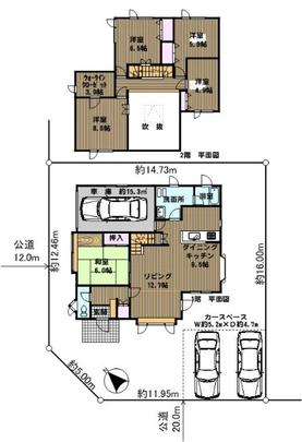
18,800,000 yen, 5LDK, 141.75 sq m
Used Homes » Hokkaido » Sapporo Teine-ku
 
| | Hokkaido Sapporo Teine-ku, 北海道札幌市手稲区 |
| JR Hakodate Line "Teine" 10 minutes Maeda Chuodori walk 1 minute bus JR函館本線「手稲」バス10分前田中央通歩1分 |
Price 価格 | | 18,800,000 yen 1880万円 | Floor plan 間取り | | 5LDK 5LDK | Units sold 販売戸数 | | 1 units 1戸 | Land area 土地面積 | | 229.42 sq m (registration) 229.42m2(登記) | Building area 建物面積 | | 141.75 sq m (registration) 141.75m2(登記) | Driveway burden-road 私道負担・道路 | | Nothing, Northwest 12m width (contact the road width 12.4m), Southwest 20m width 無、北西12m幅(接道幅12.4m)、南西20m幅 | Completion date 完成時期(築年月) | | 11 May 1990 1990年11月 | Address 住所 | | Sapporo, Hokkaido Teine-ku Maedakujo 15 北海道札幌市手稲区前田九条15 | Traffic 交通 | | JR Hakodate Line "Teine" 10 minutes Maeda Chuodori walk 1 minute bus JR函館本線「手稲」バス10分前田中央通歩1分
| Person in charge 担当者より | | Rep Ikegami Masato 担当者池上 雅人 | Contact お問い合せ先 | | Sumitomo Real Estate Sales Co., Ltd. Sapporominami business center TEL: 011-821-4545 Please inquire as "saw SUUMO (Sumo)" 住友不動産販売(株)札幌南営業センターTEL:011-821-4545「SUUMO(スーモ)を見た」と問い合わせください | Building coverage, floor area ratio 建ぺい率・容積率 | | 40% ・ 80% 40%・80% | Time residents 入居時期 | | Consultation 相談 | Land of the right form 土地の権利形態 | | Ownership 所有権 | Structure and method of construction 構造・工法 | | Wooden 2-story 木造2階建 | Use district 用途地域 | | One low-rise 1種低層 | Other limitations その他制限事項 | | / North hatched advanced district detached residential conservation area ・ Maedanishi district district plan ・ Landscape Planning District garage dimension H about 1.7m, W about 2.5m, D about 4.7m mosquitoes /北側斜線高度地区戸建住環境保全地区・前田西地区地区計画・景観計画区車庫寸法 H約1.7m、W約2.5m、D約4.7mカ | Overview and notices その他概要・特記事項 | | Contact: Ikegami Masato, Parking: car space 担当者:池上 雅人、駐車場:カースペース | Company profile 会社概要 | | <Mediation> Minister of Land, Infrastructure and Transport (11) No. 002077 (one company) Property distribution management Association (Corporation) metropolitan area real estate Fair Trade Council member Sumitomo Real Estate Sales Co., Ltd. Sapporominami business center Yubinbango062-0932 Sapporo, Hokkaido Toyohira-ku Hiragishi Article 2 7-4-13 Hiragishi Maeda building the fourth floor <仲介>国土交通大臣(11)第002077号(一社)不動産流通経営協会会員 (公社)首都圏不動産公正取引協議会加盟住友不動産販売(株)札幌南営業センター〒062-0932 北海道札幌市豊平区平岸2条7-4-13平岸前田ビル4階 |
Local appearance photo現地外観写真  Exterior (1)
外観写真(1)
 Floor plan
間取り図
Location
|