|
|
Akashi, Hyogo Prefecture
兵庫県明石市
|
|
JR Sanyo Line "Akashi" bus 8 obscurity these walk 4 minutes
JR山陽本線「明石」バス8分明高下歩4分
|
|
Corner lot, Interior renovation, 2 family house, Parking three or more possible, Land 50 square meters or more, Yang per good, Super close, System kitchen, Siemens south road, A quiet residential areaese-style room, Toilet 2 places, All room 6 tatami
角地、内装リフォーム、2世帯住宅、駐車3台以上可、土地50坪以上、陽当り良好、スーパーが近い、システムキッチン、南側道路面す、閑静な住宅地、和室、トイレ2ヶ所、全居室6畳
|
|
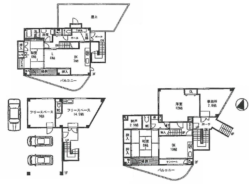
■ Three-way corner lot! ■ Two-family houses of Daiwa House construction of weight steel frame three-story! ■ 1st floor: 2 rooms free space ・ Second floor: 2DK + storeroom + office ・ Third floor: 1LDK floor plan of ■ Car space three Allowed! (High roof car parking available) ■ 2013 August renovated ・ Cross Chokawa ・ CF Chokawa ・ Mini kitchen installation ・ Tatami mat replacement ・ FusumaChokawa ・ System kitchen ・ Toilet replacement ・ Exchange Shoji Zhang ・ rooftop, like water off a duck's back ・ House cleaning
■三方角地!■大和ハウス施工の重量鉄骨3階建ての二世帯住宅!■1階:2室フリースペース・2階:2DK+納戸+事務所・3階:1LDKの間取り■カースペース3台可!(ハイルーフ車駐車可能)■平成25年8月リフォーム済み ・クロス張替・CF張替・ミニキッチン設置・畳表替え・襖張替・システムキッチン・トイレ入替・障子張替・屋上、防水加工・ハウスクリーニング
|
Features pickup 特徴ピックアップ | | Parking three or more possible / Land 50 square meters or more / Super close / Interior renovation / System kitchen / Yang per good / Siemens south road / A quiet residential area / Corner lot / Japanese-style room / Toilet 2 places / All room 6 tatami mats or more / Three-story or more / Storeroom / 2 family house 駐車3台以上可 /土地50坪以上 /スーパーが近い /内装リフォーム /システムキッチン /陽当り良好 /南側道路面す /閑静な住宅地 /角地 /和室 /トイレ2ヶ所 /全居室6畳以上 /3階建以上 /納戸 /2世帯住宅 |
Price 価格 | | 48,800,000 yen 4880万円 |
Floor plan 間取り | | 5LDDKK + S (storeroom) 5LDDKK+S(納戸) |
Units sold 販売戸数 | | 1 units 1戸 |
Land area 土地面積 | | 231.68 sq m (registration) 231.68m2(登記) |
Building area 建物面積 | | 201.71 sq m (registration) 201.71m2(登記) |
Driveway burden-road 私道負担・道路 | | Share equity 90.85 sq m × (3795 / 9085), South 4m width, North 6m width 共有持分90.85m2×(3795/9085)、南4m幅、北6m幅 |
Completion date 完成時期(築年月) | | November 1994 1994年11月 |
Address 住所 | | Akashi, Hyogo Prefecture Niyama-cho 兵庫県明石市荷山町 |
Traffic 交通 | | JR Sanyo Line "Akashi" bus 8 obscurity these walk 4 minutes JR山陽本線「明石」バス8分明高下歩4分
|
Related links 関連リンク | | [Related Sites of this company] 【この会社の関連サイト】 |
Contact お問い合せ先 | | TEL: 0120-581150 [Toll free] Please contact the "saw SUUMO (Sumo)" TEL:0120-581150【通話料無料】「SUUMO(スーモ)を見た」と問い合わせください |
Building coverage, floor area ratio 建ぺい率・容積率 | | Fifty percent ・ Hundred percent 50%・100% |
Time residents 入居時期 | | Consultation 相談 |
Land of the right form 土地の権利形態 | | Ownership 所有権 |
Structure and method of construction 構造・工法 | | Steel frame three-story 鉄骨3階建 |
Renovation リフォーム | | August interior renovation completed (Kitchen 2013 ・ toilet ・ wall ・ floor) 2013年8月内装リフォーム済(キッチン・トイレ・壁・床) |
Use district 用途地域 | | One low-rise 1種低層 |
Overview and notices その他概要・特記事項 | | Facilities: Public Water Supply, This sewage, City gas, Parking: car space 設備:公営水道、本下水、都市ガス、駐車場:カースペース |
Company profile 会社概要 | | <Mediation> Governor of Hyogo Prefecture (1) No. 011574 (Ltd.) Familia Home Yubinbango651-2273 Hyogo prefecture Kobe city west district Kojidai 5-9-4 Seishin Chuo Station Building second floor <仲介>兵庫県知事(1)第011574号(株)ファミリアホーム〒651-2273 兵庫県神戸市西区糀台5-9-4 西神中央駅ビル2階 |