1983August
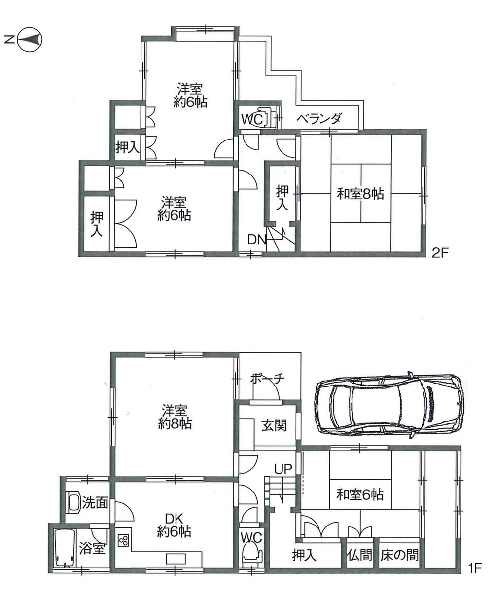
23.8 million yen, 5DK, 98.91 sq m
Used Homes » Kansai » Hyogo Prefecture » Amagasaki
 
| | Amagasaki, Hyogo Prefecture 兵庫県尼崎市 |
| Hankyu Kobe Line "Tsukaguchi" walk 20 minutes 阪急神戸線「塚口」歩20分 |
| Amagasaki Kuriyama-cho Hanshin Tsukaguchi Station Facing south Site area 30 square meters more than Frontage is spacious around traffic less !! 尼崎市 栗山町 阪神 塚口駅 南向き 敷地面積30坪超 間口広々周辺交通量少ないです!! |
Price 価格 | | 23.8 million yen 2380万円 | Floor plan 間取り | | 5DK 5DK | Units sold 販売戸数 | | 1 units 1戸 | Land area 土地面積 | | 100.15 sq m (30.29 tsubo) (Registration) 100.15m2(30.29坪)(登記) | Building area 建物面積 | | 98.91 sq m (29.92 tsubo) (Registration) 98.91m2(29.92坪)(登記) | Driveway burden-road 私道負担・道路 | | Nothing 無 | Completion date 完成時期(築年月) | | August 1983 1983年8月 | Address 住所 | | Amagasaki, Hyogo Prefecture Kuriyama-cho, 2 兵庫県尼崎市栗山町2 | Traffic 交通 | | Hankyu Kobe Line "Tsukaguchi" walk 20 minutes JR Tokaido Line "Tachibana" walk 20 minutes 阪急神戸線「塚口」歩20分 JR東海道本線「立花」歩20分
| Person in charge 担当者より | | [Regarding this property.] Facing south!! Site area 30 square meters super !! Frontage spacious !! Hanshin Kobe Line Tsukaguchi Station Please feel free to contact us. 【この物件について】南向き!! 敷地面積30坪超!! 間口広々!! 阪神神戸線 塚口駅 お気軽にお問い合わせ下さい。 | Contact お問い合せ先 | | TEL: 0800-603-3371 [Toll free] mobile phone ・ Also available from PHS Caller ID is not notified Please contact the "saw SUUMO (Sumo)" If it does not lead, If the real estate company TEL:0800-603-3371【通話料無料】携帯電話・PHSからもご利用いただけます 発信者番号は通知されません 「SUUMO(スーモ)を見た」と問い合わせください つながらない方、不動産会社の方は
| Building coverage, floor area ratio 建ぺい率・容積率 | | 60% ・ 200% 60%・200% | Time residents 入居時期 | | Consultation 相談 | Land of the right form 土地の権利形態 | | Ownership 所有権 | Structure and method of construction 構造・工法 | | Wooden 2-story 木造2階建 | Use district 用途地域 | | One middle and high 1種中高 | Overview and notices その他概要・特記事項 | | Facilities: Public Water Supply, This sewage, City gas, Parking: car space 設備:公営水道、本下水、都市ガス、駐車場:カースペース | Company profile 会社概要 | | <Mediation> Governor of Hyogo Prefecture (2) No. 010851 (Yes) WORLD housing Yubinbango662-0857 Nishinomiya, Hyogo Prefecture Nakamaeda cho 1-25 Kazunari building first floor <仲介>兵庫県知事(2)第010851号(有)WORLDハウジング〒662-0857 兵庫県西宮市中前田町1-25 和成ビル1階 |
Floor plan間取り図  23.8 million yen, 5DK, Land area 100.15 sq m , Building area 98.91 sq m south-facing. 5DK
2380万円、5DK、土地面積100.15m2、建物面積98.91m2 南向き。5DK
Local appearance photo現地外観写真  Local (September 2013) Shooting
現地(2013年9月)撮影
Location
|