|
|
Amagasaki, Hyogo Prefecture
兵庫県尼崎市
|
|
Hankyu Kobe Line "Sonoda" walk 10 minutes
阪急神戸線「園田」歩10分
|
|
It is a building of Sekisui House construction! Home elevator and solar power generation facilities there!
積水ハウス施工の建物です!ホームエレベーターと太陽光発電設備有り!
|
Features pickup 特徴ピックアップ | | Solar power system / System kitchen / Yang per good / A quiet residential area / Japanese-style room / Shaping land / Garden more than 10 square meters / Washbasin with shower / Toilet 2 places / Nantei / Three-story or more / All-electric / Flat terrain 太陽光発電システム /システムキッチン /陽当り良好 /閑静な住宅地 /和室 /整形地 /庭10坪以上 /シャワー付洗面台 /トイレ2ヶ所 /南庭 /3階建以上 /オール電化 /平坦地 |
Price 価格 | | 34,800,000 yen 3480万円 |
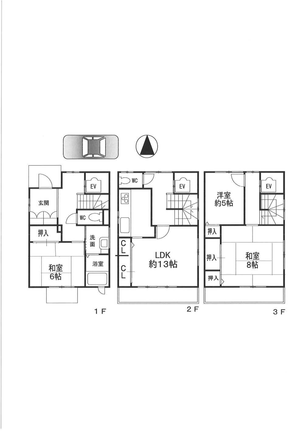
Floor plan 間取り | | 3LDK 3LDK |
Units sold 販売戸数 | | 1 units 1戸 |
Total units 総戸数 | | 1 units 1戸 |
Land area 土地面積 | | 140.39 sq m (registration) 140.39m2(登記) |
Building area 建物面積 | | 106.63 sq m (registration) 106.63m2(登記) |
Driveway burden-road 私道負担・道路 | | Nothing, North 4.5m width 無、北4.5m幅 |
Completion date 完成時期(築年月) | | November 1999 1999年11月 |
Address 住所 | | Amagasaki, Hyogo Prefecture Kawaranomiya 2 兵庫県尼崎市瓦宮2 |
Traffic 交通 | | Hankyu Kobe Line "Sonoda" walk 10 minutes 阪急神戸線「園田」歩10分
|
Related links 関連リンク | | [Related Sites of this company] 【この会社の関連サイト】 |
Person in charge 担当者より | | Person in charge of real-estate and building FP mountains Jun Age: 20 Daigyokai Experience: 6 years Amagasaki, Please leave if things Itami of buying and selling. I will do my best hard to working with you. Please feel free to contact us. 担当者宅建FP山中 純年齢:20代業界経験:6年尼崎市、伊丹の売買のことならお任せください。お客様のお役に立てるように一生懸命頑張ります。お気軽にご相談ください。 |
Contact お問い合せ先 | | TEL: 0800-603-0894 [Toll free] mobile phone ・ Also available from PHS Caller ID is not notified Please contact the "saw SUUMO (Sumo)" If it does not lead, If the real estate company TEL:0800-603-0894【通話料無料】携帯電話・PHSからもご利用いただけます 発信者番号は通知されません 「SUUMO(スーモ)を見た」と問い合わせください つながらない方、不動産会社の方は
|
Building coverage, floor area ratio 建ぺい率・容積率 | | 60% ・ 200% 60%・200% |
Time residents 入居時期 | | March 2014 schedule 2014年3月予定 |
Land of the right form 土地の権利形態 | | Ownership 所有権 |
Structure and method of construction 構造・工法 | | Steel frame three-story 鉄骨3階建 |
Construction 施工 | | Co., Ltd. Sekisui House (株)積水ハウス |
Use district 用途地域 | | One middle and high 1種中高 |
Other limitations その他制限事項 | | Regulations have by the Landscape Act, Regulations have by the Aviation Law, Quasi-fire zones 景観法による規制有、航空法による規制有、準防火地域 |
Overview and notices その他概要・特記事項 | | Contact: Yamanaka Jun, Facilities: Public Water Supply, This sewage, All-electric, Parking: Garage 担当者:山中 純、設備:公営水道、本下水、オール電化、駐車場:車庫 |
Company profile 会社概要 | | <Mediation> Minister of Land, Infrastructure and Transport (7). No. 003,529, Mizuho Trust Realty Sales Co., Ltd. Tsukaguchi center Yubinbango661-0012 Amagasaki, Hyogo Prefecture Minamitsukaguchi cho 2-16-11 <仲介>国土交通大臣(7)第003529号みずほ信不動産販売(株)塚口センター〒661-0012 兵庫県尼崎市南塚口町2-16-11 |