|
|
Amagasaki, Hyogo Prefecture
兵庫県尼崎市
|
|
JR Tokaido Line "Tachibana" walk 15 minutes
JR東海道本線「立花」歩15分
|
Features pickup 特徴ピックアップ | | Parking two Allowed / 2 along the line more accessible / Flat to the station / Shaping land / South balcony / Three-story or more 駐車2台可 /2沿線以上利用可 /駅まで平坦 /整形地 /南面バルコニー /3階建以上 |
Price 価格 | | 27.5 million yen 2750万円 |
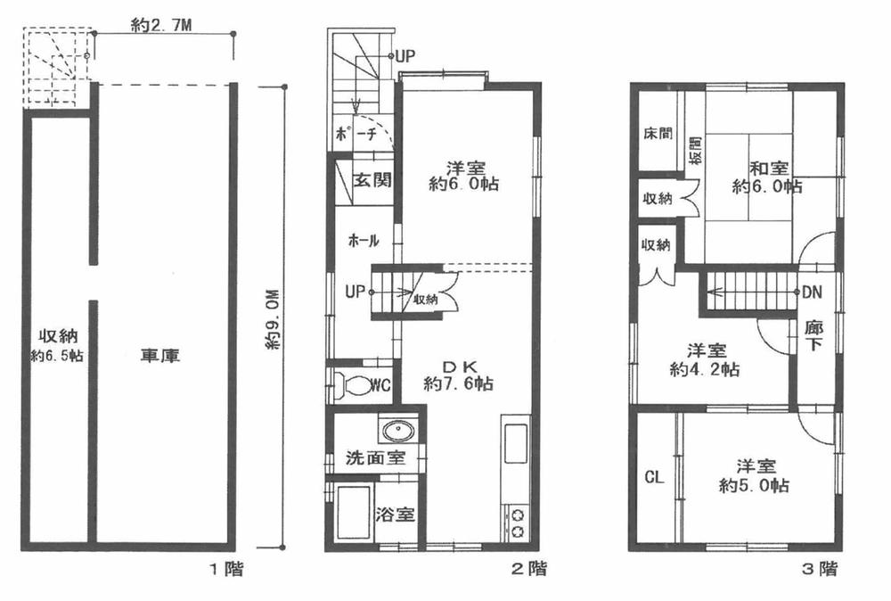
Floor plan 間取り | | 4LDK 4LDK |
Units sold 販売戸数 | | 1 units 1戸 |
Land area 土地面積 | | 68.05 sq m 68.05m2 |
Building area 建物面積 | | 122.43 sq m 122.43m2 |
Driveway burden-road 私道負担・道路 | | Nothing, Southwest 5.5m width (contact the road width 5.8m) 無、南西5.5m幅(接道幅5.8m) |
Completion date 完成時期(築年月) | | September 1997 1997年9月 |
Address 住所 | | Amagasaki, Hyogo Prefecture Minaminanamatsu cho 2 兵庫県尼崎市南七松町2 |
Traffic 交通 | | JR Tokaido Line "Tachibana" walk 15 minutes Hanshin "Deyashiki" walk 18 minutes Hankyu Kobe Line "Tsukaguchi" 20 minutes Hamada elementary school walk 6 minutes by bus JR東海道本線「立花」歩15分 阪神本線「出屋敷」歩18分 阪急神戸線「塚口」バス20分浜田小学校歩6分
|
Person in charge 担当者より | | Person in charge of real-estate and building Kanematsu Yukariya Age: 20 Daigyokai experience: Hello 3 years. My name is Kanematsu of Japan Living Service Co., Ltd.. We will carry out support of looking for you live in the knowledge and experience by taking advantage of land intuition of local grow. 担当者宅建兼松 由矢年齢:20代業界経験:3年こんにちは。日住サービスの兼松と申します。地元育ちの土地勘を生かした知識と経験でお客様のお住まい探しのサポートをさせて頂きます。 |
Contact お問い合せ先 | | TEL: 0800-603-1244 [Toll free] mobile phone ・ Also available from PHS Caller ID is not notified Please contact the "saw SUUMO (Sumo)" If it does not lead, If the real estate company TEL:0800-603-1244【通話料無料】携帯電話・PHSからもご利用いただけます 発信者番号は通知されません 「SUUMO(スーモ)を見た」と問い合わせください つながらない方、不動産会社の方は
|
Building coverage, floor area ratio 建ぺい率・容積率 | | 60% ・ 200% 60%・200% |
Time residents 入居時期 | | Consultation 相談 |
Land of the right form 土地の権利形態 | | Ownership 所有権 |
Structure and method of construction 構造・工法 | | Wooden three-story part RC 木造3階建一部RC |
Use district 用途地域 | | One dwelling 1種住居 |
Overview and notices その他概要・特記事項 | | Contact: Kanematsu Yukariya, Facilities: Public Water Supply, This sewage, City gas, Parking: Garage 担当者:兼松 由矢、設備:公営水道、本下水、都市ガス、駐車場:車庫 |
Company profile 会社概要 | | <Mediation> Minister of Land, Infrastructure and Transport (11) No. 002287 (Corporation) Japan Living Service Co., Ltd. Mukonoso office Yubinbango661-0035 Amagasaki, Hyogo Prefecture Mukonoso 1-5-5 <仲介>国土交通大臣(11)第002287号(株)日住サービス武庫之荘営業所〒661-0035 兵庫県尼崎市武庫之荘1-5-5 |