1990June
16.8 million yen, 5LDK, 115.22 sq m
Used Homes » Kansai » Hyogo Prefecture » Amagasaki
 
| | Amagasaki, Hyogo Prefecture 兵庫県尼崎市 |
| Hanshin "Kuise" walk 9 minutes 阪神本線「杭瀬」歩9分 |
Features pickup 特徴ピックアップ | | Interior renovation / System kitchen / Yang per good / All room storage / A quiet residential area / Washbasin with shower / Toilet 2 places / Warm water washing toilet seat / Three-story or more 内装リフォーム /システムキッチン /陽当り良好 /全居室収納 /閑静な住宅地 /シャワー付洗面台 /トイレ2ヶ所 /温水洗浄便座 /3階建以上 | Price 価格 | | 16.8 million yen 1680万円 | Floor plan 間取り | | 5LDK 5LDK | Units sold 販売戸数 | | 1 units 1戸 | Land area 土地面積 | | 86.22 sq m (registration) 86.22m2(登記) | Building area 建物面積 | | 115.22 sq m (registration) 115.22m2(登記) | Driveway burden-road 私道負担・道路 | | Nothing, East 3m width (contact the road width 8m) 無、東3m幅(接道幅8m) | Completion date 完成時期(築年月) | | June 1990 1990年6月 | Address 住所 | | Amagasaki, Hyogo Prefecture Imafuku 2 兵庫県尼崎市今福2 | Traffic 交通 | | Hanshin "Kuise" walk 9 minutes Hanshin "Chibune" walk 19 minutes JR Tozai Line "Kashima" walk 34 minutes 阪神本線「杭瀬」歩9分 阪神本線「千船」歩19分 JR東西線「加島」歩34分
| Person in charge 担当者より | | Rep Yamamoto 担当者山本 | Contact お問い合せ先 | | (Yes) Efuto TEL: 06-6226-0807 "saw SUUMO (Sumo)" and please contact (有)エフトTEL:06-6226-0807「SUUMO(スーモ)を見た」と問い合わせください | Building coverage, floor area ratio 建ぺい率・容積率 | | 60% ・ 200% 60%・200% | Time residents 入居時期 | | Immediate available 即入居可 | Land of the right form 土地の権利形態 | | Ownership 所有権 | Structure and method of construction 構造・工法 | | Wooden three-story 木造3階建 | Renovation リフォーム | | January 2014 interior renovation will be completed (kitchen ・ wall ・ all rooms) 2014年1月内装リフォーム完了予定(キッチン・壁・全室) | Use district 用途地域 | | One dwelling 1種住居 | Overview and notices その他概要・特記事項 | | Contact: Yamamoto, Facilities: Public Water Supply, This sewage, City gas, Parking: car space 担当者:山本、設備:公営水道、本下水、都市ガス、駐車場:カースペース | Company profile 会社概要 | | <Seller> governor of Osaka (2) No. 051748 (with) Efuto Yubinbango541-0051 Chuo-ku, Osaka-shi, Bingo-cho 3-1-2 Osakaya Atlas Bill 301 <売主>大阪府知事(2)第051748号(有)エフト〒541-0051 大阪府大阪市中央区備後町3-1-2 大阪屋アトラスビル301 |
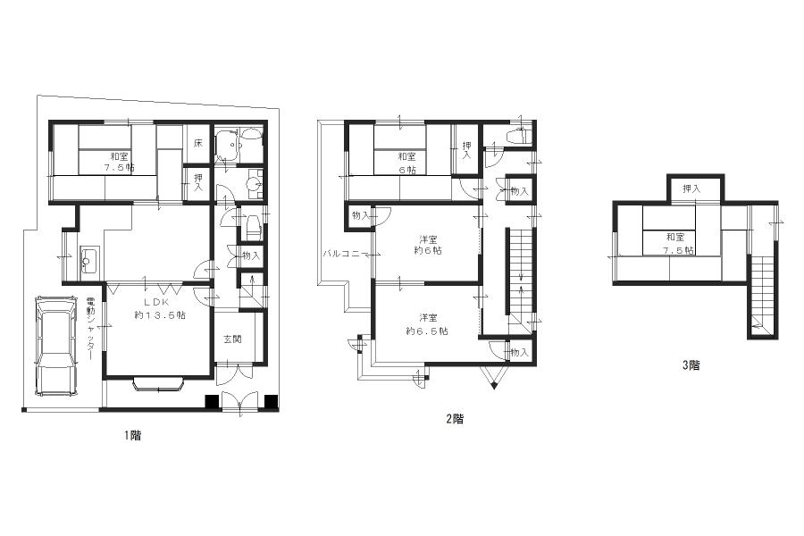
Floor plan間取り図  16.8 million yen, 5LDK, Land area 86.22 sq m , Building area 115.22 sq m
1680万円、5LDK、土地面積86.22m2、建物面積115.22m2
Local appearance photo現地外観写真  Local (12 May 2013) Shooting
現地(2013年12月)撮影
Kitchenキッチン  Indoor (12 May 2013) Shooting
室内(2013年12月)撮影
Bathroom浴室  Indoor (12 May 2013) Shooting
室内(2013年12月)撮影
Non-living roomリビング以外の居室  Indoor (12 May 2013) Shooting
室内(2013年12月)撮影
Toiletトイレ  Indoor (12 May 2013) Shooting
室内(2013年12月)撮影
Livingリビング  Indoor (12 May 2013) Shooting
室内(2013年12月)撮影
Non-living roomリビング以外の居室  Indoor (12 May 2013) Shooting
室内(2013年12月)撮影
Location
|