2005September
46,900,000 yen, 4LDK, 111.58 sq m
Used Homes » Kansai » Hyogo Prefecture » Ashiya
 
| | Hyogo Prefecture Ashiya 兵庫県芦屋市 |
| Hanshin "Ashiya" bus 7 minutes Minamihama cho, walk 3 minutes 阪神本線「芦屋」バス7分南浜町歩3分 |
Price 価格 | | 46,900,000 yen 4690万円 | Floor plan 間取り | | 4LDK 4LDK | Units sold 販売戸数 | | 1 units 1戸 | Land area 土地面積 | | 205.48 sq m (registration) 205.48m2(登記) | Building area 建物面積 | | 111.58 sq m (registration) 111.58m2(登記) | Driveway burden-road 私道負担・道路 | | Nothing, Northwest 6.3m width (contact the road width 11.4m) 無、北西6.3m幅(接道幅11.4m) | Completion date 完成時期(築年月) | | September 2005 2005年9月 | Address 住所 | | Hyogo Prefecture Ashiya Minamihama cho 兵庫県芦屋市南浜町 | Traffic 交通 | | Hanshin "Ashiya" bus 7 minutes Minamihama cho, walk 3 minutes 阪神本線「芦屋」バス7分南浜町歩3分
| Person in charge 担当者より | | Personnel Nakamura Akiyuki 担当者中村 昭之 | Contact お問い合せ先 | | Sumitomo Real Estate Sales Co., Ltd. Ashiya business center TEL: 0120-527002 [Toll free] Please contact the "saw SUUMO (Sumo)" 住友不動産販売(株)芦屋営業センターTEL:0120-527002【通話料無料】「SUUMO(スーモ)を見た」と問い合わせください | Building coverage, floor area ratio 建ぺい率・容積率 | | 40% ・ 80% 40%・80% | Time residents 入居時期 | | Consultation 相談 | Land of the right form 土地の権利形態 | | Ownership 所有権 | Structure and method of construction 構造・工法 | | Wooden 2-story 木造2階建 | Use district 用途地域 | | One low-rise 1種低層 | Other limitations その他制限事項 | | / September 2005 Built. Car space 2 cars (about 5.5m × about 5.2m) southeast of the garden is about 65 sq m . Good per yang. Care is also good /平成17年9月築。カースペース2台分(約5.5m×約5.2m)南東向きのお庭は約65m2。陽あたり良好です。お手入れも良 | Overview and notices その他概要・特記事項 | | Contact: Nakamura Akiyuki, Parking: car space 担当者:中村 昭之、駐車場:カースペース | Company profile 会社概要 | | <Mediation> Minister of Land, Infrastructure and Transport (11) No. 002077 (one company) Property distribution management Association (Corporation) metropolitan area real estate Fair Trade Council member Sumitomo Real Estate Sales Co., Ltd. Ashiya business center Yubinbango659-0093 Hyogo Prefecture Ashiya Funato cho 1-29 first floor <仲介>国土交通大臣(11)第002077号(一社)不動産流通経営協会会員 (公社)首都圏不動産公正取引協議会加盟住友不動産販売(株)芦屋営業センター〒659-0093 兵庫県芦屋市船戸町1-29 1階 |
Local appearance photo現地外観写真  Ashiya Minamihama cho Detached This appearance.
芦屋市南浜町戸建 外観です。
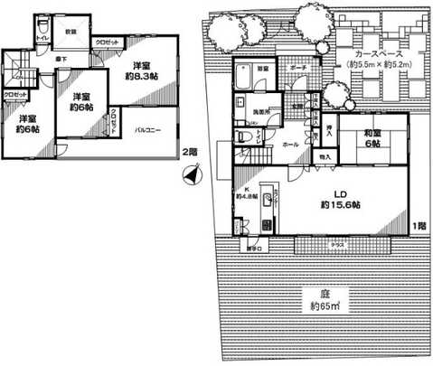
 Floor plan
間取り図
Location
|