|
|
Hyogo Prefecture Ashiya
兵庫県芦屋市
|
|
Hankyu Kobe Line "Ashiyagawa" walk 8 minutes
阪急神戸線「芦屋川」歩8分
|
|
Appeared mansion with a rooftop observation deck! Parking space There is also a 4 cars! View is attractive of views between Hanshin
屋上展望デッキ付の邸宅が登場!駐車スペースも4台分あり!阪神間一望の眺望が魅力的です
|
|
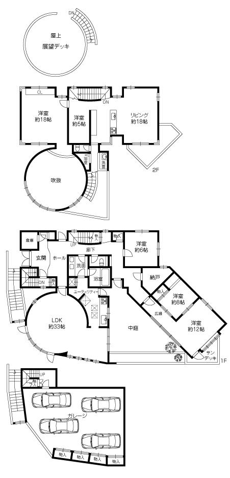
■ There is parking space 4 cars ■ Land area About 108.60 square meters ■ Building area About 106.60 square meters ■ 2WAY accessible and convenient ■ Rooftop observation deck Yes
■駐車スペース4台分あり■土地面積 約108.60坪■建物面積 約106.60坪■2WAYアクセス可能で便利■屋上展望デッキ有
|
Features pickup 特徴ピックアップ | | Parking three or more possible / 2 along the line more accessible / LDK20 tatami mats or more / Land more than 100 square meters / Ocean View / See the mountain / It is close to the city / System kitchen / Bathroom Dryer / A quiet residential area / Japanese-style room / garden / Face-to-face kitchen / Shutter - garage / 3 face lighting / 2-story / Warm water washing toilet seat / The window in the bathroom / Atrium / Leafy residential area / Good view / Built garage / Dish washing dryer / City gas / Storeroom / Located on a hill / Maintained sidewalk / 2 family house 駐車3台以上可 /2沿線以上利用可 /LDK20畳以上 /土地100坪以上 /オーシャンビュー /山が見える /市街地が近い /システムキッチン /浴室乾燥機 /閑静な住宅地 /和室 /庭 /対面式キッチン /シャッタ-車庫 /3面採光 /2階建 /温水洗浄便座 /浴室に窓 /吹抜け /緑豊かな住宅地 /眺望良好 /ビルトガレージ /食器洗乾燥機 /都市ガス /納戸 /高台に立地 /整備された歩道 /2世帯住宅 |
Price 価格 | | 129 million yen 1億2900万円 |
Floor plan 間取り | | 5LDK + S (storeroom) 5LDK+S(納戸) |
Units sold 販売戸数 | | 1 units 1戸 |
Land area 土地面積 | | 357.88 sq m (108.25 tsubo) (Registration) 357.88m2(108.25坪)(登記) |
Building area 建物面積 | | 352.41 sq m (106.60 tsubo) (Registration), Of underground garage 105.7 sq m 352.41m2(106.60坪)(登記)、うち地下車庫105.7m2 |
Driveway burden-road 私道負担・道路 | | Nothing, West 4m width 無、西4m幅 |
Completion date 完成時期(築年月) | | April 1993 1993年4月 |
Address 住所 | | Hyogo Prefecture Ashiya Higashiashiya cho 兵庫県芦屋市東芦屋町 |
Traffic 交通 | | Hankyu Kobe Line "Ashiyagawa" walk 8 minutes JR Tokaido Line "Ashiya" walk 11 minutes 阪急神戸線「芦屋川」歩8分 JR東海道本線「芦屋」歩11分
|
Person in charge 担当者より | | Rep Matsumi 担当者松見 |
Contact お問い合せ先 | | Kansai net real estate (Ltd.) TEL: 0800-603-3809 [Toll free] mobile phone ・ Also available from PHS Caller ID is not notified Please contact the "saw SUUMO (Sumo)" If it does not lead, If the real estate company 関西ネット不動産(株)TEL:0800-603-3809【通話料無料】携帯電話・PHSからもご利用いただけます 発信者番号は通知されません 「SUUMO(スーモ)を見た」と問い合わせください つながらない方、不動産会社の方は
|
Building coverage, floor area ratio 建ぺい率・容積率 | | 40% ・ 80% 40%・80% |
Time residents 入居時期 | | Consultation 相談 |
Land of the right form 土地の権利形態 | | Ownership 所有権 |
Structure and method of construction 構造・工法 | | RC2 floors 1 underground story RC2階地下1階建 |
Use district 用途地域 | | One low-rise 1種低層 |
Overview and notices その他概要・特記事項 | | Contact: Matsumi, Facilities: Public Water Supply, This sewage, City gas, Parking: underground garage 担当者:松見、設備:公営水道、本下水、都市ガス、駐車場:地下車庫 |
Company profile 会社概要 | | <Mediation> Governor of Hyogo Prefecture (2) No. 203747 Kansai net Real Estate Co., Ltd. Yubinbango663-8104 Nishinomiya, Hyogo Prefecture sun-cho 25-7 <仲介>兵庫県知事(2)第203747号関西ネット不動産(株)〒663-8104 兵庫県西宮市天道町25-7 |