2003January
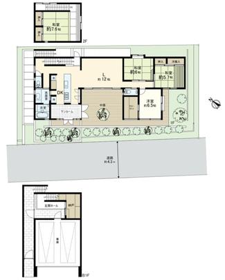
108 million yen, 4LDK + S (storeroom), 184.41 sq m
Used Homes » Kansai » Hyogo Prefecture » Ashiya
 
| | Hyogo Prefecture Ashiya 兵庫県芦屋市 |
| JR Tokaido Line "Ashiya" bus 7 minutes Iwazono kindergarten before Tomafu 3 minutes JR東海道本線「芦屋」バス7分岩園幼稚園前停歩3分 |
Price 価格 | | 108 million yen 1億800万円 | Floor plan 間取り | | 4LDK + S (storeroom) 4LDK+S(納戸) | Units sold 販売戸数 | | 1 units 1戸 | Land area 土地面積 | | 267.72 sq m (registration) 267.72m2(登記) | Building area 建物面積 | | 184.41 sq m (registration) 184.41m2(登記) | Driveway burden-road 私道負担・道路 | | Nothing, Southwest 4.3m width (contact the road width 22m) 無、南西4.3m幅(接道幅22m) | Completion date 完成時期(築年月) | | January 2003 2003年1月 | Address 住所 | | Hyogo Prefecture Ashiya Asahigaoka cho 兵庫県芦屋市朝日ケ丘町 | Traffic 交通 | | JR Tokaido Line "Ashiya" bus 7 minutes Iwazono kindergarten before Tomafu 3 minutes JR東海道本線「芦屋」バス7分岩園幼稚園前停歩3分
| Person in charge 担当者より | | Rep Shogo Yamashita 担当者山下章吾 | Contact お問い合せ先 | | Mitsui Rehouse Ashiya shop Mitsui Fudosan Realty (Ltd.) TEL: 0120-843212 [Toll free] Please contact the "saw SUUMO (Sumo)" 三井のリハウス芦屋店三井不動産リアルティ(株)TEL:0120-843212【通話料無料】「SUUMO(スーモ)を見た」と問い合わせください | Building coverage, floor area ratio 建ぺい率・容積率 | | 40% ・ 80% 40%・80% | Time residents 入居時期 | | Consultation 相談 | Land of the right form 土地の権利形態 | | Ownership 所有権 | Structure and method of construction 構造・工法 | | Wooden second floor underground 1 story 木造2階地下1階建 | Use district 用途地域 | | One low-rise 1種低層 | Overview and notices その他概要・特記事項 | | Rep: Shogo Yamashita, Parking: car space 担当者:山下章吾、駐車場:カースペース | Company profile 会社概要 | | <Mediation> Minister of Land, Infrastructure and Transport (13) No. 000777 (one company) Property distribution management Association (Corporation) metropolitan area real estate Fair Trade Council member Mitsui Rehouse Ashiya shop Mitsui Fudosan Realty Co. Yubinbango659-0093 Hyogo Prefecture Ashiya Funato cho, 4-1-118 Laporte main building first floor <仲介>国土交通大臣(13)第000777号(一社)不動産流通経営協会会員 (公社)首都圏不動産公正取引協議会加盟三井のリハウス芦屋店三井不動産リアルティ(株)〒659-0093 兵庫県芦屋市船戸町4-1-118 ラポルテ本館1階 |
 Local appearance photo
現地外観写真
 Floor plan
間取り図
Location
|