2009July
29,900,000 yen, 4LDK, 104.33 sq m
Used Homes » Kansai » Hyogo Prefecture » Itami
 
| | Hyogo Prefecture Itami 兵庫県伊丹市 |
| Hankyū Itami Line "Itami" 20 minutes Ayumi Konoike 3 minutes by bus 阪急伊丹線「伊丹」バス20分鴻池歩3分 |
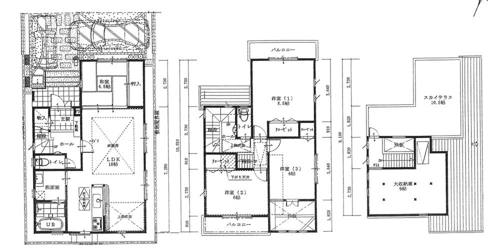
Features pickup 特徴ピックアップ | | LDK18 tatami mats or more / lake ・ See the pond / See the mountain / Super close / System kitchen / Bathroom Dryer / A quiet residential area / Around traffic fewer / Or more before road 6m / Japanese-style room / Washbasin with shower / Face-to-face kitchen / Toilet 2 places / Bathroom 1 tsubo or more / 2-story / Double-glazing / Warm water washing toilet seat / Underfloor Storage / The window in the bathroom / Atrium / TV monitor interphone / Leafy residential area / Good view / Dish washing dryer / Water filter / roof balcony / Flat terrain / Attic storage / Floor heating / Readjustment land within LDK18畳以上 /湖・池が見える /山が見える /スーパーが近い /システムキッチン /浴室乾燥機 /閑静な住宅地 /周辺交通量少なめ /前道6m以上 /和室 /シャワー付洗面台 /対面式キッチン /トイレ2ヶ所 /浴室1坪以上 /2階建 /複層ガラス /温水洗浄便座 /床下収納 /浴室に窓 /吹抜け /TVモニタ付インターホン /緑豊かな住宅地 /眺望良好 /食器洗乾燥機 /浄水器 /ルーフバルコニー /平坦地 /屋根裏収納 /床暖房 /区画整理地内 | Price 価格 | | 29,900,000 yen 2990万円 | Floor plan 間取り | | 4LDK 4LDK | Units sold 販売戸数 | | 1 units 1戸 | Total units 総戸数 | | 1 units 1戸 | Land area 土地面積 | | 100.52 sq m (registration) 100.52m2(登記) | Building area 建物面積 | | 104.33 sq m (registration) 104.33m2(登記) | Driveway burden-road 私道負担・道路 | | Nothing, North 6m width 無、北6m幅 | Completion date 完成時期(築年月) | | July 2009 2009年7月 | Address 住所 | | Hyogo Prefecture Itami Konoike 6 兵庫県伊丹市鴻池6 | Traffic 交通 | | Hankyū Itami Line "Itami" 20 minutes Ayumi Konoike 3 minutes by bus 阪急伊丹線「伊丹」バス20分鴻池歩3分
| Person in charge 担当者より | | [Regarding this property.] View is good from the Sky Terrace! 【この物件について】スカイテラスからの眺望良好です! | Contact お問い合せ先 | | (Ltd.) Seno Shokai TEL: 0800-603-1472 [Toll free] mobile phone ・ Also available from PHS Caller ID is not notified Please contact the "saw SUUMO (Sumo)" If it does not lead, If the real estate company (株)セノオ商会TEL:0800-603-1472【通話料無料】携帯電話・PHSからもご利用いただけます 発信者番号は通知されません 「SUUMO(スーモ)を見た」と問い合わせください つながらない方、不動産会社の方は
| Building coverage, floor area ratio 建ぺい率・容積率 | | 60% ・ 200% 60%・200% | Time residents 入居時期 | | Consultation 相談 | Land of the right form 土地の権利形態 | | Ownership 所有権 | Structure and method of construction 構造・工法 | | Wooden 2-story 木造2階建 | Use district 用途地域 | | Two mid-high 2種中高 | Other limitations その他制限事項 | | Regulations have by the Aviation Law, Height district, Site area minimum Yes, Shade limit Yes 航空法による規制有、高度地区、敷地面積最低限度有、日影制限有 | Overview and notices その他概要・特記事項 | | Facilities: Public Water Supply, This sewage, City gas, Parking: car space 設備:公営水道、本下水、都市ガス、駐車場:カースペース | Company profile 会社概要 | | <Mediation> Governor of Hyogo Prefecture (12) No. 006193 (Ltd.) Seno Shokai Yubinbango661-0012 Amagasaki, Hyogo Prefecture Minamitsukaguchi cho 2-1-1-102 Tsukaguchi's Mr. Town 1 Ichibankan <仲介>兵庫県知事(12)第006193号(株)セノオ商会〒661-0012 兵庫県尼崎市南塚口町2-1-1-102 塚口さんさんタウン1番館 |
Floor plan間取り図  29,900,000 yen, 4LDK, Land area 100.52 sq m , Building area 104.33 sq m
2990万円、4LDK、土地面積100.52m2、建物面積104.33m2
Local appearance photo現地外観写真  Local (12 May 2013) Shooting
現地(2013年12月)撮影
 Local (12 May 2013) Shooting
現地(2013年12月)撮影
Other localその他現地  Local (12 May 2013) Shooting
現地(2013年12月)撮影
 Local (12 May 2013) Shooting
現地(2013年12月)撮影
Location
|