Used Homes » Kansai » Hyogo Prefecture » Kakogawa
 
| | Hyogo Prefecture Kakogawa 兵庫県加古川市 |
| JR Sanyo Line "Higashikakogawa" walk 10 minutes JR山陽本線「東加古川」歩10分 |
| Panoramic views from the rooftop roof balcony 屋上ルーフバルコニーからのパノラマビュー |
| Build a site 80 square meters of each room room The building is 48 square meters leading house builders and construction 各部屋ゆとりの造りです敷地80坪 建物48坪大手ハウスメーカー施工です |
Features pickup 特徴ピックアップ | | Pre-ground survey / Parking two Allowed / Immediate Available / 2 along the line more accessible / LDK20 tatami mats or more / Land 50 square meters or more / System kitchen / Yang per good / All room storage / Flat to the station / A quiet residential area / Around traffic fewer / Or more before road 6m / Japanese-style room / Garden more than 10 square meters / garden / Face-to-face kitchen / Bathroom 1 tsubo or more / 2-story / 2 or more sides balcony / Southeast direction / South balcony / Nantei / Underfloor Storage / The window in the bathroom / Ventilation good / Walk-in closet / All room 6 tatami mats or more / City gas / Storeroom / Flat terrain / rooftop 地盤調査済 /駐車2台可 /即入居可 /2沿線以上利用可 /LDK20畳以上 /土地50坪以上 /システムキッチン /陽当り良好 /全居室収納 /駅まで平坦 /閑静な住宅地 /周辺交通量少なめ /前道6m以上 /和室 /庭10坪以上 /庭 /対面式キッチン /浴室1坪以上 /2階建 /2面以上バルコニー /東南向き /南面バルコニー /南庭 /床下収納 /浴室に窓 /通風良好 /ウォークインクロゼット /全居室6畳以上 /都市ガス /納戸 /平坦地 /屋上 | Price 価格 | | 40,800,000 yen 4080万円 | Floor plan 間取り | | 4LDK 4LDK | Units sold 販売戸数 | | 1 units 1戸 | Land area 土地面積 | | 265.47 sq m (80.30 tsubo) (Registration) 265.47m2(80.30坪)(登記) | Building area 建物面積 | | 161.49 sq m (48.85 tsubo) (Registration) 161.49m2(48.85坪)(登記) | Driveway burden-road 私道負担・道路 | | Nothing, Southeast 6m width 無、南東6m幅 | Completion date 完成時期(築年月) | | March 1989 1989年3月 | Address 住所 | | Hyogo Prefecture Kakogawa Hiraokachoshinzaike 兵庫県加古川市平岡町新在家 | Traffic 交通 | | JR Sanyo Line "Higashikakogawa" walk 10 minutes Sanyo Electric Railway Main Line "Beppu" walk 27 minutes JR山陽本線「東加古川」歩10分 山陽電鉄本線「別府」歩27分
| Person in charge 担当者より | | [Regarding this property.] Rather than the terminology so that you are able to find the fun you live to the customer if the same search, We will work carefully clarity. Ten years after, As we think that it was good that there was your edge after 20 years "steadily, Politely, "I will do my best. 【この物件について】同じ探すならお客様に楽しくお住まい探しをしていただけるよう専門用語ではなく、分かりやすく丁寧に努めます。10年後、20年後にご縁があった事を良かったと思っていただけるよう『着実に、丁寧に』頑張ります。 | Contact お問い合せ先 | | TEL: 0800-603-3380 [Toll free] mobile phone ・ Also available from PHS Caller ID is not notified Please contact the "saw SUUMO (Sumo)" If it does not lead, If the real estate company TEL:0800-603-3380【通話料無料】携帯電話・PHSからもご利用いただけます 発信者番号は通知されません 「SUUMO(スーモ)を見た」と問い合わせください つながらない方、不動産会社の方は
| Building coverage, floor area ratio 建ぺい率・容積率 | | 60% ・ 200% 60%・200% | Time residents 入居時期 | | Consultation 相談 | Land of the right form 土地の権利形態 | | Ownership 所有権 | Structure and method of construction 構造・工法 | | Light-gauge steel 2-story 軽量鉄骨2階建 | Use district 用途地域 | | One middle and high 1種中高 | Overview and notices その他概要・特記事項 | | Facilities: Public Water Supply, This sewage, City gas 設備:公営水道、本下水、都市ガス | Company profile 会社概要 | | <Mediation> Governor of Hyogo Prefecture (3) The 401,102 No. Pitattohausu Higashikakogawa shop Co., Ltd. Life Create Yubinbango675-0101 Hyogo Prefecture Kakogawa Hiraokachoshinzaike 2-280-7 Akamatsu building No. 5 <仲介>兵庫県知事(3)第401102号ピタットハウス東加古川店(株)ライフクリエイト〒675-0101 兵庫県加古川市平岡町新在家2-280-7 赤松ビル5号 |
 Local appearance photo
現地外観写真
 Kitchen
キッチン
 Wash basin, toilet
洗面台・洗面所
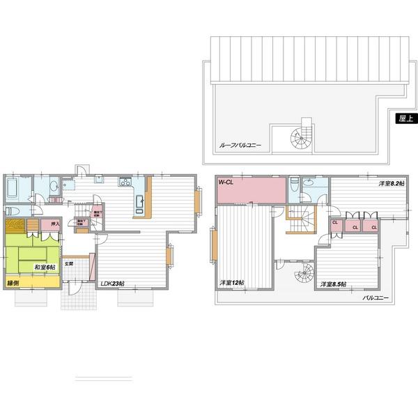
Floor plan間取り図  40,800,000 yen, 4LDK, Land area 265.47 sq m , Building area 161.49 sq m
4080万円、4LDK、土地面積265.47m2、建物面積161.49m2
 Local appearance photo
現地外観写真
 Living
リビング
 Bathroom
浴室
 Non-living room
リビング以外の居室
 Entrance
玄関
 Wash basin, toilet
洗面台・洗面所
 Receipt
収納
Toiletトイレ  2F toilet
2Fトイレ
 Balcony
バルコニー
Primary school小学校  Kakogawa City Hiraoka up to elementary school 580m
加古川市立平岡小学校まで580m
 View photos from the dwelling unit
住戸からの眺望写真
Toiletトイレ  1F toilet
1Fトイレ
 Balcony
バルコニー
Drug storeドラッグストア  340m until Arca drag Higashikakogawa shop
アルカドラッグ東加古川店まで340m
 View photos from the dwelling unit
住戸からの眺望写真
Post office郵便局  Kakogawa Futamata 360m to the post office
加古川二俣郵便局まで360m
Shopping centreショッピングセンター  1380m until the ion Higashikakogawa shop
イオン東加古川店まで1380m
Location
|