|
|
Hyogo Prefecture Kako-gun Harima-cho
兵庫県加古郡播磨町
|
|
Sanyo Electric Railway main line "Harima-cho" walk 20 minutes
山陽電鉄本線「播磨町」歩20分
|
|
All-electric housing. Atrium large space.
オール電化住宅。吹抜け大空間。
|
|
All-electric housing. Atrium large space.
オール電化住宅。吹抜け大空間。
|
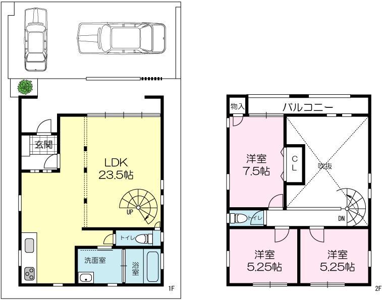
Features pickup 特徴ピックアップ | | Parking two Allowed / Immediate Available / System kitchen / Flat to the station / Toilet 2 places / 2-story / The window in the bathroom / Atrium / IH cooking heater / Dish washing dryer / Flat terrain 駐車2台可 /即入居可 /システムキッチン /駅まで平坦 /トイレ2ヶ所 /2階建 /浴室に窓 /吹抜け /IHクッキングヒーター /食器洗乾燥機 /平坦地 |
Price 価格 | | 16.8 million yen 1680万円 |
Floor plan 間取り | | 3LDK 3LDK |
Units sold 販売戸数 | | 1 units 1戸 |
Total units 総戸数 | | 1 units 1戸 |
Land area 土地面積 | | 98.41 sq m (registration) 98.41m2(登記) |
Building area 建物面積 | | 83.88 sq m (registration) 83.88m2(登記) |
Driveway burden-road 私道負担・道路 | | Nothing, North 5.1m width 無、北5.1m幅 |
Completion date 完成時期(築年月) | | November 2005 2005年11月 |
Address 住所 | | Hyogo Prefecture Kako-gun Harima-cho Miyanishi 1 兵庫県加古郡播磨町宮西1 |
Traffic 交通 | | Sanyo Electric Railway main line "Harima-cho" walk 20 minutes 山陽電鉄本線「播磨町」歩20分
|
Related links 関連リンク | | [Related Sites of this company] 【この会社の関連サイト】 |
Person in charge 担当者より | | Person in charge of Zhongshan 担当者中山 |
Contact お問い合せ先 | | Takase Real Estate Co., Ltd. Kakogawa Station shop TEL: 0800-603-1365 [Toll free] mobile phone ・ Also available from PHS Caller ID is not notified Please contact the "saw SUUMO (Sumo)" If it does not lead, If the real estate company タカセ不動産(株)加古川駅前店TEL:0800-603-1365【通話料無料】携帯電話・PHSからもご利用いただけます 発信者番号は通知されません 「SUUMO(スーモ)を見た」と問い合わせください つながらない方、不動産会社の方は
|
Building coverage, floor area ratio 建ぺい率・容積率 | | 150% 150% |
Time residents 入居時期 | | Immediate available 即入居可 |
Land of the right form 土地の権利形態 | | Ownership 所有権 |
Structure and method of construction 構造・工法 | | Wooden 2-story 木造2階建 |
Use district 用途地域 | | One middle and high 1種中高 |
Overview and notices その他概要・特記事項 | | Contact: Zhongshan, Facilities: Public Water Supply, This sewage, All-electric, Parking: car space 担当者:中山、設備:公営水道、本下水、オール電化、駐車場:カースペース |
Company profile 会社概要 | | <Mediation> Minister of Land, Infrastructure and Transport (9) Takase Real Estate Co., Ltd. Kakogawa Ekimae Yubinbango675-0065 Hyogo Prefecture Kakogawa Kakogawachoshinohara-cho, No. 50 No. 7 No. 002918 <仲介>国土交通大臣(9)第002918号タカセ不動産(株)加古川駅前店〒675-0065 兵庫県加古川市加古川町篠原町50番7号 |