1981July
15.8 million yen, 3K, 271.44 sq m
Used Homes » Kansai » Hyogo Prefecture » Kasai City
 
| | Hyogo Prefecture Kasai City 兵庫県加西市 |
| Hōjō Railway Hōjō Line "Hojo-cho" walk 14 minutes 北条鉄道北条線「北条町」歩14分 |
Features pickup 特徴ピックアップ | | Parking three or more possible / Immediate Available / Land 50 square meters or more / Facing south / Yang per good / Flat to the station / Or more before road 6m / Toilet 2 places / 2-story / Flat terrain 駐車3台以上可 /即入居可 /土地50坪以上 /南向き /陽当り良好 /駅まで平坦 /前道6m以上 /トイレ2ヶ所 /2階建 /平坦地 | Price 価格 | | 15.8 million yen 1580万円 | Floor plan 間取り | | 3K 3K | Units sold 販売戸数 | | 1 units 1戸 | Total units 総戸数 | | 1 units 1戸 | Land area 土地面積 | | 243.56 sq m (registration) 243.56m2(登記) | Building area 建物面積 | | 271.44 sq m (registration) 271.44m2(登記) | Driveway burden-road 私道負担・道路 | | Nothing, South 20m width (contact the road width 13m) 無、南20m幅(接道幅13m) | Completion date 完成時期(築年月) | | July 1981 1981年7月 | Address 住所 | | Hyogo Prefecture Kasai City Hojochofurusaka 1 兵庫県加西市北条町古坂1 | Traffic 交通 | | Hōjō Railway Hōjō Line "Hojo-cho" walk 14 minutes 北条鉄道北条線「北条町」歩14分
| Person in charge 担当者より | | [Regarding this property.] Again and again is a south-facing sales shop facing the load. Building about 82 square meters, Parking is five possible. 【この物件について】サイサイロードに面した南向きの売店舗です。建物約82坪、駐車場は5台可能。 | Contact お問い合せ先 | | Takase Real Estate Co., Ltd. Kasai shop TEL: 0800-808-5723 [Toll free] mobile phone ・ Also available from PHS Caller ID is not notified Please contact the "saw SUUMO (Sumo)" If it does not lead, If the real estate company タカセ不動産(株)加西店TEL:0800-808-5723【通話料無料】携帯電話・PHSからもご利用いただけます 発信者番号は通知されません 「SUUMO(スーモ)を見た」と問い合わせください つながらない方、不動産会社の方は
| Building coverage, floor area ratio 建ぺい率・容積率 | | 60% ・ 200% 60%・200% | Time residents 入居時期 | | Immediate available 即入居可 | Land of the right form 土地の権利形態 | | Ownership 所有権 | Structure and method of construction 構造・工法 | | Steel 2-story 鉄骨2階建 | Use district 用途地域 | | Two dwellings 2種住居 | Overview and notices その他概要・特記事項 | | Facilities: Public Water Supply, This sewage, Centralized LPG, Parking: car space 設備:公営水道、本下水、集中LPG、駐車場:カースペース | Company profile 会社概要 | | <Mediation> Minister of Land, Infrastructure and Transport (9) No. 002918 No. Takase Real Estate Co., Ltd. Kasai shop Yubinbango679-0109 Hyogo Prefecture Kasai City Tamaoka-cho 36-3 <仲介>国土交通大臣(9)第002918号タカセ不動産(株)加西店〒679-0109 兵庫県加西市玉丘町36-3 |
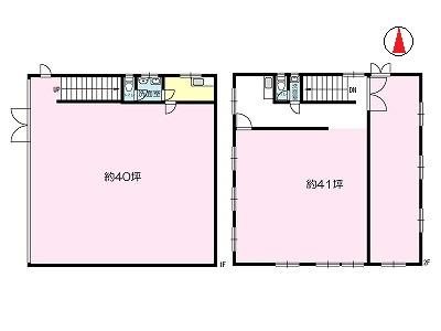
Floor plan間取り図  15.8 million yen, 3K, Land area 243.56 sq m , Building area 271.44 sq m
1580万円、3K、土地面積243.56m2、建物面積271.44m2
Local appearance photo現地外観写真  Local (July 2013) Shooting
現地(2013年7月)撮影
Location
|