Used Homes » Kansai » Hyogo Prefecture » Kawanishi
 
| | Hyogo Prefecture Kawanishi 兵庫県川西市 |
| Hankyu Takarazuka Line "Kawanishinoseguchi" bus 16 minutes transfer SeraAyumi 2 minutes 阪急宝塚線「川西能勢口」バス16分移瀬歩2分 |
| ■ All-electric housing ■ Commitment custom home ■ It housed a large number ■ Double-sided balcony ■ Quiet, yet transportation is also convenient ■オール電化住宅 ■こだわりの注文住宅 ■収納多数 ■両面バルコニー ■閑静でありながら交通も便利 |
| ● Why you shall find sitz bath while watching slowly even TV in the bath ●お風呂でゆっくりTVでも見ながら半身浴なんぞいかがでしょうか |
Features pickup 特徴ピックアップ | | Japanese-style room / Toilet 2 places / 2-story / 2 or more sides balcony / Southeast direction / TV with bathroom / The window in the bathroom / TV monitor interphone / All-electric 和室 /トイレ2ヶ所 /2階建 /2面以上バルコニー /東南向き /TV付浴室 /浴室に窓 /TVモニタ付インターホン /オール電化 | Price 価格 | | 25,800,000 yen 2580万円 | Floor plan 間取り | | 4LDK 4LDK | Units sold 販売戸数 | | 1 units 1戸 | Total units 総戸数 | | 1 units 1戸 | Land area 土地面積 | | 120.07 sq m (36.32 tsubo) (Registration) 120.07m2(36.32坪)(登記) | Building area 建物面積 | | 105 sq m (31.76 tsubo) (Registration) 105m2(31.76坪)(登記) | Driveway burden-road 私道負担・道路 | | Nothing, Southeast 9m width, Northwest 6.3m width 無、南東9m幅、北西6.3m幅 | Completion date 完成時期(築年月) | | July 2004 2004年7月 | Address 住所 | | Hyogo Prefecture Kawanishi Seiwadaihigashi 4 兵庫県川西市清和台東4 | Traffic 交通 | | Hankyu Takarazuka Line "Kawanishinoseguchi" bus 16 minutes transfer SeraAyumi 2 minutes 阪急宝塚線「川西能勢口」バス16分移瀬歩2分
| Related links 関連リンク | | [Related Sites of this company] 【この会社の関連サイト】 | Person in charge 担当者より | | [Regarding this property.] Is a very quiet residential area readjustment is in place. You can send a life that was laid-back and is surrounded by nature. 【この物件について】区画整理が整ったとても閑静な住宅街です。自然に囲まれてのんびりとした生活を送る事ができます。 | Contact お問い合せ先 | | TEL: 0800-603-8261 [Toll free] mobile phone ・ Also available from PHS Caller ID is not notified Please contact the "saw SUUMO (Sumo)" If it does not lead, If the real estate company TEL:0800-603-8261【通話料無料】携帯電話・PHSからもご利用いただけます 発信者番号は通知されません 「SUUMO(スーモ)を見た」と問い合わせください つながらない方、不動産会社の方は
| Building coverage, floor area ratio 建ぺい率・容積率 | | 60% ・ 150% 60%・150% | Time residents 入居時期 | | Consultation 相談 | Land of the right form 土地の権利形態 | | Ownership 所有権 | Structure and method of construction 構造・工法 | | Wooden 2-story 木造2階建 | Use district 用途地域 | | One middle and high 1種中高 | Overview and notices その他概要・特記事項 | | Facilities: Public Water Supply, This sewage, City gas, Parking: Garage 設備:公営水道、本下水、都市ガス、駐車場:車庫 | Company profile 会社概要 | | <Mediation> governor of Osaka (2) No. 053530 (Co.) plus one realistic Estate Yubinbango562-0012 Osaka Prefecture Mino Hakushima 1-2-12 <仲介>大阪府知事(2)第053530号(株)プラスワンリアルエステート〒562-0012 大阪府箕面市白島1-2-12 |
Local appearance photo現地外観写真  South side site (July 16, 2013) Shooting
南側現地(2013年7月16日)撮影
 North Site (July 16, 2013) Shooting
北側 現地(2013年7月16日)撮影
Parking lot駐車場  Parking is also easy space
駐車も楽々スペース
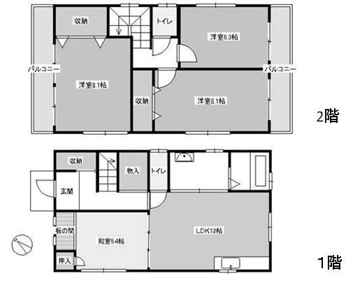
Floor plan間取り図  25,800,000 yen, 4LDK, Land area 120.07 sq m , To clean space in the building area 105 sq m storage space enhancement
2580万円、4LDK、土地面積120.07m2、建物面積105m2 収納スペース充実でスッキリ空間に
Entrance玄関  Many sun a lot of window You can import
窓も多く日差しがたくさん 取り込めます
Kitchenキッチン  It is an open kitchen
オープンキッチンです
Non-living roomリビング以外の居室  Local (August 2013) Shooting
現地(2013年8月)撮影
Bathroom浴室  Local (August 2013) Shooting
現地(2013年8月)撮影
Wash basin, toilet洗面台・洗面所  Local (August 2013) Shooting
現地(2013年8月)撮影
Receipt収納  Local (August 2013) Shooting
現地(2013年8月)撮影
Toiletトイレ  Local (August 2013) Shooting
現地(2013年8月)撮影
Garden庭  Local (August 2013) Shooting
現地(2013年8月)撮影
Balconyバルコニー  Local (August 2013) Shooting
現地(2013年8月)撮影
Otherその他  Local (August 2013) Shooting
現地(2013年8月)撮影
Kitchenキッチン  Local (August 2013) Shooting
現地(2013年8月)撮影
Receipt収納  Local (August 2013) Shooting
現地(2013年8月)撮影
Toiletトイレ  Local (August 2013) Shooting
現地(2013年8月)撮影
Receipt収納  Local (August 2013) Shooting
現地(2013年8月)撮影
 Local (August 2013) Shooting
現地(2013年8月)撮影
Location
|