Used Homes » Kansai » Hyogo Prefecture » Kawanishi
 
| | Hyogo Prefecture Kawanishi 兵庫県川西市 |
| Nose Electric Railway Myokensen "plain" 12 minutes Suimeidai 1-chome, walk 6 minutes by bus 能勢電鉄妙見線「平野」バス12分水明台1丁目歩6分 |
| It is on the first strokes of the New Town of "Tada Green Heights", Around the well-appointed residential area of the compartment that is specified in the first kind low-rise exclusive residential area. 『多田グリーンハイツ』のニュータウンの一画にあり、周辺は第一種低層住居専用地域に指定された区画の整った住宅地。 |
| ■ 2013 September renovated ■ Yang Ming elementary school walk about 4 minutes ■ Midoridai junior high school walk about 9 minutes ■ Seiyu Tada shop about a 10-minute walk ■平成25年9月リフォーム済み■陽明小学校徒歩約4分■緑台中学校徒歩約9分 ■西友多田店徒歩約10分 |
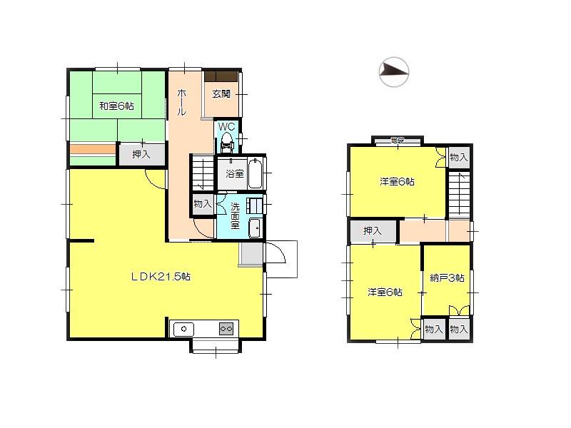
Features pickup 特徴ピックアップ | | Immediate Available / LDK20 tatami mats or more / Land 50 square meters or more / Super close / System kitchen / A quiet residential area / Or more before road 6m / Japanese-style room / Shaping land / garden / 2-story / Warm water washing toilet seat / The window in the bathroom / Leafy residential area / All room 6 tatami mats or more / Flat terrain 即入居可 /LDK20畳以上 /土地50坪以上 /スーパーが近い /システムキッチン /閑静な住宅地 /前道6m以上 /和室 /整形地 /庭 /2階建 /温水洗浄便座 /浴室に窓 /緑豊かな住宅地 /全居室6畳以上 /平坦地 | Price 価格 | | 16.8 million yen 1680万円 | Floor plan 間取り | | 3LDK 3LDK | Units sold 販売戸数 | | 1 units 1戸 | Land area 土地面積 | | 198.67 sq m (registration) 198.67m2(登記) | Building area 建物面積 | | 103.09 sq m (registration) 103.09m2(登記) | Driveway burden-road 私道負担・道路 | | Nothing, North 6m width 無、北6m幅 | Completion date 完成時期(築年月) | | July 1975 1975年7月 | Address 住所 | | Hyogo Prefecture Kawanishi Suimeidai 2 兵庫県川西市水明台2 | Traffic 交通 | | Nose Electric Railway Myokensen "plain" 12 minutes Suimeidai 1-chome, walk 6 minutes by bus 能勢電鉄妙見線「平野」バス12分水明台1丁目歩6分
| Related links 関連リンク | | [Related Sites of this company] 【この会社の関連サイト】 | Person in charge 担当者より | | [Regarding this property.] We Taisei housing Osaka, Since its founding in 1990, Community-based, The customer-first principle and the intermediate number 2100 review of the track record in the motto of experience, I will be happy to help you locate your My Home. 【この物件について】私たちたいせい住宅大阪は、平成2年の創業以来、地域密着型、お客様第一主義をモットーに仲介件数2100件の実績と経験で、お客様のマイホーム探しのお手伝いをさせていただきます。 | Contact お問い合せ先 | | TEL: 0800-603-1564 [Toll free] mobile phone ・ Also available from PHS Caller ID is not notified Please contact the "saw SUUMO (Sumo)" If it does not lead, If the real estate company TEL:0800-603-1564【通話料無料】携帯電話・PHSからもご利用いただけます 発信者番号は通知されません 「SUUMO(スーモ)を見た」と問い合わせください つながらない方、不動産会社の方は
| Building coverage, floor area ratio 建ぺい率・容積率 | | Fifty percent ・ 80% 50%・80% | Time residents 入居時期 | | Immediate available 即入居可 | Land of the right form 土地の権利形態 | | Ownership 所有権 | Structure and method of construction 構造・工法 | | Wooden 2-story 木造2階建 | Renovation リフォーム | | 2013 September interior renovation completed (toilet ・ wall ・ floor ・ all rooms ・ Tatami replacement) 2013年9月内装リフォーム済(トイレ・壁・床・全室・畳入替え) | Use district 用途地域 | | One low-rise 1種低層 | Overview and notices その他概要・特記事項 | | Facilities: Public Water Supply, This sewage, City gas, Parking: Car Port 設備:公営水道、本下水、都市ガス、駐車場:カーポート | Company profile 会社概要 | | <Seller> governor of Osaka Prefecture (5) No. 040730 (company) Osaka Building Lots and Buildings Transaction Business Association (Corporation) Kinki district Real Estate Fair Trade Council member Taisei housing Osaka Co., Ltd. Kofudai head office Kofudai Osaka toyono district toyono 5-13-17 <売主>大阪府知事(5)第040730号(社)大阪府宅地建物取引業協会会員 (公社)近畿地区不動産公正取引協議会加盟たいせい住宅大阪(株)光風台本店大阪府豊能郡豊能町光風台5-13-17 |
Local appearance photo現地外観写真  Local (September 2013) Shooting
現地(2013年9月)撮影
 Local (September 2013) Shooting
現地(2013年9月)撮影
Floor plan間取り図  16.8 million yen, 3LDK, Land area 198.67 sq m , Building area 103.09 sq m
1680万円、3LDK、土地面積198.67m2、建物面積103.09m2
Kitchenキッチン  Indoor (September 2013) Shooting
室内(2013年9月)撮影
Livingリビング  Indoor (September 2013) Shooting
室内(2013年9月)撮影
Bathroom浴室  Indoor (September 2013) Shooting
室内(2013年9月)撮影
Entrance玄関  Indoor (September 2013) Shooting
室内(2013年9月)撮影
Receipt収納  Indoor (September 2013) Shooting
室内(2013年9月)撮影
Toiletトイレ  Indoor (September 2013) Shooting
室内(2013年9月)撮影
Other introspectionその他内観  Indoor (September 2013) Shooting
室内(2013年9月)撮影
Livingリビング  Indoor (September 2013) Shooting
室内(2013年9月)撮影
Receipt収納  Indoor (September 2013) Shooting
室内(2013年9月)撮影
Other introspectionその他内観  Indoor (September 2013) Shooting
室内(2013年9月)撮影
Livingリビング  Indoor (September 2013) Shooting
室内(2013年9月)撮影
Other introspectionその他内観  Indoor (September 2013) Shooting
室内(2013年9月)撮影
 Indoor (September 2013) Shooting
室内(2013年9月)撮影
 Indoor (September 2013) Shooting
室内(2013年9月)撮影
 Indoor (September 2013) Shooting
室内(2013年9月)撮影
Location
|