1982August
54,500,000 yen, 8LDK, 357.87 sq m
Used Homes » Kansai » Hyogo Prefecture » Chuo-ku, Kobe-shi
 
| | Chuo-ku Kobe, Hyogo Prefecture 兵庫県神戸市中央区 |
| Subway Seishin ・ Yamanote Line "Shin-Kobe" walk 10 minutes 地下鉄西神・山手線「新神戸」歩10分 |
| Office-cum-residence parking 3 ~ Four Allowed 事務所兼住居パーキング3 ~ 4台可 |
Features pickup 特徴ピックアップ | | Parking three or more possible / Interior renovation / Three-story or more 駐車3台以上可 /内装リフォーム /3階建以上 | Price 価格 | | 54,500,000 yen 5450万円 | Floor plan 間取り | | 8LDK 8LDK | Units sold 販売戸数 | | 1 units 1戸 | Land area 土地面積 | | 120.79 sq m 120.79m2 | Building area 建物面積 | | 357.87 sq m 357.87m2 | Driveway burden-road 私道負担・道路 | | Nothing 無 | Completion date 完成時期(築年月) | | August 1982 1982年8月 | Address 住所 | | Hyogo Prefecture, Chuo-ku, Kobe, Ikuta-cho 4 兵庫県神戸市中央区生田町4 | Traffic 交通 | | Subway Seishin ・ Yamanote Line "Shin-Kobe" walk 10 minutes 地下鉄西神・山手線「新神戸」歩10分
| Contact お問い合せ先 | | Pitattohausu Kurashiki Central store (stock) Square EstateTEL: 0800-603-7595 [Toll free] mobile phone ・ Also available from PHS Caller ID is not notified Please contact the "saw SUUMO (Sumo)" If it does not lead, If the real estate company ピタットハウス倉敷中央店(株)Square EstateTEL:0800-603-7595【通話料無料】携帯電話・PHSからもご利用いただけます 発信者番号は通知されません 「SUUMO(スーモ)を見た」と問い合わせください つながらない方、不動産会社の方は
| Building coverage, floor area ratio 建ぺい率・容積率 | | 80% ・ 300% 80%・300% | Time residents 入居時期 | | Consultation 相談 | Land of the right form 土地の権利形態 | | Ownership 所有権 | Structure and method of construction 構造・工法 | | RC6 story RC6階建 | Renovation リフォーム | | January 2001 interior renovation completed (all rooms) 2001年1月内装リフォーム済(全室) | Use district 用途地域 | | Residential 近隣商業 | Overview and notices その他概要・特記事項 | | Parking: car space 駐車場:カースペース | Company profile 会社概要 | | <Mediation> Okayama Governor (2) the first 005,047 No. Pitattohausu Kurashiki Central store (stock) Square Estateyubinbango710-0831 Kurashiki City, Okayama Prefecture Tanoue 1128-6 <仲介>岡山県知事(2)第005047号ピタットハウス倉敷中央店(株)Square Estate〒710-0831 岡山県倉敷市田ノ上1128-6 |
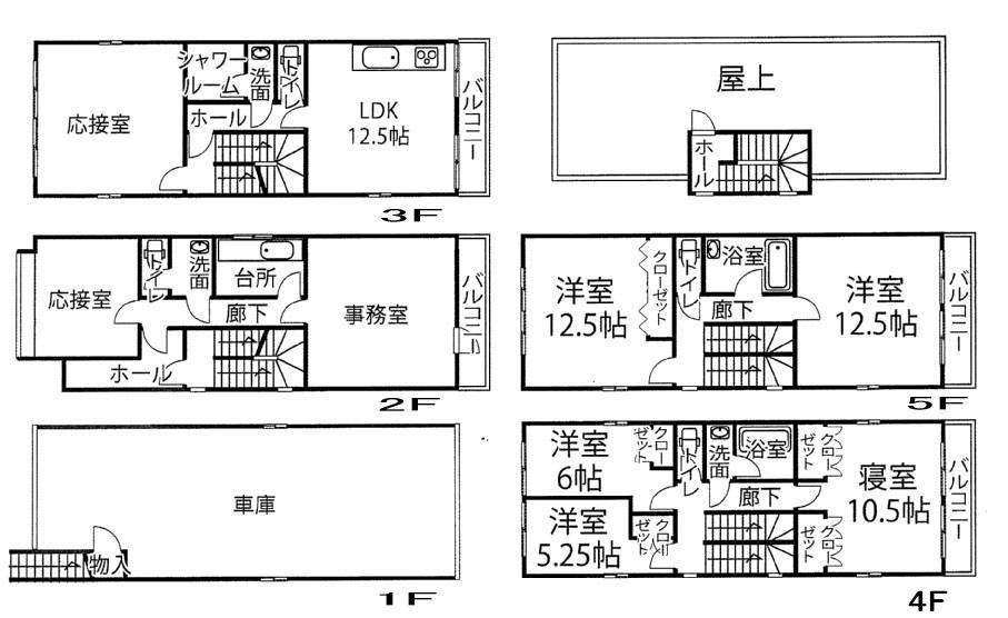
Floor plan間取り図  54,500,000 yen, 8LDK, Land area 120.79 sq m , Building area 357.87 sq m
5450万円、8LDK、土地面積120.79m2、建物面積357.87m2
 Local appearance photo
現地外観写真
Location
|