1983September
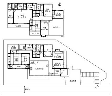
85 million yen, 8LDK + S (storeroom), 361.71 sq m
Used Homes » Kansai » Hyogo Prefecture » Kobe Higashinada
 
| | Kobe, Hyogo Prefecture Higashi-Nada Ward 兵庫県神戸市東灘区 |
| JR Tokaido Line "settsu motoyama" bus 5 minutes new Ochiai HashiAyumi 9 minutes JR東海道本線「摂津本山」バス5分新落合橋歩9分 |
Price 価格 | | 85 million yen 8500万円 | Floor plan 間取り | | 8LDK + S (storeroom) 8LDK+S(納戸) | Units sold 販売戸数 | | 1 units 1戸 | Land area 土地面積 | | 475.78 sq m (registration) 475.78m2(登記) | Building area 建物面積 | | 361.71 sq m (registration) 361.71m2(登記) | Driveway burden-road 私道負担・道路 | | Nothing, South 4.5m width (contact the road width 36m) 無、南4.5m幅(接道幅36m) | Completion date 完成時期(築年月) | | September 1983 1983年9月 | Address 住所 | | Kobe, Hyogo Prefecture Higashi-Nada Ward Nishiokamoto 7 兵庫県神戸市東灘区西岡本7 | Traffic 交通 | | JR Tokaido Line "settsu motoyama" bus 5 minutes new Ochiai HashiAyumi 9 minutes JR東海道本線「摂津本山」バス5分新落合橋歩9分
| Person in charge 担当者より | | The person in charge Akira Inoue 担当者井上哲 | Contact お問い合せ先 | | Rehouse Okamoto of Mitsui shop Mitsui Fudosan Realty (Ltd.) TEL: 0120-922031 [Toll free] Please contact the "saw SUUMO (Sumo)" 三井のリハウス岡本店三井不動産リアルティ(株)TEL:0120-922031【通話料無料】「SUUMO(スーモ)を見た」と問い合わせください | Building coverage, floor area ratio 建ぺい率・容積率 | | Fifty percent ・ Hundred percent 50%・100% | Time residents 入居時期 | | Consultation 相談 | Land of the right form 土地の権利形態 | | Ownership 所有権 | Structure and method of construction 構造・工法 | | RC2 floors 1 underground story RC2階地下1階建 | Use district 用途地域 | | One low-rise 1種低層 | Other limitations その他制限事項 | | In rent (lease takeover required) 賃貸中(賃貸借契約引継要) | Overview and notices その他概要・特記事項 | | Contact: Akira Inoue, Parking: car space 担当者:井上哲、駐車場:カースペース | Company profile 会社概要 | | <Mediation> Minister of Land, Infrastructure and Transport (13) Rehouse Okamoto store No. 000777 Mitsui Fudosan Realty Co. Yubinbango658-0072 Kobe City, Hyogo Prefecture Higashi-Nada Ward Okamoto 1-4-12 <仲介>国土交通大臣(13)第000777号三井のリハウス岡本店三井不動産リアルティ(株)〒658-0072 兵庫県神戸市東灘区岡本1-4-12 |
 Local appearance photo
現地外観写真
 Floor plan
間取り図
Location
|