Used Homes » Kansai » Hyogo Prefecture » Kobe Kita-ku
 
| | Kobe, Hyogo Prefecture, Kita-ku, 兵庫県神戸市北区 |
| Shintetsu Arima Line "Suzurandai" walk 8 minutes 神戸電鉄有馬線「鈴蘭台」歩8分 |
| Immediate Available, Parking three or more possible, Land 50 square meters or more, Siemens south road, Or more before road 6m, IH cooking heater, Interior renovation, Facing south, System kitchen, Yang per good, Toilet 2 places, Bathroom 1 tsubo 即入居可、駐車3台以上可、土地50坪以上、南側道路面す、前道6m以上、IHクッキングヒーター、内装リフォーム、南向き、システムキッチン、陽当り良好、トイレ2ヶ所、浴室1坪 |
Features pickup 特徴ピックアップ | | Parking three or more possible / Immediate Available / Land 50 square meters or more / Interior renovation / Facing south / System kitchen / Yang per good / Siemens south road / Or more before road 6m / Toilet 2 places / Bathroom 1 tsubo or more / 2-story / IH cooking heater 駐車3台以上可 /即入居可 /土地50坪以上 /内装リフォーム /南向き /システムキッチン /陽当り良好 /南側道路面す /前道6m以上 /トイレ2ヶ所 /浴室1坪以上 /2階建 /IHクッキングヒーター | Price 価格 | | 31,800,000 yen 3180万円 | Floor plan 間取り | | 6LLDDKK + S (storeroom) 6LLDDKK+S(納戸) | Units sold 販売戸数 | | 1 units 1戸 | Total units 総戸数 | | 1 units 1戸 | Land area 土地面積 | | 231.03 sq m (registration) 231.03m2(登記) | Building area 建物面積 | | 190.04 sq m (registration) 190.04m2(登記) | Driveway burden-road 私道負担・道路 | | Nothing, South 6m width (contact the road width 17m) 無、南6m幅(接道幅17m) | Completion date 完成時期(築年月) | | March 2002 2002年3月 | Address 住所 | | Kobe City, Hyogo Prefecture, Kita-ku, Suzurandaikita cho 5 兵庫県神戸市北区鈴蘭台北町5 | Traffic 交通 | | Shintetsu Arima Line "Suzurandai" walk 8 minutes 神戸電鉄有馬線「鈴蘭台」歩8分
| Person in charge 担当者より | | Person in charge of real-estate and building FP Oishi Kiyoshi Age: 40 Daigyokai Experience: 18 years 担当者宅建FP大石 潔年齢:40代業界経験:18年 | Contact お問い合せ先 | | TEL: 0800-603-1271 [Toll free] mobile phone ・ Also available from PHS Caller ID is not notified Please contact the "saw SUUMO (Sumo)" If it does not lead, If the real estate company TEL:0800-603-1271【通話料無料】携帯電話・PHSからもご利用いただけます 発信者番号は通知されません 「SUUMO(スーモ)を見た」と問い合わせください つながらない方、不動産会社の方は
| Building coverage, floor area ratio 建ぺい率・容積率 | | 60% ・ 200% 60%・200% | Time residents 入居時期 | | Immediate available 即入居可 | Land of the right form 土地の権利形態 | | Ownership 所有権 | Structure and method of construction 構造・工法 | | Wooden 2-story 木造2階建 | Renovation リフォーム | | August interior renovation completed (Kitchen 2013 ・ bathroom ・ toilet ・ wall ・ floor ・ all rooms ・ House cleaning) 2013年8月内装リフォーム済(キッチン・浴室・トイレ・壁・床・全室・ハウスクリーニング) | Use district 用途地域 | | Two mid-high 2種中高 | Other limitations その他制限事項 | | Residential land development construction regulation area 宅地造成工事規制区域 | Overview and notices その他概要・特記事項 | | Contact: Oishi Kiyoshi, Facilities: Public Water Supply, This sewage, City gas, Parking: car space 担当者:大石 潔、設備:公営水道、本下水、都市ガス、駐車場:カースペース | Company profile 会社概要 | | <Mediation> Minister of Land, Infrastructure and Transport (11) No. 002287 (Corporation) Japan Living Service Co., Ltd. Suzurandai office Yubinbango651-1111 Kobe, Hyogo Prefecture, Kita-ku, Suzurandaikita cho 1-11-8 <仲介>国土交通大臣(11)第002287号(株)日住サービス鈴蘭台営業所〒651-1111 兵庫県神戸市北区鈴蘭台北町1-11-8 |
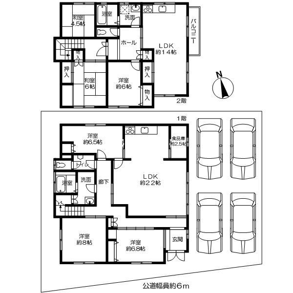
Floor plan間取り図  31,800,000 yen, 6LLDDKK + S (storeroom), Land area 231.03 sq m , Building area 190.04 sq m
3180万円、6LLDDKK+S(納戸)、土地面積231.03m2、建物面積190.04m2
Local appearance photo現地外観写真  Local (April 2013) Shooting
現地(2013年4月)撮影
Livingリビング  Indoor (11 May 2013) Shooting
室内(2013年11月)撮影
Bathroom浴室  Indoor (11 May 2013) Shooting
室内(2013年11月)撮影
Kitchenキッチン  Indoor (11 May 2013) Shooting
室内(2013年11月)撮影
Non-living roomリビング以外の居室  Indoor (11 May 2013) Shooting
室内(2013年11月)撮影
Entrance玄関  Indoor (11 May 2013) Shooting
室内(2013年11月)撮影
Wash basin, toilet洗面台・洗面所  Indoor (11 May 2013) Shooting
室内(2013年11月)撮影
Other introspectionその他内観  Indoor (11 May 2013) Shooting
室内(2013年11月)撮影
Location
|