Used Homes » Kansai » Hyogo Prefecture » Kobe Kita-ku
 
| | Kobe, Hyogo Prefecture, Kita-ku, 兵庫県神戸市北区 |
| Shintetsu Arima Line "Yamanomachi" walk 22 minutes 神戸電鉄有馬線「山の街」歩22分 |
Features pickup 特徴ピックアップ | | Parking three or more possible / Land 50 square meters or more / LDK18 tatami mats or more / Summer resort / Facing south / System kitchen / All room storage / A quiet residential area / Or more before road 6m / Shaping land / Garden more than 10 square meters / Wide balcony / Toilet 2 places / 2-story / Walk-in closet / All room 6 tatami mats or more / Development subdivision in 駐車3台以上可 /土地50坪以上 /LDK18畳以上 /避暑地 /南向き /システムキッチン /全居室収納 /閑静な住宅地 /前道6m以上 /整形地 /庭10坪以上 /ワイドバルコニー /トイレ2ヶ所 /2階建 /ウォークインクロゼット /全居室6畳以上 /開発分譲地内 | Price 価格 | | 39,800,000 yen 3980万円 | Floor plan 間取り | | 3LDK 3LDK | Units sold 販売戸数 | | 1 units 1戸 | Total units 総戸数 | | 1 units 1戸 | Land area 土地面積 | | 275.68 sq m (registration) 275.68m2(登記) | Building area 建物面積 | | 136.98 sq m (registration) 136.98m2(登記) | Driveway burden-road 私道負担・道路 | | Nothing, South 6m width (contact the road width 6m), North 10m width (contact the road width 6m) 無、南6m幅(接道幅6m)、北10m幅(接道幅6m) | Completion date 完成時期(築年月) | | March 1998 1998年3月 | Address 住所 | | Kobe City, Hyogo Prefecture, Kita-ku, Ohara 2 兵庫県神戸市北区大原2 | Traffic 交通 | | Shintetsu Arima Line "Yamanomachi" walk 22 minutes JR Tokaido Line "Sannomiya" 30 minutes Ohara 2-chome, walk 4 minutes by bus 神戸電鉄有馬線「山の街」歩22分 JR東海道本線「三ノ宮」バス30分大原2丁目歩4分
| Contact お問い合せ先 | | (Ltd.) Great TEL: 0800-603-2970 [Toll free] mobile phone ・ Also available from PHS Caller ID is not notified Please contact the "saw SUUMO (Sumo)" If it does not lead, If the real estate company (株)五大TEL:0800-603-2970【通話料無料】携帯電話・PHSからもご利用いただけます 発信者番号は通知されません 「SUUMO(スーモ)を見た」と問い合わせください つながらない方、不動産会社の方は
| Building coverage, floor area ratio 建ぺい率・容積率 | | 40% ・ 80% 40%・80% | Time residents 入居時期 | | Consultation 相談 | Land of the right form 土地の権利形態 | | Ownership 所有権 | Structure and method of construction 構造・工法 | | Steel 2-story 鉄骨2階建 | Use district 用途地域 | | One low-rise 1種低層 | Overview and notices その他概要・特記事項 | | Facilities: Public Water Supply, This sewage, City gas, Parking: car space 設備:公営水道、本下水、都市ガス、駐車場:カースペース | Company profile 会社概要 | | <Mediation> Governor of Hyogo Prefecture (10) No. 200481 (Ltd.) Great Yubinbango662-0024 Nishinomiya, Hyogo Prefecture Meitsugi cho 4-12 <仲介>兵庫県知事(10)第200481号(株)五大〒662-0024 兵庫県西宮市名次町4-12 |
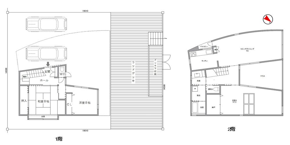
Floor plan間取り図  39,800,000 yen, 3LDK, Land area 275.68 sq m , Building area 136.98 sq m
3980万円、3LDK、土地面積275.68m2、建物面積136.98m2
Local appearance photo現地外観写真  Local (11 May 2013) Shooting
現地(2013年11月)撮影
Livingリビング  Indoor (11 May 2013) Shooting
室内(2013年11月)撮影
Bathroom浴室  Indoor (11 May 2013) Shooting
室内(2013年11月)撮影
Non-living roomリビング以外の居室  Indoor (11 May 2013) Shooting
室内(2013年11月)撮影
Garden庭  Local (11 May 2013) Shooting
現地(2013年11月)撮影
Balconyバルコニー  Local (11 May 2013) Shooting
現地(2013年11月)撮影
Non-living roomリビング以外の居室  Indoor (11 May 2013) Shooting
室内(2013年11月)撮影
Location
|