Used Homes » Kansai » Hyogo Prefecture » Kobe Kita-ku
 
| | Kobe, Hyogo Prefecture, Kita-ku, 兵庫県神戸市北区 |
| JR Tokaido Line "Sannomiya" 25 minutes Hiyodoridai center before walking 4 minutes by bus JR東海道本線「三ノ宮」バス25分ひよどり台センター前歩4分 |
| Yang per good, A quiet residential area, garden, 2-story, 2 or more sides balcony 陽当り良好、閑静な住宅地、庭、2階建、2面以上バルコニー |
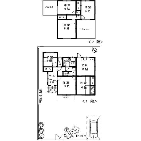
Features pickup 特徴ピックアップ | | Yang per good / A quiet residential area / garden / 2-story / 2 or more sides balcony 陽当り良好 /閑静な住宅地 /庭 /2階建 /2面以上バルコニー | Price 価格 | | 18,700,000 yen 1870万円 | Floor plan 間取り | | 6DK 6DK | Units sold 販売戸数 | | 1 units 1戸 | Total units 総戸数 | | 1 units 1戸 | Land area 土地面積 | | 254.82 sq m (registration) 254.82m2(登記) | Building area 建物面積 | | 119.8 sq m (registration) 119.8m2(登記) | Driveway burden-road 私道負担・道路 | | Nothing, Southwest 6m width, Northeast 4m width 無、南西6m幅、北東4m幅 | Completion date 完成時期(築年月) | | October 1977 1977年10月 | Address 住所 | | Kobe City, Hyogo Prefecture, Kita-ku, Hiyodoridai 1 兵庫県神戸市北区ひよどり台1 | Traffic 交通 | | JR Tokaido Line "Sannomiya" 25 minutes Hiyodoridai center before walking 4 minutes by bus JR東海道本線「三ノ宮」バス25分ひよどり台センター前歩4分
| Person in charge 担当者より | | Person in charge of real-estate and building Kawato Kuniko Age: 50 Daigyokai experience: now 20 years continuous service 20 years. Kobe's Kita-ku, devoted. Kita-ku, is rich and spring squeaking nightingale natural, We sometimes like a place, such as see also wild boar and monkeys. We have to beliefs that the do to hard to be able to now. 担当者宅建川戸 邦子年齢:50代業界経験:20年勤続20年になりました。神戸市北区一筋です。北区は自然が豊かで春は鶯が鳴き、時には野生のイノシシや猿も見かけるようなところがきにいっています。今出来ることを一生懸命にやるのを信条にしています。 | Contact お問い合せ先 | | TEL: 0800-603-1271 [Toll free] mobile phone ・ Also available from PHS Caller ID is not notified Please contact the "saw SUUMO (Sumo)" If it does not lead, If the real estate company TEL:0800-603-1271【通話料無料】携帯電話・PHSからもご利用いただけます 発信者番号は通知されません 「SUUMO(スーモ)を見た」と問い合わせください つながらない方、不動産会社の方は
| Expenses 諸費用 | | Town council fee: unspecified amount 町会費:金額未定 | Building coverage, floor area ratio 建ぺい率・容積率 | | 40% ・ 80% 40%・80% | Time residents 入居時期 | | Consultation 相談 | Land of the right form 土地の権利形態 | | Ownership 所有権 | Structure and method of construction 構造・工法 | | RC2 story RC2階建 | Use district 用途地域 | | One low-rise 1種低層 | Other limitations その他制限事項 | | Residential land development construction regulation area 宅地造成工事規制区域 | Overview and notices その他概要・特記事項 | | Contact: Kawato Kuniko, Facilities: Public Water Supply, This sewage, City gas, Parking: Garage 担当者:川戸 邦子、設備:公営水道、本下水、都市ガス、駐車場:車庫 | Company profile 会社概要 | | <Mediation> Minister of Land, Infrastructure and Transport (11) No. 002287 (Corporation) Japan Living Service Co., Ltd. Suzurandai office Yubinbango651-1111 Kobe, Hyogo Prefecture, Kita-ku, Suzurandaikita cho 1-11-8 <仲介>国土交通大臣(11)第002287号(株)日住サービス鈴蘭台営業所〒651-1111 兵庫県神戸市北区鈴蘭台北町1-11-8 |
Floor plan間取り図  18,700,000 yen, 6DK, Land area 254.82 sq m , Building area 119.8 sq m
1870万円、6DK、土地面積254.82m2、建物面積119.8m2
Local appearance photo現地外観写真  Local (12 May 2013) Shooting
現地(2013年12月)撮影
Parking lot駐車場  Local (12 May 2013) Shooting
現地(2013年12月)撮影
Garden庭  Local (12 May 2013) Shooting
現地(2013年12月)撮影
Balconyバルコニー  Local (12 May 2013) Shooting
現地(2013年12月)撮影
Garden庭  Local (12 May 2013) Shooting
現地(2013年12月)撮影
Location
|