19,800,000 yen, 3LDK, 82.46 sq m
Used Homes » Kansai » Hyogo Prefecture » Kobe Nada Ward
 
| | Kobe, Hyogo Prefecture Nada Ward 兵庫県神戸市灘区 |
| Hankyu Kobe Line "Prince Park" walk 17 minutes 阪急神戸線「王子公園」歩17分 |
| March 2011 earthquake repair work already Interior completely renovated 平成23年3月耐震改修工事済み 室内全面改装済み |
Features pickup 特徴ピックアップ | | LDK15 tatami mats or more / Toilet 2 places / 2-story / The window in the bathroom / All living room flooring / All room 6 tatami mats or more / Located on a hill LDK15畳以上 /トイレ2ヶ所 /2階建 /浴室に窓 /全居室フローリング /全居室6畳以上 /高台に立地 | Price 価格 | | 19,800,000 yen 1980万円 | Floor plan 間取り | | 3LDK 3LDK | Units sold 販売戸数 | | 1 units 1戸 | Land area 土地面積 | | 68.57 sq m (registration) 68.57m2(登記) | Building area 建物面積 | | 82.46 sq m (registration) 82.46m2(登記) | Driveway burden-road 私道負担・道路 | | 3.56 sq m , East 5m width (contact the road width 2.9m) 3.56m2、東5m幅(接道幅2.9m) | Completion date 完成時期(築年月) | | 1900 January 1900年1月 | Address 住所 | | Kobe, Hyogo Prefecture Nada Ward Kunitamadori 4 兵庫県神戸市灘区国玉通4 | Traffic 交通 | | Hankyu Kobe Line "Prince Park" walk 17 minutes 阪急神戸線「王子公園」歩17分
| Related links 関連リンク | | [Related Sites of this company] 【この会社の関連サイト】 | Person in charge 担当者より | | Rep Kajiya 担当者梶谷 | Contact お問い合せ先 | | TEL: 0800-603-0471 [Toll free] mobile phone ・ Also available from PHS Caller ID is not notified Please contact the "saw SUUMO (Sumo)" If it does not lead, If the real estate company TEL:0800-603-0471【通話料無料】携帯電話・PHSからもご利用いただけます 発信者番号は通知されません 「SUUMO(スーモ)を見た」と問い合わせください つながらない方、不動産会社の方は
| Building coverage, floor area ratio 建ぺい率・容積率 | | 60% ・ 150% 60%・150% | Time residents 入居時期 | | Consultation 相談 | Land of the right form 土地の権利形態 | | Ownership 所有権 | Structure and method of construction 構造・工法 | | Wooden 2-story 木造2階建 | Use district 用途地域 | | One low-rise 1種低層 | Overview and notices その他概要・特記事項 | | Contact: Kajiya, Parking: No 担当者:梶谷、駐車場:無 | Company profile 会社概要 | | <Mediation> Minister of Land, Infrastructure and Transport (10) No. 002608 Japan Residential Distribution Co., Ltd. Rokko shop Yubinbango657-0028 Kobe, Hyogo Prefecture Nada Ward Morigo cho 2-3-2-103 pa - Kunova Rokkomichi first floor <仲介>国土交通大臣(10)第002608号日本住宅流通(株)六甲店〒657-0028 兵庫県神戸市灘区森後町2-3-2-103 パ-クノヴァ六甲道1階 |
 Kitchen
キッチン
 Entrance
玄関
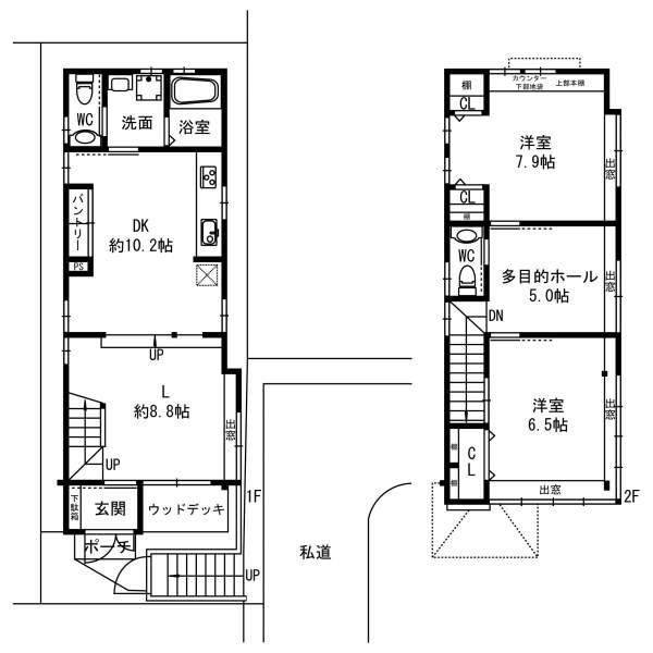
Floor plan間取り図  19,800,000 yen, 3LDK, Land area 68.57 sq m , Building area 82.46 sq m
1980万円、3LDK、土地面積68.57m2、建物面積82.46m2
 Kitchen
キッチン
 Other introspection
その他内観
 Other introspection
その他内観
 Other introspection
その他内観
Location
|