Used Homes » Kansai » Hyogo Prefecture » Nishi-ku, Kobe
 
| | Kobe City, Hyogo Prefecture, Nishi-ku, 兵庫県神戸市西区 |
| Subway Seishin ・ Yamanote Line "Seishin Chuo" walk 21 minutes 地下鉄西神・山手線「西神中央」歩21分 |
Features pickup 特徴ピックアップ | | Parking two Allowed / LDK18 tatami mats or more / System kitchen / All room storage / Garden more than 10 square meters / 2-story / All room 6 tatami mats or more / BS ・ CS ・ CATV 駐車2台可 /LDK18畳以上 /システムキッチン /全居室収納 /庭10坪以上 /2階建 /全居室6畳以上 /BS・CS・CATV | Price 価格 | | 49,800,000 yen 4980万円 | Floor plan 間取り | | 6LDK 6LDK | Units sold 販売戸数 | | 1 units 1戸 | Total units 総戸数 | | 1 units 1戸 | Land area 土地面積 | | 300.62 sq m (90.93 tsubo) (Registration) 300.62m2(90.93坪)(登記) | Building area 建物面積 | | 151.19 sq m (45.73 tsubo) (Registration) 151.19m2(45.73坪)(登記) | Driveway burden-road 私道負担・道路 | | Nothing, Northeast 6.1m width (contact the road width 15.9m), Northwest 6m width (contact the road width 17.2m) 無、北東6.1m幅(接道幅15.9m)、北西6m幅(接道幅17.2m) | Completion date 完成時期(築年月) | | September 1991 1991年9月 | Address 住所 | | Kobe City, Hyogo Prefecture, Nishi-ku, Mikatadai 5-16-14 兵庫県神戸市西区美賀多台5-16-14 | Traffic 交通 | | Subway Seishin ・ Yamanote Line "Seishin Chuo" walk 21 minutes 地下鉄西神・山手線「西神中央」歩21分
| Related links 関連リンク | | [Related Sites of this company] 【この会社の関連サイト】 | Contact お問い合せ先 | | Aiyu Estate (Ltd.) TEL: 0800-602-5448 [Toll free] mobile phone ・ Also available from PHS Caller ID is not notified Please contact the "saw SUUMO (Sumo)" If it does not lead, If the real estate company アイユーエステート(株)TEL:0800-602-5448【通話料無料】携帯電話・PHSからもご利用いただけます 発信者番号は通知されません 「SUUMO(スーモ)を見た」と問い合わせください つながらない方、不動産会社の方は
| Expenses 諸費用 | | Autonomous membership fee: 600 yen / Year 自治会費:600円/年 | Building coverage, floor area ratio 建ぺい率・容積率 | | Fifty percent ・ 80% 50%・80% | Time residents 入居時期 | | Immediate available 即入居可 | Land of the right form 土地の権利形態 | | Ownership 所有権 | Structure and method of construction 構造・工法 | | Light-gauge steel 2-story 軽量鉄骨2階建 | Use district 用途地域 | | One low-rise 1種低層 | Other limitations その他制限事項 | | Residential land development construction regulation area 宅地造成工事規制区域 | Overview and notices その他概要・特記事項 | | Facilities: Public Water Supply, This sewage, City gas, Parking: Garage 設備:公営水道、本下水、都市ガス、駐車場:車庫 | Company profile 会社概要 | | <Mediation> Governor of Hyogo Prefecture (1) No. 300368 Aiyu Estate Co., Ltd. Yubinbango666-0016 Hyogo Prefecture Kawanishi center-cho 6-11 <仲介>兵庫県知事(1)第300368号アイユーエステート(株)〒666-0016 兵庫県川西市中央町6-11 |
Local appearance photo現地外観写真  Local (May 2013) Shooting
現地(2013年5月)撮影
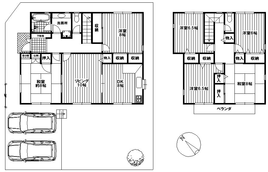
Floor plan間取り図  49,800,000 yen, 6LDK, Land area 300.62 sq m , Building area 151.19 sq m
4980万円、6LDK、土地面積300.62m2、建物面積151.19m2
Parking lot駐車場  Local (May 2013) Shooting
現地(2013年5月)撮影
Local appearance photo現地外観写真  Local (May 2013) Shooting
現地(2013年5月)撮影
 Local (May 2013) Shooting
現地(2013年5月)撮影
 Local (May 2013) Shooting
現地(2013年5月)撮影
Location
|