|
|
Kobe City, Hyogo Prefecture, Nishi-ku,
兵庫県神戸市西区
|
|
Subway Seishin ・ Yamanote Line "Sports Park" walk 9 minutes
地下鉄西神・山手線「総合運動公園」歩9分
|
|
[It is recommended for those looking for a 2 family house]
【2世帯住宅をお探しの方におすすめです】
|
|
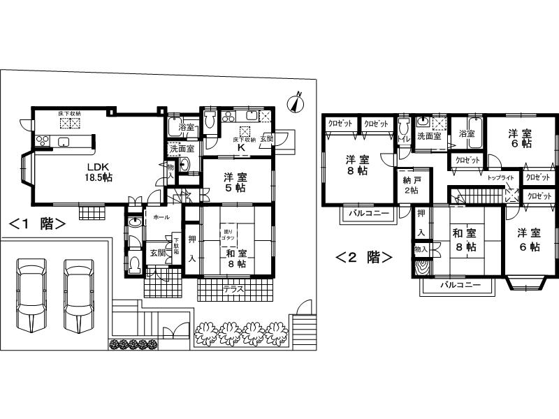
[2 family house] ※ It allows you to navigate in renovations ■ Second floor hallway also lighting good in the top light ■ There Gotatsu moat to 8 pledge first floor Japanese-style room ■ LDK, All Western-style pair glass (except bay window) ■ In the housing convenient hallway closet or storeroom, There is attic storage on the second floor hallway ■ 2013 October outer wall ・ Roof Coatings Construction Cross Hakawa (second floor north side Western-style 6 Pledge) Tatami had made ・ Shoji pasting exchange (first floor Japanese-style room 8 quires)
【2世帯住宅】※改装工事で行き来が可能になります■トップライトで2階廊下も採光良■1階和室8帖には堀ゴタツあり■LDK、全洋室ペアガラス(出窓除く)■収納便利な廊下にクローゼットや納戸、2階廊下に屋根裏収納庫あり■平成25年10月 外壁・屋根塗装工事 クロス貼替(2階北側洋室6帖) 畳新調・障子貼替(1階和室8帖)
|
Features pickup 特徴ピックアップ | | Parking two Allowed / LDK18 tatami mats or more / Facing south / Yang per good / All room storage / Siemens south road / Shaping land / Exterior renovation / 2-story / South balcony / Double-glazing / Storeroom / A large gap between the neighboring house / 2 family house / Attic storage / terrace 駐車2台可 /LDK18畳以上 /南向き /陽当り良好 /全居室収納 /南側道路面す /整形地 /外装リフォーム /2階建 /南面バルコニー /複層ガラス /納戸 /隣家との間隔が大きい /2世帯住宅 /屋根裏収納 /テラス |
Price 価格 | | 48,500,000 yen 4850万円 |
Floor plan 間取り | | 6LDKK + S (storeroom) 6LDKK+S(納戸) |
Units sold 販売戸数 | | 1 units 1戸 |
Land area 土地面積 | | 209.07 sq m (registration) 209.07m2(登記) |
Building area 建物面積 | | 162.31 sq m (registration) 162.31m2(登記) |
Driveway burden-road 私道負担・道路 | | Nothing, South 6m width (contact the road width 15m) 無、南6m幅(接道幅15m) |
Completion date 完成時期(築年月) | | February 1999 1999年2月 |
Address 住所 | | Hyogo prefecture Kobe city west district Gakuenhigashi cho 7 兵庫県神戸市西区学園東町7 |
Traffic 交通 | | Subway Seishin ・ Yamanote Line "Sports Park" walk 9 minutes 地下鉄西神・山手線「総合運動公園」歩9分
|
Person in charge 担当者より | | [Regarding this property.] 2 family house 【この物件について】2世帯住宅 |
Contact お問い合せ先 | | TEL: 0800-603-1255 [Toll free] mobile phone ・ Also available from PHS Caller ID is not notified Please contact the "saw SUUMO (Sumo)" If it does not lead, If the real estate company TEL:0800-603-1255【通話料無料】携帯電話・PHSからもご利用いただけます 発信者番号は通知されません 「SUUMO(スーモ)を見た」と問い合わせください つながらない方、不動産会社の方は
|
Building coverage, floor area ratio 建ぺい率・容積率 | | 40% ・ 80% 40%・80% |
Time residents 入居時期 | | Consultation 相談 |
Land of the right form 土地の権利形態 | | Ownership 所有権 |
Structure and method of construction 構造・工法 | | Wooden 2-story 木造2階建 |
Renovation リフォーム | | October 2013 exterior renovation completed (outer wall ・ roof) 2013年10月外装リフォーム済(外壁・屋根) |
Use district 用途地域 | | One low-rise 1種低層 |
Other limitations その他制限事項 | | Site area minimum Yes, Setback Yes 敷地面積最低限度有、壁面後退有 |
Overview and notices その他概要・特記事項 | | Facilities: Public Water Supply, This sewage, City gas, Building confirmation number: No. 90643, Parking: car space 設備:公営水道、本下水、都市ガス、建築確認番号:第90643号、駐車場:カースペース |
Company profile 会社概要 | | <Mediation> Minister of Land, Infrastructure and Transport (11) No. 002287 (Corporation) Japan Living Service Co., Ltd. Myodani office Yubinbango654-0154 Kobe Suma-ku, Nakaochiai 2-2-5 <仲介>国土交通大臣(11)第002287号(株)日住サービス名谷営業所〒654-0154 兵庫県神戸市須磨区中落合2-2-5 |