|
|
Hyogo Prefecture, Kobe Suma-ku,
兵庫県神戸市須磨区
|
|
Subway Seishin ・ Yamanote Line "Myodani" bus 7 Bunshiro Hill Central Park walk 5 minutes
地下鉄西神・山手線「名谷」バス7分城が丘中央公園歩5分
|
|
The first is a kind low-rise exclusive residential area.
第一種低層住居専用地域です。
|
Features pickup 特徴ピックアップ | | A quiet residential area / Or more before road 6m / 2-story 閑静な住宅地 /前道6m以上 /2階建 |
Price 価格 | | 7.8 million yen 780万円 |
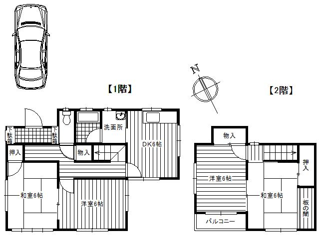
Floor plan 間取り | | 4DK 4DK |
Units sold 販売戸数 | | 1 units 1戸 |
Land area 土地面積 | | 93.24 sq m (registration) 93.24m2(登記) |
Building area 建物面積 | | 74.52 sq m (registration) 74.52m2(登記) |
Driveway burden-road 私道負担・道路 | | Nothing, North 12m width (contact the road width 2.5m) 無、北12m幅(接道幅2.5m) |
Completion date 完成時期(築年月) | | October 1980 1980年10月 |
Address 住所 | | Hyogo Prefecture, Kobe Suma-ku, Shirakawadai 4 兵庫県神戸市須磨区白川台4 |
Traffic 交通 | | Subway Seishin ・ Yamanote Line "Myodani" bus 7 Bunshiro Hill Central Park walk 5 minutes JR Sanyo Line "Kobe" 25 minutes Shirakawa TogeAyumi 1 minute bus 地下鉄西神・山手線「名谷」バス7分城が丘中央公園歩5分 JR山陽本線「神戸」バス25分白川峠歩1分
|
Person in charge 担当者より | | Irimajiri personnel 担当者いりまじり |
Contact お問い合せ先 | | Peace of mind home (Ltd.) TEL: 0800-809-8574 [Toll free] mobile phone ・ Also available from PHS Caller ID is not notified Please contact the "saw SUUMO (Sumo)" If it does not lead, If the real estate company 安心ホーム(株)TEL:0800-809-8574【通話料無料】携帯電話・PHSからもご利用いただけます 発信者番号は通知されません 「SUUMO(スーモ)を見た」と問い合わせください つながらない方、不動産会社の方は
|
Building coverage, floor area ratio 建ぺい率・容積率 | | Fifty percent ・ Hundred percent 50%・100% |
Time residents 入居時期 | | Immediate available 即入居可 |
Land of the right form 土地の権利形態 | | Ownership 所有権 |
Structure and method of construction 構造・工法 | | Wooden 2-story 木造2階建 |
Use district 用途地域 | | One low-rise 1種低層 |
Overview and notices その他概要・特記事項 | | Contact: Irimajiri, Facilities: Public Water Supply, This sewage, City gas, Parking: car space 担当者:いりまじり、設備:公営水道、本下水、都市ガス、駐車場:カースペース |
Company profile 会社概要 | | <Mediation> governor of Osaka Prefecture (1) the first 056,267 No. peace of mind home (Ltd.) Yubinbango532-0004 Osaka Yodogawa Nishimiyahara 1-8-33 <仲介>大阪府知事(1)第056267号安心ホーム(株)〒532-0004 大阪府大阪市淀川区西宮原1-8-33 |