|
|
Kobe-shi, Hyogo Tarumi-ku,
兵庫県神戸市垂水区
|
|
JR Sanyo Line "Tarumi" 8 minutes Maiko tomb garden before walking 5 minutes by bus
JR山陽本線「垂水」バス8分舞子墓園前歩5分
|
Features pickup 特徴ピックアップ | | Facing south / Yang per good / All room storage / Siemens south road / Japanese-style room / garden / Toilet 2 places / 2 or more sides balcony / South balcony / Ventilation good / Walk-in closet / All room 6 tatami mats or more 南向き /陽当り良好 /全居室収納 /南側道路面す /和室 /庭 /トイレ2ヶ所 /2面以上バルコニー /南面バルコニー /通風良好 /ウォークインクロゼット /全居室6畳以上 |
Price 価格 | | 23 million yen 2300万円 |
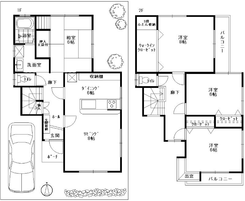
Floor plan 間取り | | 4LDK 4LDK |
Units sold 販売戸数 | | 1 units 1戸 |
Land area 土地面積 | | 103.12 sq m (31.19 tsubo) (Registration) 103.12m2(31.19坪)(登記) |
Building area 建物面積 | | 103.08 sq m (31.18 tsubo) (Registration) 103.08m2(31.18坪)(登記) |
Driveway burden-road 私道負担・道路 | | Nothing, South 4m width 無、南4m幅 |
Completion date 完成時期(築年月) | | April 1995 1995年4月 |
Address 住所 | | Hyogo Prefecture, Kobe City Tarumi Ward Seiryodai 8 兵庫県神戸市垂水区星陵台8 |
Traffic 交通 | | JR Sanyo Line "Tarumi" 8 minutes Maiko tomb garden before walking 5 minutes by bus Sanyo Electric Railway Main Line "Maikokoen" 12 minutes prefecture quotient before walking 4 minutes by bus JR山陽本線「垂水」バス8分舞子墓園前歩5分 山陽電鉄本線「舞子公園」バス12分県商前歩4分
|
Contact お問い合せ先 | | TEL: 0800-808-7784 [Toll free] mobile phone ・ Also available from PHS Caller ID is not notified Please contact the "saw SUUMO (Sumo)" If it does not lead, If the real estate company TEL:0800-808-7784【通話料無料】携帯電話・PHSからもご利用いただけます 発信者番号は通知されません 「SUUMO(スーモ)を見た」と問い合わせください つながらない方、不動産会社の方は
|
Building coverage, floor area ratio 建ぺい率・容積率 | | Fifty percent ・ Hundred percent 50%・100% |
Time residents 入居時期 | | Consultation 相談 |
Land of the right form 土地の権利形態 | | Ownership 所有権 |
Structure and method of construction 構造・工法 | | Wooden 2-story 木造2階建 |
Use district 用途地域 | | One low-rise 1種低層 |
Overview and notices その他概要・特記事項 | | Facilities: Public Water Supply, This sewage, City gas, Parking: car space 設備:公営水道、本下水、都市ガス、駐車場:カースペース |
Company profile 会社概要 | | <Mediation> governor of Osaka (2) No. 051559 (Ltd.) confidence Corporation Yubinbango530-0041 Osaka-shi, Osaka, Kita-ku, Tenjinbashi 2 north 1-23 Martin building <仲介>大阪府知事(2)第051559号(株)コンフィデンスコーポレーション〒530-0041 大阪府大阪市北区天神橋2北1-23 丸丹ビル |